Astegiudiziarie.it è parte di Rete Aste Network

Accedi o registrati

Non sei ancora registrato?

Oppure

Accedi

Stalle, scuderie, rimesse, autorimesse

Via Chiusa 103 e 107, Sant'Angelo di Piove di Sacco PD, Italia, Sant'Angelo di Piove di Sacco (PD)

€ 4.900.000,00

Offerta minima € 3.675.000,00


Codice A4334788

Lotto Lotto unico

Data udienza 04/03/2026 ore 16:30

Termine presentazione offerte 03/03/2026 ore 12:00

Stalle, scuderie, rimesse, autorimesse

Via Chiusa 103 e 107, Sant'Angelo di Piove di Sacco PD, Italia, Sant'Angelo di Piove di Sacco (PD)

€ 4.900.000,00

Offerta minima € 3.675.000,00


Codice A4334788

Lotto Lotto unico

Data udienza 04/03/2026 ore 16:30

Termine presentazione offerte 03/03/2026 ore 12:00

Ti interessa questa vendita?

Visualizza su mappa

Mappa geografica del bene

Punti di interesse

Fonte dati

Nel raggio di {{range}}Km

Loading...
  • {{ getIcon(poi.type) }} {{ poi.localized }}: {{poi.count}}
  • {{ getIcon(poi.type) }} {{ poi.localized }}: {{poi.count}}
Dati non disponibili

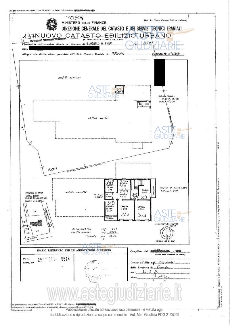
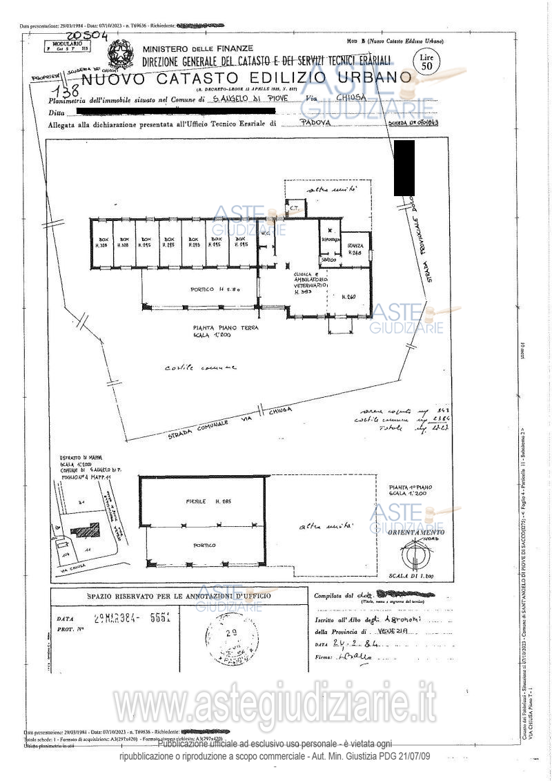
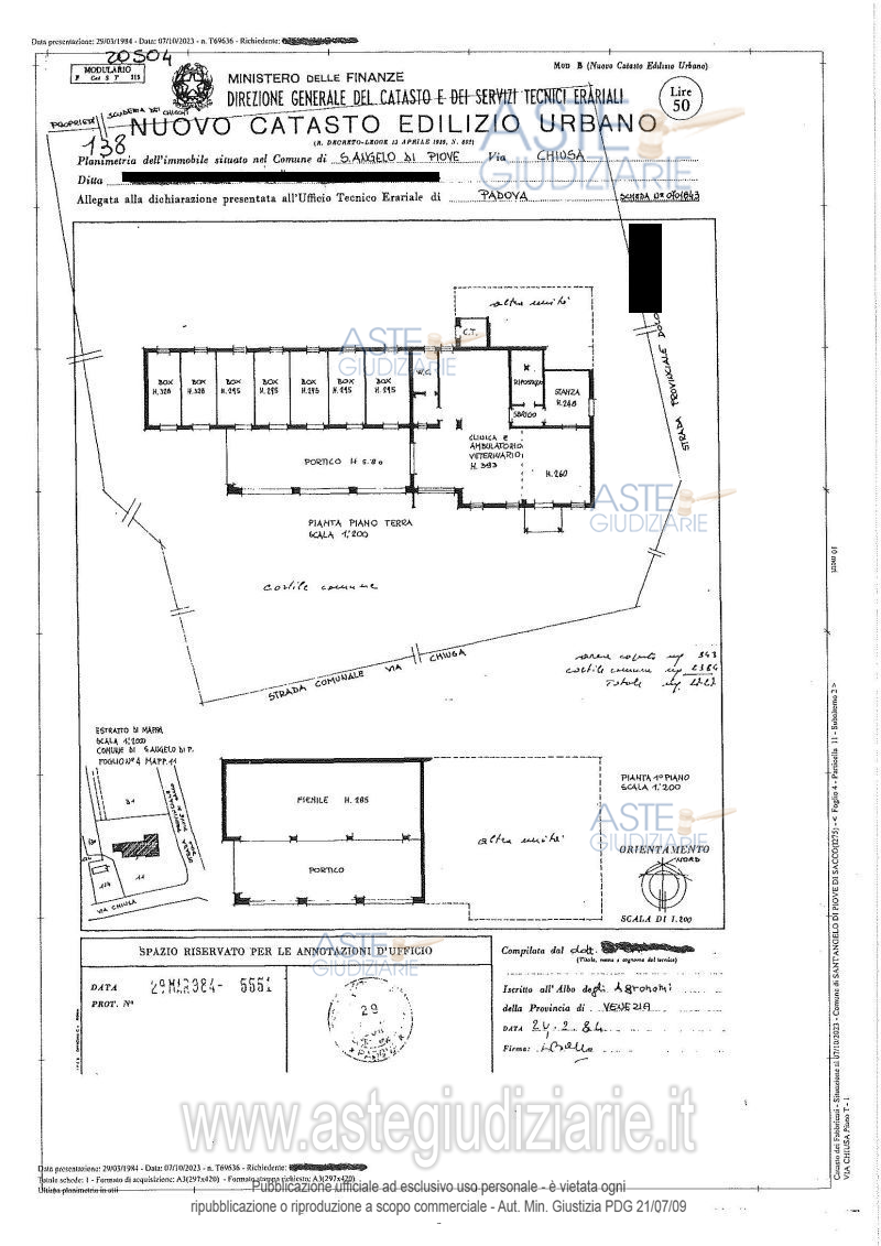
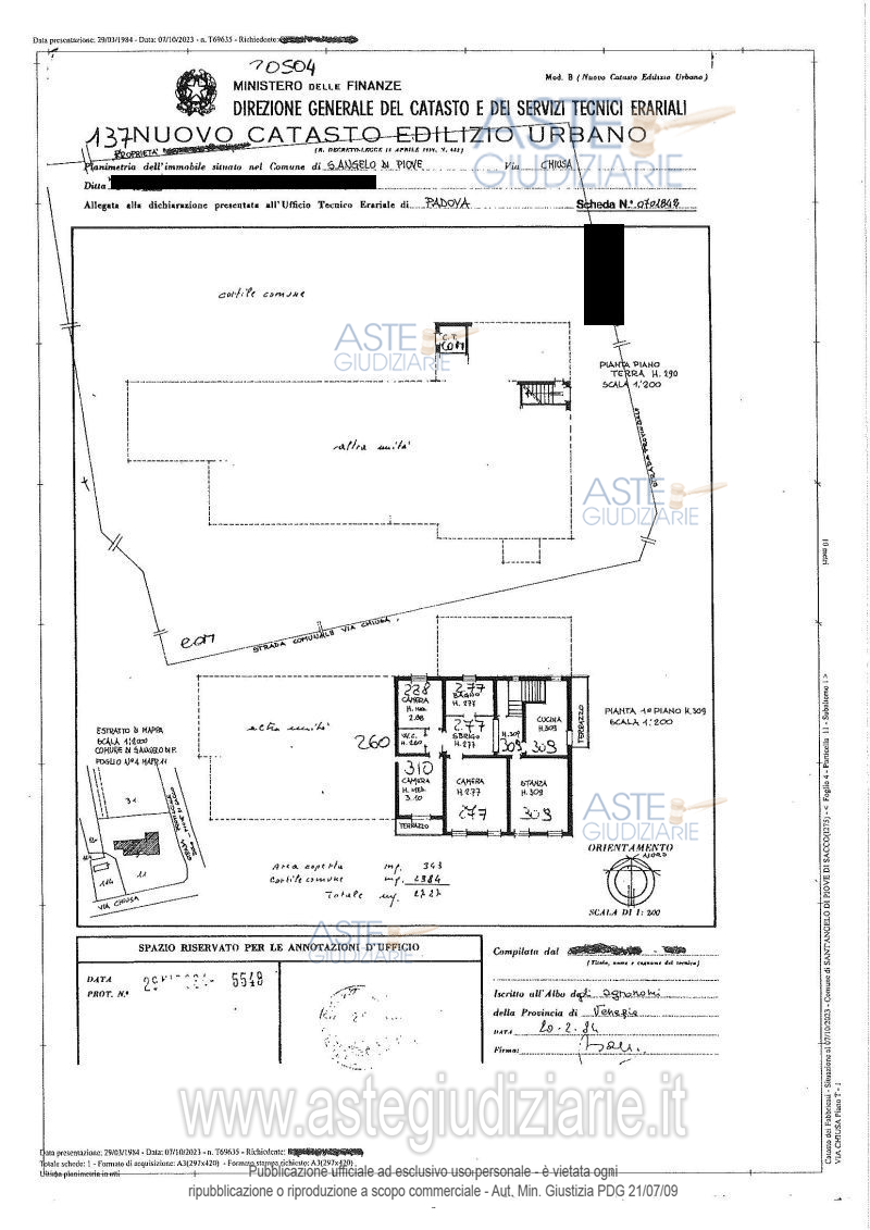
2 ESPERIMENTO - Complesso Immobiliare, superficie catastale complessiva di Ha 34.59.99 con elementi caratteristici di scuderia : fabbricato con porticato (corpo A) parte ad uso aziendale di c.a315 mq, un retrostante fabbricato con impianto planimetrico a U con piscina privata corpo B e C di c.a 3.599 mq manufatti ricovero puledri, capannoni per ricovero attrezzi agricoli box cavalli di c.a1.447 mq e scuderia cavalli di c.a1.030 mq e terreni di 321.257 mq; clinica veterinaria con abitazione di c.a 582 mq.

Indirizzo
Via Chiusa 103 e 107, Sant'Angelo di Piove di Sacco PD, Italia, Sant'Angelo di Piove di Sacco (PD)


Codice asta
4334788


Lotto
Lotto unico


Numero beni
1


Genere
Immobili


Categoria
Altra categoria


Valore di stima
-


Stalle, scuderie, rimesse, autorimesse

Complesso immobiliare con elementi caratteristici di una scuderia quali : un primo fabbricato con portico ( corpo A ) ad uso aziendale , un retrostante fabbricato con planimetrico a forma di U con piscina privata , manufatti per il ricovero di puledri, capannoni per attrezzi agricoli e derrate alimentari, box per cavalli e scuderia cavalli in corsa ed estesi appezzamenti di terreni, clinica veterinaria (occupata) con annessa abitazione

Indirizzo
Via Chiusa, 103, 35020 Sant'Angelo di Piove di Sacco PD, Italia, Sant'Angelo di Piove di Sacco (PD)


Piano
-


Disponibilità
OCCUPATO


Vani
-


Bagni
-


Metri quadri
-


Certificazione energetica
-


Dati catastali

Foglio:4, Particella:8, Subalterno:4
Foglio:4, Particella:8, Subalterno:5
Foglio:4, Particella:8, Subalterno:6
Foglio:4, Particella:8, Subalterno:7
Foglio:4, Particella:8, Subalterno:8
Foglio:4, Particella:8, Subalterno:9
Foglio:4, Particella:8, Subalterno:10
Foglio:4, Particella:8, Subalterno:11
Foglio:4, Particella:430
Foglio:4, Particella:429
Foglio:4, Particella:428
Foglio:4, Particella:427
Foglio:4, Particella:426
Foglio:4, Particella:385, Subalterno:2
Foglio:4, Particella:385, Subalterno:3
Foglio:4, Particella:385, Subalterno:4
Foglio:4, Particella:11, Subalterno:1
Foglio:4, Particella:11, Subalterno:2
Foglio:4, Particella:11, Subalterno:3
Foglio:4, Sezione:T, Particella:12
Foglio:4, Sezione:T, Particella:83
Foglio:4, Particella:113
Foglio:4, Sezione:T, Particella:115
Foglio:4, Sezione:T, Particella:117
Foglio:4, Sezione:T, Particella:119
Foglio:4, Sezione:T, Particella:287
Foglio:4, Sezione:T, Particella:29
Foglio:4, Sezione:T, Particella:288
Foglio:4, Sezione:T, Particella:289
Foglio:4, Sezione:T, Particella:390
Foglio:4, Sezione:T, Particella:391
Foglio:4, Sezione:T, Particella:395
Foglio:4, Sezione:T, Particella:396
Foglio:4, Sezione:T, Particella:401
Foglio:4, Sezione:T, Particella:402
Foglio:4, Sezione:T, Particella:403
Foglio:4, Sezione:T, Particella:414
Foglio:4, Sezione:T, Particella:415
Foglio:4, Sezione:T, Particella:416
Foglio:4, Sezione:T, Particella:104
Foglio:4, Sezione:T, Particella:127
Foglio:4, Sezione:T, Particella:31
Foglio:4, Sezione:T, Particella:120
Foglio:4, Sezione:T, Particella:204


Data udienza
04/03/2026 ore 16:30


Tipo di vendita
Senza incanto


Modalità di vendita
Sincrona telematica


Luogo
-


Luogo presentazione offerte
-


Termine presentazione offerte
03/03/2026 ore 12:00


Prezzo base
€ 4.900.000,00


Offerta minima
€ 3.675.000,00


Rialzo minimo in caso di gara
€ 10.000,00


Deposito cauzionale
10% del prezzo offerto


Deposito in conto spese
-


Tribunale
Padova

Tipo di procedura
Esecuzione immobiliare post legge 80

Ruolo
143/2023

Delegato alla vendita
Barzazi Luigi
(Procede alle operazioni di vendita)
(Gestisce la visita del bene)

Recapiti
Tel. 049773206

Scheda COD. 4334788 - Pubblicata dal 15/01/2026

La presente scheda di vendita riporta integralmente informazioni e documenti pervenuti ufficialmente dal Ministero e dal professionista incaricato.


Pubblicazione autorizzata dall’Autorità competente, è vietata ogni ripubblicazione o riproduzione anche parziale


Ti interessa questa vendita?

Visualizza su mappa

Mappa geografica del bene

Storico delle vendite

Data venditaPrezzo base
22/10/2025€ 6.500.000,00
04/03/2026€ 4.900.000,00

Punti di interesse

Fonte dati

Nel raggio di {{range}}Km

Loading...
  • {{ getIcon(poi.type) }} {{ poi.localized }}: {{poi.count}}
  • {{ getIcon(poi.type) }} {{ poi.localized }}: {{poi.count}}
Dati non disponibili