Astegiudiziarie.it è parte di Rete Aste Network

Accedi o registrati

Non sei ancora registrato?

Oppure

Accedi

Abitazione di tipo civile, laboratorio artigiano

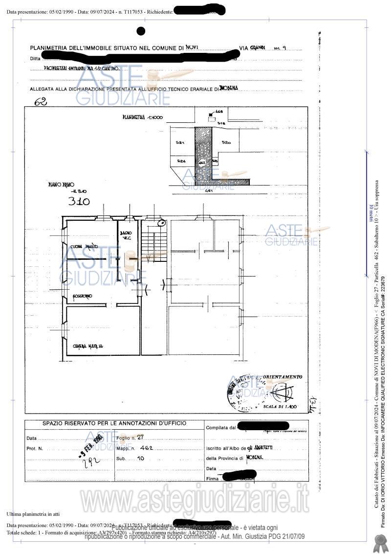
Via Achille Grandi, 28, Novi di Modena (MO)

€ 149.062,50

Offerta minima € 111.796,88


Codice A4314420

Lotto Lotto unico

Data udienza 15/01/2026 ore 12:30

Termine presentazione offerte 14/01/2026 ore 23:59

Abitazione di tipo civile, laboratorio artigiano

Via Achille Grandi, 28, Novi di Modena (MO)

€ 149.062,50

Offerta minima € 111.796,88


Codice A4314420

Lotto Lotto unico

Data udienza 15/01/2026 ore 12:30

Termine presentazione offerte 14/01/2026 ore 23:59

Ti interessa questa vendita?

Visualizza su mappa

Mappa geografica del bene

Punti di interesse

Fonte dati

Nel raggio di {{range}}Km

Loading...
  • {{ getIcon(poi.type) }} {{ poi.localized }}: {{poi.count}}
  • {{ getIcon(poi.type) }} {{ poi.localized }}: {{poi.count}}
Dati non disponibili

Intera piena proprietà di porzione di fabbricato da terra a cielo condominiale composto da laboratorio, tre abitazioni, soffitta, per una superficie totale commerciale di mq 420.

Indirizzo
Via Achille Grandi, 28, Novi di Modena (MO)


Codice asta
4314420


Lotto
Lotto unico


Numero beni
4


Genere
Immobili


Categoria
Immobile residenziale


Valore di stima
-


Abitazione di tipo civile

Appartamento a piano terra con n. 6,5 vani

Indirizzo
Via Achille Grandi, 28, Novi di Modena (MO)


Piano
-


Disponibilità
-


Vani
6,50


Bagni
-


Metri quadri
130,00


Certificazione energetica
-


Dati catastali

Foglio:27, Particella:462, Subalterno:18


Laboratorio artigiano

Autorimessa adibita a laboratorio

Indirizzo
Via Achille Grandi, 28, Novi di Modena (MO)


Piano
-


Disponibilità
-


Vani
-


Bagni
-


Metri quadri
31,00


Certificazione energetica
-


Dati catastali

Foglio:27, Particella:462, Subalterno:17


Abitazione di tipo civile

Appartamento al piano primo con soffitta a piano secondo con n. 4,5 vani

Indirizzo
Via Achille Grandi, 28, Novi di Modena (MO)


Piano
-


Disponibilità
-


Vani
4,50


Bagni
-


Metri quadri
90,00


Certificazione energetica
-


Dati catastali

Foglio:27, Particella:462, Subalterno:19


Abitazione di tipo civile

Appartamento a piano primo con soffitta a piano secondo con n. 4,5 vani

Indirizzo
Via Achille Grandi, 28, Novi di Modena (MO)


Piano
-


Disponibilità
-


Vani
4,50


Bagni
-


Metri quadri
90,00


Certificazione energetica
-


Dati catastali

Foglio:27, Particella:462, Subalterno:20


Data udienza
15/01/2026 ore 12:30


Tipo di vendita
Senza incanto


Modalità di vendita
Asincrona telematica


Luogo
N.A. -


Luogo presentazione offerte
-


Termine presentazione offerte
14/01/2026 ore 23:59


Prezzo base
€ 149.062,50


Offerta minima
€ 111.796,88


Rialzo minimo in caso di gara
€ 3.000,00


Deposito cauzionale
10% del prezzo offerto


Deposito in conto spese
-


Tribunale
Modena

Tipo di procedura
Esecuzione immobiliare post legge 80

Ruolo
23/2017

Delegato alla vendita
Giardomentrone Leonardo
(Procede alle operazioni di vendita)

Recapiti
Cell. 3393674358

Email
avv.leonardogiardomentrone@gma...

Custode giudiziario
Manelli Alex
(Gestisce la visita del bene)

Recapiti
Tel. 059847301

Scheda COD. 4314420 - Pubblicata dal 19/11/2025

La presente scheda di vendita riporta integralmente informazioni e documenti pervenuti ufficialmente dal Ministero e dal professionista incaricato.

Pubblicazione notarizzata su Blockchain


Pubblicazione autorizzata dall’Autorità competente, è vietata ogni ripubblicazione o riproduzione anche parziale


Ti interessa questa vendita?

Visualizza su mappa

Mappa geografica del bene

Storico delle vendite

Data venditaPrezzo base
08/04/2025€ 198.750,00
26/06/2025€ 149.062,50
15/01/2026€ 149.062,50

Punti di interesse

Fonte dati

Nel raggio di {{range}}Km

Loading...
  • {{ getIcon(poi.type) }} {{ poi.localized }}: {{poi.count}}
  • {{ getIcon(poi.type) }} {{ poi.localized }}: {{poi.count}}
Dati non disponibili