Astegiudiziarie.it è parte di Rete Aste Network

Accedi o registrati

Non sei ancora registrato?

Oppure

Accedi

Abitazione in villini

via Colle Fiorito n. 19-21-23, Trevignano Romano (RM)

€ 503.000,00

Offerta minima -


Codice A4339725

Lotto Unico

Data vendita 27/01/2026 ore 10:00

Termine presentazione offerte 16/01/2026 ore 23:59

Abitazione in villini

via Colle Fiorito n. 19-21-23, Trevignano Romano (RM)

€ 503.000,00

Offerta minima -


Codice A4339725

Lotto Unico

Data Vendita 27/01/2026 ore 10:00

Termine presentazione offerte 16/01/2026 ore 23:59

Ti interessa questa vendita?

Documentazione

Visualizza su mappa

Mappa geografica del bene

Punti di interesse

Fonte dati

Nel raggio di {{range}}Km

Loading...
  • {{ getIcon(poi.type) }} {{ poi.localized }}: {{poi.count}}
  • {{ getIcon(poi.type) }} {{ poi.localized }}: {{poi.count}}
Dati non disponibili

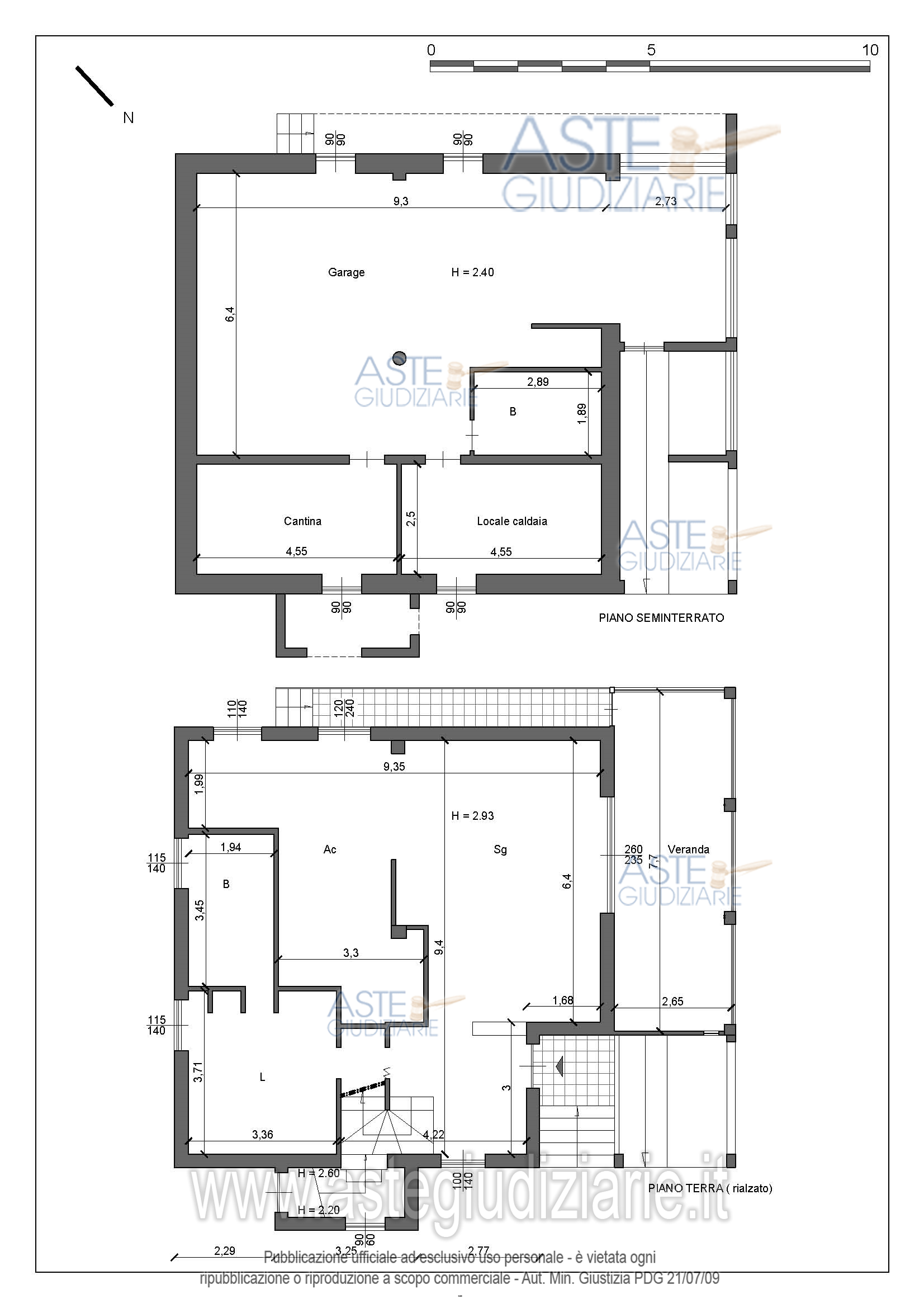
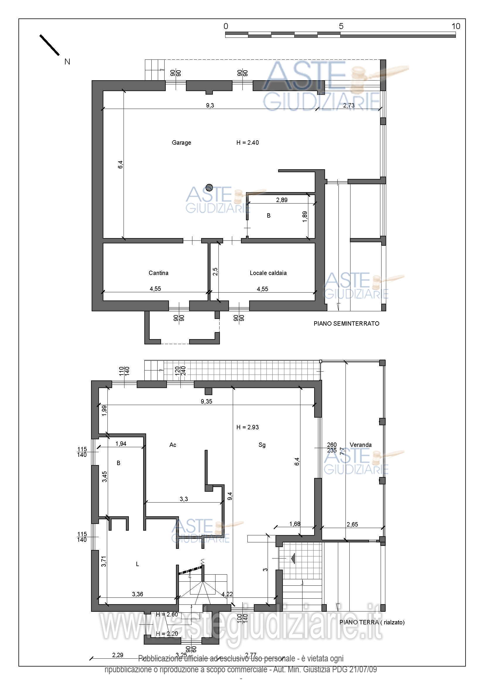
villino articolato su tre livelli (S1-T-1); il piano terra è collegato con il piano primo da una scala interna, mentre il piano seminterrato ha accesso separato tramite la rampa del garage. Il piano terra è composto da: ingresso, soggiorno, cucina, camera da letto, disimpegno, bagno e balcone oggi chiuso a veranda senza titolo edilizio. Il piano primo è composto da un bagno, quattro camere da letto e un balcone. Il piano seminterrato è composto da canina e locale caldaia.

Indirizzo
via Colle Fiorito n. 19-21-23, Trevignano Romano (RM)


Codice asta
4339725


Lotto
Unico


Numero beni
1


Genere
Immobili


Categoria
Immobile residenziale


Valore di stima
-


Abitazione in villini

villino articolato su tre livelli (S1-T-1); il piano terra è collegato con il piano primo da una scala interna, mentre il piano seminterrato ha accesso separato tramite la rampa del garage. Il piano terra è composto da: ingresso, soggiorno, cucina, camera da letto, disimpegno, bagno e balcone oggi chiuso a veranda senza titolo edilizio. Il piano primo è composto da un bagno, quattro camere da letto e un balcone. Il piano seminterrato è composto da canina e locale caldaia.

Indirizzo
via Colle Fiorito n. 19-21-23, Trevignano Romano (RM)


Piano
-


Disponibilità
-


Vani
-


Bagni
-


Metri quadri
-


Certificazione energetica
-


Data vendita
27/01/2026 ore 10:00


Tipo di vendita
Senza incanto


Modalità di vendita
Presso il venditore


Luogo
-


Luogo presentazione offerte
-


Termine presentazione offerte
16/01/2026 ore 23:59


Prezzo base
€ 503.000,00


Offerta minima
-


Rialzo minimo in caso di gara
-


Deposito cauzionale
10% del prezzo offerto


Deposito in conto spese
-


Tribunale
Civitavecchia

Tipo di procedura
Esecuzione immobiliare

Ruolo
82/2025

Custode giudiziario
Tagliani Antonella
(Procede alle operazioni di vendita)

Recapiti
-

Email
antonella@studiolegaletagliani...

Scheda COD. 4339725 - Pubblicata dal 18/11/2025

La presente scheda di vendita riporta integralmente informazioni e documenti pervenuti ufficialmente dal Ministero e dal professionista incaricato.

Pubblicazione notarizzata su Blockchain


Pubblicazione autorizzata dall’Autorità competente, è vietata ogni ripubblicazione o riproduzione anche parziale


Ti interessa questa vendita?

Documentazione

Visualizza su mappa

Mappa geografica del bene

Punti di interesse

Fonte dati

Nel raggio di {{range}}Km

Loading...
  • {{ getIcon(poi.type) }} {{ poi.localized }}: {{poi.count}}
  • {{ getIcon(poi.type) }} {{ poi.localized }}: {{poi.count}}
Dati non disponibili