Astegiudiziarie.it è parte di Rete Aste Network

Accedi o registrati

Non sei ancora registrato?

Oppure

Accedi

giudiziariagiudiziariaTribunale di BERGAMOCONTENZIOSO CIVILECONTENZIOSO CIVILE 64622024Delegato alla venditaErnestoSicoSCIRST68C25F839Qassnotbergamo@notariato.it035219426truefalseGiudiceLucaFuzioFZULCU68E27A794Ufalsefalse23925652IMMOBILIIMMOBILE RESIDENZIALEVia Pomarolo, 25/A24020ScanzorosciateBergamoLombardiaItalia1) Fabbricato uso abitazione su quattro piani composto da: a) Appartamento ai piani terra, primo, secondo e interrato. b) Autorimessa e ripostiglio a piano seminterrato. Le predette porzioni immobiliari sono gravate dalla quota di comproprietà in ragione di 1/2 (un mezzo) del diritto di abitazione. 2) Appezzamento di terreno contiguo all’area esterna di accesso alla abitazione3088326IMMOBILE RESIDENZIALEABITAZIONE IN VILLINIVia Pomarolo, 25/A24020ScanzorosciateBergamoLombardiaItalia1) Fabbricato uso abitazione su quattro piani composto da: a) Appartamento composto da soggiorno con cucina, sala, bagno, cortile e giardino a piano terra; tre camere, due bagni, due disimpegni, due terrazzi a piano primo; locale sottotetto, due ripostigli, disimpegno, terrazzo a piano secondo; locale pluriuso, lavanderia/wc, centrale termica, ripostiglio, disimpegno, intercapedine a piano interrato. L'unità è gravata dalla quota di comproprietà in ragione di 1/2 del diritto di abitazione4354070211.5T3088327ALTRA CATEGORIASTALLE, SCUDERIE, RIMESSE, AUTORIMESSEVia Pomarolo, 25/A24020ScanzorosciateBergamoLombardiaItaliab) Autorimessa e ripostiglio a piano seminterrato. La predetta porzione immobiliare è gravata dalla quota di comproprietà in ragione di 1/2 del diritto di abitazione.43540703S13088328ALTRA CATEGORIATERRENOVia Pomarolo, 25/A24020ScanzorosciateBergamoLombardiaItalia2) Appezzamento di terreno contiguo all’area esterna di accesso alla abitazione. (mappale 3535, Vigneto 1 di are 00.35)135352026-05-05T11:00:00SENZA INCANTOASINCRONA TELEMATICAN.A.407.100,00305.325,004.000,002026-05-04T12:00:00sito pubblicitahttps://www.astegiudiziarie.ithttps://www.astegiudiziarie.itsito pubblicitahttps://www.asteannunci.ithttps://www.asteannunci.itsito pubblicitahttps://www.fallcoaste.ithttps://www.fallcoaste.itsito pubblicitahttps://www.astalegale.nethttps://www.astalegale.netgestore delle venditehttps://www.fallcoaste.ithttps://www.fallcoaste.it2026-02-13AVVISO DI RETTIFICASi comunica che è stato emesso un provvedimento di modifica dell'ordinanza di delega relativamente al Lotto 2, come pubblicato nei siti pubblicitari2026-03-04

Abitazione in villini, stalle, scuderie, rimesse, autorimesse, terreno

Via Pomarolo, 25/A, Scanzorosciate (BG)

€ 407.100,00

Offerta minima € 305.325,00


Codice A4340164

Lotto 2

Data udienza 05/05/2026 ore 11:00

Termine presentazione offerte 04/05/2026 ore 12:00

Abitazione in villini, stalle, scuderie, rimesse, autorimesse, terreno

Via Pomarolo, 25/A, Scanzorosciate (BG)

€ 407.100,00

Offerta minima € 305.325,00


Codice A4340164

Lotto 2

Data udienza 05/05/2026 ore 11:00

Termine presentazione offerte 04/05/2026 ore 12:00

Ti interessa questa vendita?

Documentazione

Visualizza su mappa

Mappa geografica del bene

Punti di interesse

Fonte dati

Nel raggio di {{range}}Km

Loading...
  • {{ getIcon(poi.type) }} {{ poi.localized }}: {{poi.count}}
  • {{ getIcon(poi.type) }} {{ poi.localized }}: {{poi.count}}
Dati non disponibili

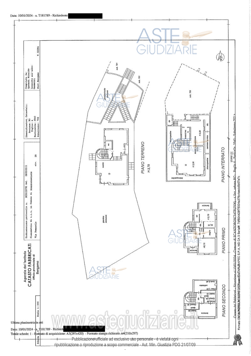
1) Fabbricato uso abitazione su quattro piani composto da: a) Appartamento ai piani terra, primo, secondo e interrato. b) Autorimessa e ripostiglio a piano seminterrato. Le predette porzioni immobiliari sono gravate dalla quota di comproprietà in ragione di 1/2 (un mezzo) del diritto di abitazione. 2) Appezzamento di terreno contiguo all’area esterna di accesso alla abitazione

Indirizzo
Via Pomarolo, 25/A, Scanzorosciate (BG)


Codice asta
4340164


Lotto
2


Numero beni
3


Genere
Immobili


Categoria
Immobile residenziale


Valore di stima
-


Abitazione in villini

1) Fabbricato uso abitazione su quattro piani composto da: a) Appartamento composto da soggiorno con cucina, sala, bagno, cortile e giardino a piano terra; tre camere, due bagni, due disimpegni, due terrazzi a piano primo; locale sottotetto, due ripostigli, disimpegno, terrazzo a piano secondo; locale pluriuso, lavanderia/wc, centrale termica, ripostiglio, disimpegno, intercapedine a piano interrato. L'unità è gravata dalla quota di comproprietà in ragione di 1/2 del diritto di abitazione

Indirizzo
Via Pomarolo, 25/A, Scanzorosciate (BG)


Piano
T


Disponibilità
-


Vani
11,50


Bagni
-


Metri quadri
-


Certificazione energetica
-


Dati catastali

Foglio:4, Particella:3540, Subalterno:702


Stalle, scuderie, rimesse, autorimesse

b) Autorimessa e ripostiglio a piano seminterrato. La predetta porzione immobiliare è gravata dalla quota di comproprietà in ragione di 1/2 del diritto di abitazione.

Indirizzo
Via Pomarolo, 25/A, Scanzorosciate (BG)


Piano
S1


Disponibilità
-


Vani
-


Bagni
-


Metri quadri
-


Certificazione energetica
-


Dati catastali

Foglio:4, Particella:3540, Subalterno:703


Terreno

2) Appezzamento di terreno contiguo all’area esterna di accesso alla abitazione. (mappale 3535, Vigneto 1 di are 00.35)

Indirizzo
Via Pomarolo, 25/A, Scanzorosciate (BG)


Piano
-


Disponibilità
-


Vani
-


Bagni
-


Metri quadri
-


Certificazione energetica
-


Dati catastali

Foglio:1, Particella:3535


Data udienza
05/05/2026 ore 11:00


Tipo di vendita
Senza incanto


Modalità di vendita
Asincrona telematica


Luogo
N.A. -


Luogo presentazione offerte
-


Termine presentazione offerte
04/05/2026 ore 12:00


Prezzo base
€ 407.100,00


Offerta minima
€ 305.325,00


Rialzo minimo in caso di gara
€ 4.000,00


Deposito cauzionale
10% del prezzo offerto


Deposito in conto spese
-


Tribunale
Bergamo

Tipo di procedura
Contenzioso civile

Ruolo
6462/2024

Giudice
Fuzio Luca

Recapiti
-

Email
-

Delegato alla vendita
Sico Ernesto
(Procede alle operazioni di vendita)

Recapiti
Tel. 035219426

Email
assnotbergamo@notariato.it

Custode giudiziario
Ceresoli Daniela

Recapiti
Cell. 340 3526682

Email
dany4e@yahoo.it

Data
04/03/2026


Tipologia
AVVISO DI RETTIFICA


Descrizione
Si comunica che è stato emesso un provvedimento di modifica dell'ordinanza di delega relativamente al Lotto 2, come pubblicato nei siti pubblicitari


Scheda COD. 4340164 - Pubblicata dal 17/03/2026

La presente scheda di vendita riporta integralmente informazioni e documenti pervenuti ufficialmente dal Ministero e dal professionista incaricato.

Pubblicazione notarizzata su Blockchain


Pubblicazione autorizzata dall’Autorità competente, è vietata ogni ripubblicazione o riproduzione anche parziale


Ti interessa questa vendita?

Documentazione

Visualizza su mappa

Mappa geografica del bene

Storico delle vendite

Data venditaPrezzo base
03/02/2026€ 407.100,00
05/05/2026€ 407.100,00

Punti di interesse

Fonte dati

Nel raggio di {{range}}Km

Loading...
  • {{ getIcon(poi.type) }} {{ poi.localized }}: {{poi.count}}
  • {{ getIcon(poi.type) }} {{ poi.localized }}: {{poi.count}}
Dati non disponibili