Astegiudiziarie.it è parte di Rete Aste Network

Accedi o registrati

Non sei ancora registrato?

Oppure

Accedi

Abitazione in villini

Rauscedo, Via Pietro Zorutti, 10, San Giorgio della Richinvelda (PN)

€ 462.000,00

Offerta minima € 346.500,00


Codice A4336056

Lotto 1

Data udienza 09/03/2026 ore 17:00

Termine presentazione offerte 06/03/2026 ore 12:00

Abitazione in villini

Rauscedo, Via Pietro Zorutti, 10, San Giorgio della Richinvelda (PN)

€ 462.000,00

Offerta minima € 346.500,00


Codice A4336056

Lotto 1

Data udienza 09/03/2026 ore 17:00

Termine presentazione offerte 06/03/2026 ore 12:00

Ti interessa questa vendita?

Documentazione

Visualizza su mappa

Mappa geografica del bene

Punti di interesse

Fonte dati

Nel raggio di {{range}}Km

Loading...
  • {{ getIcon(poi.type) }} {{ poi.localized }}: {{poi.count}}
  • {{ getIcon(poi.type) }} {{ poi.localized }}: {{poi.count}}
Dati non disponibili

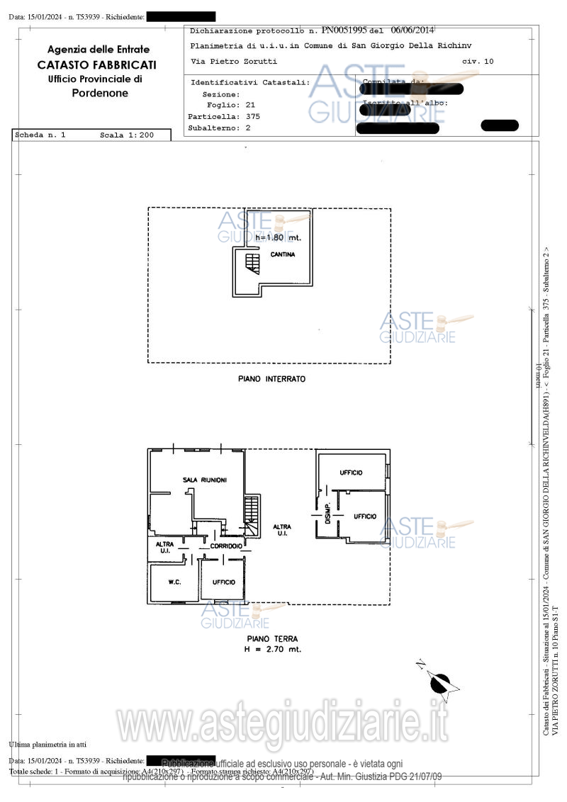
LOTTO PRIMO: Fabbricato posto all’interno di un’ampia area di pertinenza destinata a giardino, suddiviso in 2 unità immobiliari: il sub. 1 è la parte abitativa privata al primo piano, con ampia soffitta al secondo piano, mentre al sub. 2 c’è una cantina nel piano interrato, gli uffici con servizi e sala riunioni al piano terra. Occupato. Difformità catastali ed edilizie sanabili.

Indirizzo
Rauscedo, Via Pietro Zorutti, 10, San Giorgio della Richinvelda (PN)


Codice asta
4336056


Lotto
1


Numero beni
1


Genere
Immobili


Categoria
Immobile residenziale


Valore di stima
-


Abitazione in villini

Fabbricato posto all’interno di un’ampia area di pertinenza destinata a giardino, suddiviso in 2 unità immobiliari: il sub. 1 è la parte abitativa privata al primo piano, con ampia soffitta al secondo piano, mentre al sub. 2 c’è una cantina nel piano interrato, gli uffici con servizi e sala riunioni al piano terra. Occupato. Difformità catastali ed edilizie sanabili.

Indirizzo
Rauscedo, Via Pietro Zorutti, 10, San Giorgio della Richinvelda (PN)


Piano
T


Disponibilità
Occupato


Vani
11,50


Bagni
-


Metri quadri
357,00


Certificazione energetica
-


Dati catastali

Foglio:21, Particella:375, Subalterno:1 Cat. A/7
Foglio:21, Particella:375, Subalterno:2 Cat. A/10
Foglio:C.T. Fg. 21, Particella:380-214
Foglio:C.T. Fg. 20, Particella:45-276


Data udienza
09/03/2026 ore 17:00


Tipo di vendita
Senza incanto


Modalità di vendita
Sincrona telematica


Luogo
N.A. -


Luogo presentazione offerte
-


Termine presentazione offerte
06/03/2026 ore 12:00


Prezzo base
€ 462.000,00


Offerta minima
€ 346.500,00


Rialzo minimo in caso di gara
€ 2.000,00


Deposito cauzionale
-


Deposito in conto spese
-


Tribunale
Pordenone

Tipo di procedura
Espropriazione immobiliare (cartabia)

Ruolo
102/2023

Giudice
Tesco Elisa

Recapiti
-

Email
-

Delegato alla vendita
Gerardi Gaspare
(Procede alle operazioni di vendita)

Recapiti
-

Email
ggerardi@notariato.it

Custode giudiziario
Giudiziario Custode
(Gestisce la visita del bene)

Recapiti
Tel. 3294536349

Scheda COD. 4336056 - Pubblicata dal 16/01/2026

La presente scheda di vendita riporta integralmente informazioni e documenti pervenuti ufficialmente dal Ministero e dal professionista incaricato.


Pubblicazione autorizzata dall’Autorità competente, è vietata ogni ripubblicazione o riproduzione anche parziale


Ti interessa questa vendita?

Documentazione

Visualizza su mappa

Mappa geografica del bene

Storico delle vendite

Data venditaPrezzo base
10/11/2025€ 615.000,00
09/03/2026€ 462.000,00

Punti di interesse

Fonte dati

Nel raggio di {{range}}Km

Loading...
  • {{ getIcon(poi.type) }} {{ poi.localized }}: {{poi.count}}
  • {{ getIcon(poi.type) }} {{ poi.localized }}: {{poi.count}}
Dati non disponibili