Astegiudiziarie.it è parte di Rete Aste Network

Accedi o registrati

Non sei ancora registrato?

Oppure

Accedi

Abitazione in villini

Via Coste, 81027 San Felice a Cancello CE, Italia, San Felice a Cancello (CE)

€ 172.000,00

Offerta minima € 129.000,00


Codice A4327276

Lotto Lotto unico

Data udienza 05/05/2026 ore 09:30

Termine presentazione offerte 30/04/2026 ore 09:30

Abitazione in villini

Via Coste, 81027 San Felice a Cancello CE, Italia, San Felice a Cancello (CE)

€ 172.000,00

Offerta minima € 129.000,00


Codice A4327276

Lotto Lotto unico

Data udienza 05/05/2026 ore 09:30

Termine presentazione offerte 30/04/2026 ore 09:30

Ti interessa questa vendita?

Documentazione

Visualizza su mappa

Mappa geografica del bene

Punti di interesse

Fonte dati

Nel raggio di {{range}}Km

Loading...
  • {{ getIcon(poi.type) }} {{ poi.localized }}: {{poi.count}}
  • {{ getIcon(poi.type) }} {{ poi.localized }}: {{poi.count}}
Dati non disponibili

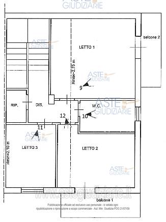
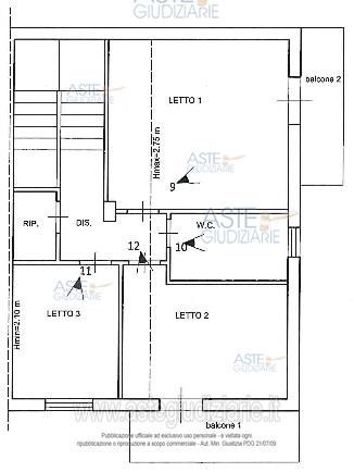
Villa a schiera in buono stato conservativo disposto su 3 livelli con annesso giardino di pertinenza.

Indirizzo
Via Coste, 81027 San Felice a Cancello CE, Italia, San Felice a Cancello (CE)


Codice asta
4327276


Lotto
Lotto unico


Numero beni
1


Genere
Immobili


Categoria
Immobile residenziale


Valore di stima
-


Abitazione in villini

Villa a schiera in buono stato conservativo disposta su 3 livelli con 3 bagni, 4 locali, privo di ascensore, di complessivi mq 160, con annesso giardino di pertinenza e box auto. In una stradina chiusa al traffico

Indirizzo
Via Coste, 81027 San Felice a Cancello CE, Italia, San Felice a Cancello (CE)


Piano
-


Disponibilità
LIBERO


Vani
7,00


Bagni
-


Metri quadri
160,00


Certificazione energetica
-


Data udienza
05/05/2026 ore 09:30


Tipo di vendita
Senza incanto


Modalità di vendita
Asincrona telematica


Luogo
N.A. -


Luogo presentazione offerte
-


Termine presentazione offerte
30/04/2026 ore 09:30


Prezzo base
€ 172.000,00


Offerta minima
€ 129.000,00


Rialzo minimo in caso di gara
€ 3.000,00


Deposito cauzionale
10% del prezzo offerto


Deposito in conto spese
-


Tribunale
Nola

Tipo di procedura
Liquidazione giudiziale(cci)

Ruolo
140/2023

Giudice
Napolitano Rosa

Recapiti
-

Email
-

Curatore
Rubino Massimo
(Procede alle operazioni di vendita)
(Gestisce la visita del bene)

Recapiti
Cell. 3357741445
Tel. 0813177222

Data
26/02/2026


Tipologia
AVVISO DI RETTIFICA


Descrizione
Si rende noto chela vendita si svolgerà nella forma ASINCRONA TELEMATICA.


Data
26/02/2026


Tipologia
AVVISO DI RETTIFICA


Descrizione
Si rende noto chela vendita si svolgerà nella forma ASINCRONA TELEMATICA.


Data
26/02/2026


Tipologia
AVVISO DI RETTIFICA


Descrizione
Si rende noto chela vendita si svolgerà nella forma ASINCRONA TELEMATICA.


Data
26/02/2026


Tipologia
AVVISO DI RETTIFICA


Descrizione
Vendita ASINCRONA TELEMATICA


Data
26/02/2026


Tipologia
AVVISO DI RETTIFICA


Descrizione
Si rende noto chela vendita si svolgerà nella forma ASINCRONA TELEMATICA.


Data
26/02/2026


Tipologia
AVVISO DI RETTIFICA


Descrizione
Vendita ASINCRONA TELEMATICA


Scheda COD. 4327276 - Pubblicata dal 04/03/2026

La presente scheda di vendita riporta integralmente informazioni e documenti pervenuti ufficialmente dal Ministero e dal professionista incaricato.

Pubblicazione notarizzata su Blockchain


Pubblicazione autorizzata dall’Autorità competente, è vietata ogni ripubblicazione o riproduzione anche parziale


Ti interessa questa vendita?

Documentazione

Visualizza su mappa

Mappa geografica del bene

Punti di interesse

Fonte dati

Nel raggio di {{range}}Km

Loading...
  • {{ getIcon(poi.type) }} {{ poi.localized }}: {{poi.count}}
  • {{ getIcon(poi.type) }} {{ poi.localized }}: {{poi.count}}
Dati non disponibili