Astegiudiziarie.it è parte di Rete Aste Network

Accedi o registrati

Non sei ancora registrato?

Oppure

Accedi

Abitazione in villini

Contrada Vassallaggi, 93017 San Cataldo CL, Italia, San Cataldo (CL)

€ 110.200,00

Offerta minima € 82.650,00


Codice A4318418

Lotto 1

Data udienza 13/03/2026 ore 16:30

Termine presentazione offerte 12/03/2026 ore 12:00

Abitazione in villini

Contrada Vassallaggi, 93017 San Cataldo CL, Italia, San Cataldo (CL)

€ 110.200,00

Offerta minima € 82.650,00


Codice A4318418

Lotto 1

Data udienza 13/03/2026 ore 16:30

Termine presentazione offerte 12/03/2026 ore 12:00

Ti interessa questa vendita?

Documentazione

Visualizza su mappa

Mappa geografica del bene

Punti di interesse

Fonte dati

Nel raggio di {{range}}Km

Loading...
  • {{ getIcon(poi.type) }} {{ poi.localized }}: {{poi.count}}
  • {{ getIcon(poi.type) }} {{ poi.localized }}: {{poi.count}}
Dati non disponibili

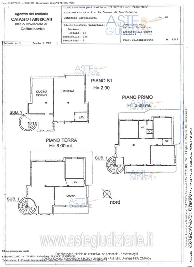
Abitazione in villini sita in San Cataldo, Contrada Vassallaggi, piani T-1-2. Abitazione in villini sita in San Cataldo, Contrada Vassallaggi, piano 3.

Indirizzo
Contrada Vassallaggi, 93017 San Cataldo CL, Italia, San Cataldo (CL)


Codice asta
4318418


Lotto
1


Numero beni
2


Genere
Immobili


Categoria
Immobile residenziale


Valore di stima
-


Abitazione in villini

Abitazione in villini sita in San Cataldo, Contrada Vassallaggi, piano 3, categoria A/7, vani 7,5.

Indirizzo
Contrada Vassallaggi, 93100 Caltanissetta CL, Italia, San Cataldo (CL)


Piano
-


Disponibilità
-


Vani
7,50


Bagni
-


Metri quadri
128,25


Certificazione energetica
-


Abitazione in villini

Abitazione in villini sita in San Cataldo, Contrada Vassallaggi, piani T-1-2, categoria A/7, vani 14,5.

Indirizzo
Contrada Vassallaggi, 93017 San Cataldo CL, Italia, San Cataldo (CL)


Piano
-


Disponibilità
-


Vani
14,50


Bagni
-


Metri quadri
353,60


Certificazione energetica
-


Data udienza
13/03/2026 ore 16:30


Tipo di vendita
Senza incanto


Modalità di vendita
Sincrona mista


Luogo
Viale della Regione n. 21 - Caltanissetta 93100


Luogo presentazione offerte
-


Termine presentazione offerte
12/03/2026 ore 12:00


Prezzo base
€ 110.200,00


Offerta minima
€ 82.650,00


Rialzo minimo in caso di gara
€ 5.000,00


Deposito cauzionale
10% del prezzo offerto


Deposito in conto spese
-


Tribunale
Caltanissetta

Tipo di procedura
Esecuzione immobiliare post legge 80

Ruolo
11/2020

Delegato alla vendita
Toscano Vincenzo
(Procede alle operazioni di vendita)

Recapiti
-

Email
-

Custode giudiziario
Toscano Vincenzo
(Gestisce la visita del bene)

Recapiti
Cell. 3339943751
Tel. 0934563102

Scheda COD. 4318418 - Pubblicata dal 08/01/2026

La presente scheda di vendita riporta integralmente informazioni e documenti pervenuti ufficialmente dal Ministero e dal professionista incaricato.


Pubblicazione autorizzata dall’Autorità competente, è vietata ogni ripubblicazione o riproduzione anche parziale


Ti interessa questa vendita?

Documentazione

Visualizza su mappa

Mappa geografica del bene

Storico delle vendite

Data venditaPrezzo base
14/03/2025€ 261.215,00
04/07/2025€ 195.911,00
30/12/2025€ 146.933,00
13/03/2026€ 110.200,00

Punti di interesse

Fonte dati

Nel raggio di {{range}}Km

Loading...
  • {{ getIcon(poi.type) }} {{ poi.localized }}: {{poi.count}}
  • {{ getIcon(poi.type) }} {{ poi.localized }}: {{poi.count}}
Dati non disponibili