Astegiudiziarie.it è parte di Rete Aste Network

Accedi o registrati

Non sei ancora registrato?

Oppure

Accedi

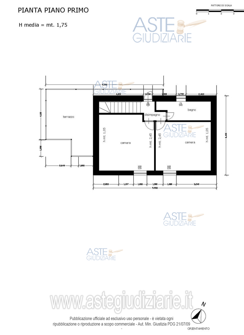
giudiziariagiudiziariaTribunale di ROMAESECUZIONI CIVILI IMMOBILIARIESPROPRIAZIONE IMMOBILIARE (CARTABIA)9472024CustodeIvg di roma srlPRCFNC50L27A241TPVP@VISITEIVGROMA.IT06895698010689569801falsetrueDelegato alla venditaIvanCarpigoCRPVNI68A19H501Kivancarpigo@tin.ittruefalse2407959LOTTO UNICOIMMOBILIIMMOBILE RESIDENZIALEVia S. Pier Niceto, 18, Roma RM, ItaliaRomaLazioItaliaQuota pari a 100/100 del diritto di proprietà su abitazione sita in Roma, zona Borgata Finocchio, Via San Pier Niceto n. 18, piccola villetta bilivelli ad uso abitazione, composta da ingresso, soggiorno-pranzo, bagno, cucina e ripostiglio al piano terra, per una superficie lorda coperta di mq 64,00 e due camere, bagno e terrazzo al piano primo, per una superficie lorda coperta di mq 64,00 più terrazzo di mq 21,00 lordi, con annessa corte pertinenziale esclusiva di mq 156,00, più piccolo manufatto3107100IMMOBILE RESIDENZIALEABITAZIONE IN VILLINIVia S. Pier Niceto, 18, Roma RM, ItaliaRomaRomaLazioItaliaQuota pari a 100/100 del diritto di proprietà su abitazione sita in Roma, zona Borgata Finocchio, Via San Pier Niceto n. 18, piccola villetta bilivelli ad uso abitazione, servita da scala interna, composta da ingresso, soggiorno-pranzo, bagno, cucina e ripostiglio al piano terra, per una superficie lorda coperta di mq 64,00 e due camere, bagno e terrazzo al piano primo, per una superficie lorda coperta di mq 64,00 più terrazzo di mq 21,00 lordi, con annessa corte pertinenziale esclusiva di mq 156,00, più piccolo manufatto ad uso vano caldaia, della superficie lorda di mq 0,75, ricavato da ex spazio condominiale dell’attiguo fabbricato di Via San Pier Niceto n. 16, già censito come BCNC – bene comune non censibile con la particella 1543 subalterno 5, il tutto per una superficie commerciale convenzionale di mq 150,59. Dati Catastali: Identificato al Catasto Fabbricati del Comune di Roma al foglio 1032 particella 1544 sub 501 e 1543 sub 7 graffate (abitazione) e particella 76 sub 502 (area urbana); Confini: La proprietà, nel suo insieme di fabbricato e corte esclusiva, confina con: Via San Pier Niceto; fabbricato condominiale Via San Pier Niceto n. 22, particella catastale 76 e suoi subalterni; terreno particella catastale 203; fabbricato condominiale Via San Pier Niceto n. 16, particella catastale 1543 e suoi subalterni, salvo altri. La villetta confina con: corte esclusiva confinante fabbricato condominiale Via San Pier Niceto n. 16, particella catastale 1543 e suoi subalterni; area pertinenziale particella 72 subalterno 502; terreno particella catastale 203, salvo altri. Regolarità edilizia: L’immobile è stato realizzato con la destinazione d’uso di box autorimessa, in assenza di titolo edilizio e nelle more di una domanda di condono edilizio ai sensi della legge 47/85, presentata da ******* all’allora VII Circoscrizione e da questa assunta con protocollo 2889/86, successivamente assunta dall’Ufficio Condono con il protocollo 28135/86 sot 3 e sot 4, la cui pratica risulta allo stato 99, corrispondente al rilascio della concessione in sanatoria. Successivamente, l’immobile subisce il cambio di destinazione d’uso da box autorimessa ad abitazione, per il quale viene presentata dall’attuale comproprietario **********, domanda di condono edilizio ai sensi della Legge 724/94, assunta dal Comune di Roma con protocollo 2561 del 07/12/1994, andata a buon fine con il rilascio della Concessione in Sanatoria n. 199957 del 02/11/1999. Si fa presente che la sanatoria è stata richiesta e rilasciata per il solo piano terra, con la superficie utile di mq 54,10. Nell’anno 2003, l’immobile viene ampliato con la realizzazione del primo piano, per la quale viene presentata, sempre a nome di *********, domanda di condono edilizio ai sensi della Legge 326/2004, assunta con protocollo 5885 del 18/01/2005, per la costruzione di un sottotetto di mq 30,00 e mc 65,00, con altezza variabile da mt. 1,50 a mt. 2,40. Tale pratica non risulta andata a buon fine, in quanto l’Ufficio Condono ha comunicato al richiedente un Preavviso di Rigetto, protocollo QI 2023/74262 del 24/04/2023, ai sensi dell’art. 6 comma 2, della Legge Regionale del Lazio n. 12/2024. Va altresì rilevato che, ulteriormente alla sopraelevazione della villetta di cui alla domanda di condono in fase di rigetto, è stata realizzata la costruzione del terrazzo, sempre al primo piano, in assenza di titolo autorizzativo edilizio, nonché nelle more di una domanda di condono ancora non definita. Sulla base di quanto sopra, appare evidente che la sola porzione legittimata sia costituita dal piano terra della villetta, seppur con un distinguo, per una superficie lorda di mq 64,00 mentre è illegittimo l’intero piano primo, sia il sottotetto che l’attiguo terrazzo. Il distinguo, infatti, riguarda la difformità del prospetto dal lato dell’area urbana, rilevabile dalle fotografie allegate alla pratica di condono edilizio dell’anno 2004, laddove risulta evidente la presenza di una finestra, in luogo dell’attuale porta-finestra di accesso al soggiorno. Tale circostanza, configura una opera eseguita in parziale difformità dal titolo abilitativo, che nella fattispecie è la concessione in sanatoria del 1999, che non pregiudica comunque la regolarizzazione ex post della medesima, potendosi applicare l’accertamento di conformità ad esso riferito, anche alla luce della Legge 105/2025 cosiddetta “legge salva casa”. In conclusione: Immobile con piano terra legittimato da concessione in sanatoria, piano primo con domanda di condono 2004 non definita sub iudice a preavviso di rigetto, terrazzo privo di titolo edilizio, entrambi soggetti ad una possibile intimazione di demolizione ovvero fiscalizzazione dell’abuso non sanabile, opere interne e trasformazione di una finestra in portafinestra, legittimabili ex post in base alla Legge 105/2024 e alla legge Regione Lazio 12/2025, sagoma della villetta con distacco dal fabbricato limitrofo inferiore alla distanza legale, sub iudice ad azione revocatoria o risarcitoria, appropriazione del vano caldaia da ex locale condominiale, con possesso ultraventennale ed obbligo di azione legale per usucapione. Normativa urbanistica: Sulla base del Piano Regolatore Generale del 1965, adottato il 18/12/1962 ed approvato con un Decreto del Presidente della Repubblica il 16/12/1965, l’immobile ricade in Zona F, sottozona F1 – ristrutturazione urbanistica, aree parzialmente edificate, destinazione confermata con la Variante delle Certezze, adottata con deliberazione Consiglio Comunale n. 92 del 29/05/1997. In base alle prescrizioni urbanistiche del Nuovo Piano Regolatore Generale, adottato con Delibera di Consiglio Comunale n. 33 del 19-20/03/2003 ed approvato con Delibera di Consiglio Comunale n. 18 del 12/02/2008 e, con ridisegno definitivo, con successiva con Deliberazione di Commissario Straordinario con i poteri dell'Assemblea Capitolina n. 48 del 07/06/2016, l’immobile ricade in zona “Città da Ristrutturare, individuazione dei nuclei di edilizia ex abusiva da recuperare” ed in particolare nell’ambito del Piano Esecutivo per il recupero urbanistico del nucleo m. 8.14 “Finocchio – Valle della Morte”. L’area risulta soggetta a vincoli paesaggistici, ai sensi e per gli effetti dell’ex art. 134, comma 1, lettera b) del Codice dei Beni Culturali e del Paesaggio di cui al Decreto Legislativo 22/01/2004 n. 42, ricadendo nell’ambito del Piano Territoriale Paesistico n. 15/11 “Pendici dei Castelli” Toc/11, nonché soggetta a vincolo idrogeologico di “Parziale in edificabilità per Falde idriche, imposto con le NTA – Norme Tecniche di Attuazione del PRG 1967”. Nella Tavola A del PTPR – Piano Territoriale Paesistico Regionale del Lazio ricade in “Paesaggiodegli insediamenti urbani” e Paesaggio degli insediamenti in evoluzione”, mentre risulta parzialmente interessato da vincolo di tipo archeologico, poiché la Tavola B del PTPR evidenzia la presenza, nel contesto, di “protezione di punti e linee di interesse archeologico, con relative fasce di rispetto”, all’interno della destinazione “Aree urbanizzate del PTPR”. Formalità SOLO FORMALMENTE pregiudizievoli non cancellabili con il decreto di trasferimento: Atto di pignoramento trascritto in data 4.11.2019 form. 129316/90291 a favore di ************************* contro ******** per i diritti pari a 1/1 di piena proprietà in regime di comunione legale e contro ******** per i diritti pari a 1/1 di piena proprietà in regime di comunione legale su immobile riportato al NCEU al Foglio 1032, particella 1543, subalterno 7 graffata con Particella 1544 subalterno 501, e al Foglio 1032, particella 76, subalterno 502; Verbale separazione consensuale con assegnazione casa familiare trascritto in data 26.07.2019 reg. gen. 92993 e registro part. 65205 a favore di ************* con oggetto immobile riportato al NCEU al Foglio 1032, particella 1543, subalterno 7 graffata con Particella 1544 subalterno 501 Stato di occupazione: occupato dal debitore esecutato che vi abita (non potrà emettersi l’ordine di liberazione prima del decreto di trasferimento) Il tutto come meglio descritto nell’elaborato peritale depositato in atti2026-06-04T11:00:00SENZA INCANTOASINCRONA TELEMATICAN.A.166.000,00124.500,005.000,002026-06-03T23:59:00gestore delle venditehttp://www.astetelematiche.ithttp://www.astetelematiche.itsito pubblicitahttps://www.astegiudiziarie.ithttps://www.astegiudiziarie.itsito pubblicitahttps://www.asteannunci.ithttps://www.asteannunci.itsito pubblicitahttps://www.fallcoaste.ithttps://www.fallcoaste.it2026-03-15

Abitazione in villini

Via S. Pier Niceto, 18, Roma RM, Italia, Roma (RM)

€ 166.000,00

Offerta minima € 124.500,00


Codice A4346112

Lotto 1

Data udienza 04/06/2026 ore 11:00

Termine presentazione offerte 03/06/2026 ore 23:59

Abitazione in villini

Via S. Pier Niceto, 18, Roma RM, Italia, Roma (RM)

€ 166.000,00

Offerta minima € 124.500,00


Codice A4346112

Lotto 1

Data udienza 04/06/2026 ore 11:00

Termine presentazione offerte 03/06/2026 ore 23:59

Ti interessa questa vendita?

Documentazione

Visualizza su mappa

Mappa geografica del bene

Punti di interesse

Fonte dati

Nel raggio di {{range}}Km

Loading...
  • {{ getIcon(poi.type) }} {{ poi.localized }}: {{poi.count}}
  • {{ getIcon(poi.type) }} {{ poi.localized }}: {{poi.count}}
Dati non disponibili

Quota pari a 100/100 del diritto di proprietà su abitazione sita in Roma, zona Borgata Finocchio, Via San Pier Niceto n. 18, piccola villetta bilivelli ad uso abitazione, composta da ingresso, soggiorno-pranzo, bagno, cucina e ripostiglio al piano terra, per una superficie lorda coperta di mq 64,00 e due camere, bagno e terrazzo al piano primo, per una superficie lorda coperta di mq 64,00 più terrazzo di mq 21,00 lordi, con annessa corte pertinenziale esclusiva di mq 156,00, più piccolo manufatto

Indirizzo
Via S. Pier Niceto, 18, Roma RM, Italia, Roma (RM)


Codice asta
4346112


Lotto
1


Numero beni
1


Genere
Immobili


Categoria
Immobile residenziale


Valore di stima
-


Abitazione in villini

Quota pari a 100/100 del diritto di proprietà su abitazione sita in Roma, zona Borgata Finocchio, Via San Pier Niceto n. 18, piccola villetta bilivelli ad uso abitazione, servita da scala interna, composta da ingresso, soggiorno-pranzo, bagno, cucina e ripostiglio al piano terra, per una superficie lorda coperta di mq 64,00 e due camere, bagno e terrazzo al piano primo, per una superficie lorda coperta di mq 64,00 più terrazzo di mq 21,00 lordi, con annessa corte pertinenziale esclusiva di mq 156,00, più piccolo manufatto ad uso vano caldaia, della superficie lorda di mq 0,75, ricavato da ex spazio condominiale dell’attiguo fabbricato di Via San Pier Niceto n. 16, già censito come BCNC – bene comune non censibile con la particella 1543 subalterno 5, il tutto per una superficie commerciale convenzionale di mq 150,59. Dati Catastali: Identificato al Catasto Fabbricati del Comune di Roma al foglio 1032 particella 1544 sub 501 e 1543 sub 7 graffate (abitazione) e particella 76 sub 502 (area urbana); Confini: La proprietà, nel suo insieme di fabbricato e corte esclusiva, confina con: Via San Pier Niceto; fabbricato condominiale Via San Pier Niceto n. 22, particella catastale 76 e suoi subalterni; terreno particella catastale 203; fabbricato condominiale Via San Pier Niceto n. 16, particella catastale 1543 e suoi subalterni, salvo altri. La villetta confina con: corte esclusiva confinante fabbricato condominiale Via San Pier Niceto n. 16, particella catastale 1543 e suoi subalterni; area pertinenziale particella 72 subalterno 502; terreno particella catastale 203, salvo altri. Regolarità edilizia: L’immobile è stato realizzato con la destinazione d’uso di box autorimessa, in assenza di titolo edilizio e nelle more di una domanda di condono edilizio ai sensi della legge 47/85, presentata da ******* all’allora VII Circoscrizione e da questa assunta con protocollo 2889/86, successivamente assunta dall’Ufficio Condono con il protocollo 28135/86 sot 3 e sot 4, la cui pratica risulta allo stato 99, corrispondente al rilascio della concessione in sanatoria. Successivamente, l’immobile subisce il cambio di destinazione d’uso da box autorimessa ad abitazione, per il quale viene presentata dall’attuale comproprietario **********, domanda di condono edilizio ai sensi della Legge 724/94, assunta dal Comune di Roma con protocollo 2561 del 07/12/1994, andata a buon fine con il rilascio della Concessione in Sanatoria n. 199957 del 02/11/1999. Si fa presente che la sanatoria è stata richiesta e rilasciata per il solo piano terra, con la superficie utile di mq 54,10. Nell’anno 2003, l’immobile viene ampliato con la realizzazione del primo piano, per la quale viene presentata, sempre a nome di *********, domanda di condono edilizio ai sensi della Legge 326/2004, assunta con protocollo 5885 del 18/01/2005, per la costruzione di un sottotetto di mq 30,00 e mc 65,00, con altezza variabile da mt. 1,50 a mt. 2,40. Tale pratica non risulta andata a buon fine, in quanto l’Ufficio Condono ha comunicato al richiedente un Preavviso di Rigetto, protocollo QI 2023/74262 del 24/04/2023, ai sensi dell’art. 6 comma 2, della Legge Regionale del Lazio n. 12/2024. Va altresì rilevato che, ulteriormente alla sopraelevazione della villetta di cui alla domanda di condono in fase di rigetto, è stata realizzata la costruzione del terrazzo, sempre al primo piano, in assenza di titolo autorizzativo edilizio, nonché nelle more di una domanda di condono ancora non definita. Sulla base di quanto sopra, appare evidente che la sola porzione legittimata sia costituita dal piano terra della villetta, seppur con un distinguo, per una superficie lorda di mq 64,00 mentre è illegittimo l’intero piano primo, sia il sottotetto che l’attiguo terrazzo. Il distinguo, infatti, riguarda la difformità del prospetto dal lato dell’area urbana, rilevabile dalle fotografie allegate alla pratica di condono edilizio dell’anno 2004, laddove risulta evidente la presenza di una finestra, in luogo dell’attuale porta-finestra di accesso al soggiorno. Tale circostanza, configura una opera eseguita in parziale difformità dal titolo abilitativo, che nella fattispecie è la concessione in sanatoria del 1999, che non pregiudica comunque la regolarizzazione ex post della medesima, potendosi applicare l’accertamento di conformità ad esso riferito, anche alla luce della Legge 105/2025 cosiddetta “legge salva casa”. In conclusione: Immobile con piano terra legittimato da concessione in sanatoria, piano primo con domanda di condono 2004 non definita sub iudice a preavviso di rigetto, terrazzo privo di titolo edilizio, entrambi soggetti ad una possibile intimazione di demolizione ovvero fiscalizzazione dell’abuso non sanabile, opere interne e trasformazione di una finestra in portafinestra, legittimabili ex post in base alla Legge 105/2024 e alla legge Regione Lazio 12/2025, sagoma della villetta con distacco dal fabbricato limitrofo inferiore alla distanza legale, sub iudice ad azione revocatoria o risarcitoria, appropriazione del vano caldaia da ex locale condominiale, con possesso ultraventennale ed obbligo di azione legale per usucapione. Normativa urbanistica: Sulla base del Piano Regolatore Generale del 1965, adottato il 18/12/1962 ed approvato con un Decreto del Presidente della Repubblica il 16/12/1965, l’immobile ricade in Zona F, sottozona F1 – ristrutturazione urbanistica, aree parzialmente edificate, destinazione confermata con la Variante delle Certezze, adottata con deliberazione Consiglio Comunale n. 92 del 29/05/1997. In base alle prescrizioni urbanistiche del Nuovo Piano Regolatore Generale, adottato con Delibera di Consiglio Comunale n. 33 del 19-20/03/2003 ed approvato con Delibera di Consiglio Comunale n. 18 del 12/02/2008 e, con ridisegno definitivo, con successiva con Deliberazione di Commissario Straordinario con i poteri dell'Assemblea Capitolina n. 48 del 07/06/2016, l’immobile ricade in zona “Città da Ristrutturare, individuazione dei nuclei di edilizia ex abusiva da recuperare” ed in particolare nell’ambito del Piano Esecutivo per il recupero urbanistico del nucleo m. 8.14 “Finocchio – Valle della Morte”. L’area risulta soggetta a vincoli paesaggistici, ai sensi e per gli effetti dell’ex art. 134, comma 1, lettera b) del Codice dei Beni Culturali e del Paesaggio di cui al Decreto Legislativo 22/01/2004 n. 42, ricadendo nell’ambito del Piano Territoriale Paesistico n. 15/11 “Pendici dei Castelli” Toc/11, nonché soggetta a vincolo idrogeologico di “Parziale in edificabilità per Falde idriche, imposto con le NTA – Norme Tecniche di Attuazione del PRG 1967”. Nella Tavola A del PTPR – Piano Territoriale Paesistico Regionale del Lazio ricade in “Paesaggiodegli insediamenti urbani” e Paesaggio degli insediamenti in evoluzione”, mentre risulta parzialmente interessato da vincolo di tipo archeologico, poiché la Tavola B del PTPR evidenzia la presenza, nel contesto, di “protezione di punti e linee di interesse archeologico, con relative fasce di rispetto”, all’interno della destinazione “Aree urbanizzate del PTPR”. Formalità SOLO FORMALMENTE pregiudizievoli non cancellabili con il decreto di trasferimento: Atto di pignoramento trascritto in data 4.11.2019 form. 129316/90291 a favore di ************************* contro ******** per i diritti pari a 1/1 di piena proprietà in regime di comunione legale e contro ******** per i diritti pari a 1/1 di piena proprietà in regime di comunione legale su immobile riportato al NCEU al Foglio 1032, particella 1543, subalterno 7 graffata con Particella 1544 subalterno 501, e al Foglio 1032, particella 76, subalterno 502; Verbale separazione consensuale con assegnazione casa familiare trascritto in data 26.07.2019 reg. gen. 92993 e registro part. 65205 a favore di ************* con oggetto immobile riportato al NCEU al Foglio 1032, particella 1543, subalterno 7 graffata con Particella 1544 subalterno 501 Stato di occupazione: occupato dal debitore esecutato che vi abita (non potrà emettersi l’ordine di liberazione prima del decreto di trasferimento) Il tutto come meglio descritto nell’elaborato peritale depositato in atti

Indirizzo
Via S. Pier Niceto, 18, Roma RM, Italia, Roma (RM)


Piano
t-1


Disponibilità
-


Vani
5,00


Bagni
2


Metri quadri
109,00


Certificazione energetica
-


Data udienza
04/06/2026 ore 11:00


Tipo di vendita
Senza incanto


Modalità di vendita
Asincrona telematica


Luogo
N.A. -


Luogo presentazione offerte
-


Termine presentazione offerte
03/06/2026 ore 23:59


Prezzo base
€ 166.000,00


Offerta minima
€ 124.500,00


Rialzo minimo in caso di gara
€ 5.000,00


Deposito cauzionale
-


Deposito in conto spese
-


Tribunale
Roma

Tipo di procedura
Espropriazione immobiliare (cartabia)

Ruolo
947/2024

Giudice
Iappelli 

Recapiti
-

Email
-

Delegato alla vendita
Carpigo Ivan
(Procede alle operazioni di vendita)

Recapiti
-

Email
-

Custode giudiziario
Ivg di roma srl 
(Gestisce la visita del bene)

Recapiti
Cell. 0689569801

Scheda COD. 4346112 - Pubblicata dal 19/03/2026

La presente scheda di vendita riporta integralmente informazioni e documenti pervenuti ufficialmente dal Ministero e dal professionista incaricato.


Pubblicazione autorizzata dall’Autorità competente, è vietata ogni ripubblicazione o riproduzione anche parziale


Ti interessa questa vendita?

Documentazione

Visualizza su mappa

Mappa geografica del bene

Punti di interesse

Fonte dati

Nel raggio di {{range}}Km

Loading...
  • {{ getIcon(poi.type) }} {{ poi.localized }}: {{poi.count}}
  • {{ getIcon(poi.type) }} {{ poi.localized }}: {{poi.count}}
Dati non disponibili