Astegiudiziarie.it è parte di Rete Aste Network

Accedi o registrati

Non sei ancora registrato?

Oppure

Accedi

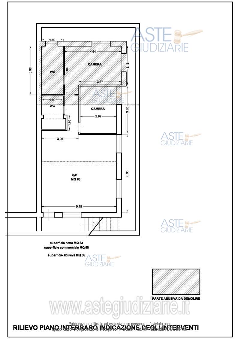
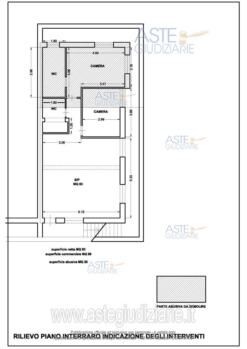
giudiziariagiudiziariaTribunale di ROMAESECUZIONI CIVILI IMMOBILIARIESPROPRIAZIONE IMMOBILIARE (CARTABIA)92025CustodeIvg di roma srlPRCFNC50L27A241Tpvp@visiteivgroma.it0689569801falsetrueDelegato alla venditaMariaAncoraNCRMRA68A52D862Nstudiolegaleancora@gmail.comtruefalseGiudiceFederica D'ambrosiofalsefalse2409817LOTTO UNICOIMMOBILIIMMOBILE RESIDENZIALEVia Picciano, 48, int. 5, 00132 Roma RM, Italia00132RomaRomaLazioItaliaQuota pari a 1/1 del diritto di piena proprietà su villetta ubicata in Roma, in Via Picciano n. 48, int. 5, piano S1-T-1 con giardino e posto auto3109572IMMOBILE RESIDENZIALEABITAZIONE IN VILLINIVia Picciano, 48, int. 5 00132 Roma RM, Italia00132RomaRomaLazioItaliaQuota pari a 1/1 del diritto di piena proprietà su villetta ubicata in Roma, in via Picciano n. 48, int. 5, piano S1-T-1, nel Municipio Roma VI, località Castelverde a Lunghezza, la quale si compone dei seguenti beni: I BENE) abitazione con cantina, soffitta e annesso posto auto all'interno di un villino bifamiliare con giardino; il complesso immobiliare è costituito da 4 edifici distribuiti in tre villini monofamilari e uno bifamilare, per totale di 5 immobili. I beni pignorati fanno parte dell'ultimo villino bifamiliare, int. 5, collocato in fondo ad un vicolo di accesso senza uscita, che da via Picciano porta sino al cancello di ingresso e alla corte pavimentata, al cui interno si trova anche il posto auto. La villetta si sviluppa su tre piani: dal cancello si accede al giardino cortilizio che lo circonda su tre lati e con pochi gradini si sale ad una terrazza su cui si affaccia un portico chiuso e attraverso il quale si entra al piano rialzato nell'immobile di 66 mq commerciali composto da un soggiorno con angolo cottura, due camere da letto e bagno. Attraverso una scala interna si accede alla soffitta in cui è presente una camera con bagno e balcone sito sopra il portico sottostante. Al piano seminterrato, con accesso indipendente dal giardino e tramite pochi gradini, si scende alla cantina, che originariamente coincideva con l'impronta superiore dell'abitazione, mentre, dopo, è stata ampliata nella corte esterna da 50 a 90 mq, con cambio di destinazione d'uso, tramite alcune tramezzature interne e senza titolo edilizio è stata convertita in un appartamento composto da soggiorno con angolo cottura, due camere da letto e bagno. Nel giardino è presente il posto auto accatastato separatamente e sul fondo nell'angolo, a confine con altre proprietà, è stata realizzata abusivamente una tettoia in legno con copertura in tegole. L’immobile ha una superficie lorda di 149,74 mq oltre a 213,81 mq di giardino; è identificato al Catasto Fabbricati del Comune di Roma al Foglio n. 670 particella 5659 sub 501 z.c. 6 cat. A/7 classe 5, consistenza 5 vani, superficie catastale 108 mq, r.c. € 877,98, piano S1-T-1, graffato con la particella 4128 sub 503. Confina con posto auto scoperto distinto con il n. 5 (Foglio 670, particella 5659 sub 6), villino int. 4 (Foglio 670, particella 5659 sub 16) e corte (Foglio 670, particella 4128 sub 503). Non sussiste corrispondenza tra la planimetria catastale e lo stato dei luoghi. Il fabbricato è stato edificato in base a permesso a costruire rilasciato dal Comune di Roma in data 10.02.2010 n. 65 e D.I.A. in variante prot. n. 7622 del 27.01.2011, con successiva comunicazione di fine lavori prot. 27421 del 29.03.2011. E’ stato richiesto certificato di agibilità prot. 27756 del 07.04.2011. Successivamente, in data 24.01.2013 è stata presentata una D.I.A. prot. 10844 ai sensi della legge 21/09 (Piano Casa) e successiva fine lavori prot. 151703 del 05.12.2013, per ampliamento a fini residenziali, con variazione catastale del 05.12.2013 con pratica RM 1286087, come dall'ultima planimetria catastale. Non sono presenti vincoli condominiali. Sussiste servitù di passaggio sulle particelle 5006 e 5007, Foglio 670 C. T. Comune di Roma, giusta atto di compravendita del 29.11.2006 trascritto il 05.12.2006 nn. 163297/97324 per consentire l’accesso alla particella n. 4130, Foglio 670 (immobile esecutato).Formalità pregiudizievoli non cancellabili: 1) Servitù permanente a favore di A.C.E.A. giusta atto del 22.04.1981, trascritto il 24.07.1981 al n. 42569, gravante sull'immobile esecutato 2) Atto d’obbligo del 13.02.2009 trascritto il 16.02.2009 nn. 18686/9387 a favore del Comune di Roma con il quale la società costruttrice, avendo presentato un progetto per la realizzazione di n. 3 edifici residenziali, per ottenere il rilascio della concessione, si obbligava a: 1) vincolare il lotto di terreno al servizio della costruzione progettata; 2) mantenere permanentemente la destinazione d'uso dei locali al piano seminterrato al servizio degli edifici soprastanti; delle soffitte al piano primo al servizio degli edifici sottostanti; a mantenere la destinazione d'uso non residenziale degli accessori al piano terra al servizio degli edifici, mantenere a giorno e libere le superfici a portico piano terra; 3) destinare e mantenere permanentemente mq. 347,46 a parcheggio privato, a mantenere permanentemente a giardino gli spazi di distacco del fabbricato e a porre a dimora 8 alberi. 3) Atto d’obbligo del 03.07.2009 trascritto il 06.07.2009 nn. 87392/46343 a favore del Comune di Roma con il quale la società costruttrice, avendo presentato un progetto per la edificazione di n. 4 edifici residenziali, per ottenere il rilascio del permesso di costruire, si obbligava a: 1) vincolare il lotto di terreno al servizio della costruzione progettata; 2) mantenere permanentemente la destinazione d'uso dei locali al piano seminterrato al servizio degli edifici soprastanti; delle soffitte al piano primo al servizio degli edifici sottostanti; a mantenere la destinazione d'uso non residenziale degli accessori al piano terra al servizio degli edifici e mantenere a giorno e libere le superfici a portico del piano terra; 3) destinare e mantenere permanentemente mq. 95 a parcheggio privato, a mantenere permanentemente a giardino gli spazi di distacco del fabbricato e a porre a dimora 8 alberi. Stato di occupazione: l’immobile è occupato da terzo in virtù di contratto di comodato d’uso gratuito del 27.03.2012, registrato il 28.03.2012 al n. 3286 Serie 3, di quattro anni rinnovabile, non opponibile alla procedura; è in corso la liberazione. Tutto meglio descritto nell’elaborato peritale in atti.6705659501particella 4128 sub 503INCOR149,745.0S1 T 13110018ALTRA CATEGORIAPOSTO AUTOVia Picciano, 48, int. 5, 00132 Roma RM, Italia00132RomaRomaLazioItaliaQuota pari a 1/1 del diritto di piena proprietà su posto auto scoperto all'interno della villetta int. 5, in via Picciano 48, località Castelverde a Lunghezza, Roma; è contraddistinto al catasto con il n. 5, piano T ed è collocato nella corte esterna che circonda il villino appena si entra dal cancello, sulla destra. Il bene ha una superficie lorda di 19,00 mq ed è identificato al Catasto Fabbricati del Comune di Roma al Foglio n. 670 particella 5659 sub 6, z.c. 6 cat. C/6 classe 7, superficie catastale 19 mq, r.c. € 35,33, piano T. Confina con B.C.N.C. contraddistinto al Foglio 670 part. 5659 sub 501, corte contraddistinta al Foglio 670 part. 4128 sub 503, corte contraddistinta al Foglio 670 part. 5659 sub 501, salvo altri. Sussiste corrispondenza tra lo stato dei luoghi e la planimetria catastale esistente. La corte in cui si trova il posto auto è in buono stato di conservazione, pavimentata in gres tipo cotto di color mattone. Il bene risulta regolare così come è raffigurato nel progetto del permesso di costruire n. 65 del 10.02.2010 e D.I.A. in variante prot. n. 7622 del 27.01.2011, con successiva comunicazione di fine lavori prot. 27421 del 29.03.2011. Non sono presenti vincoli od oneri condominiali. Non sussistono censi, livelli né usi civici. Sussiste servitù di passaggio gravante sulle particelle 5006 e 5007, Foglio 670 Catasto Terreni Comune di Roma, giusta atto di compravendita del 29.11.2006 trascritto in data 05.12.2006 formalità nn. 163297/97324 per consentire l’accesso alla particella n. 4130, Foglio 670 (immobile esecutato). Formalità pregiudizievoli non cancellabili: si veda quanto indicato per il Bene I. Stato di occupazione: l’immobile è occupato da un terzo in virtù di contratto di comodato d’uso gratuito del 27.03.2012, registrato in data 28.03.2012 al n. 3286 Serie 3, della durata di quattro anni rinnovabile, non opponibile alla procedura; è in corso la liberazione. Il tutto come meglio descritto nell’elaborato peritale depositato in atti.67056596INCOR19T2026-06-18T14:00:00SENZA INCANTOASINCRONA TELEMATICAN.A.152.000,00114.000,003.000,002026-06-17T23:59:00gestore delle venditehttps://www.garavirtuale.ithttps://www.garavirtuale.itsito pubblicitahttps://www.astegiudiziarie.ithttps://www.astegiudiziarie.itsito pubblicitahttps://www.asteannunci.ithttps://www.asteannunci.itsito pubblicitahttps://www.fallcoaste.ithttps://www.fallcoaste.it2026-03-18

Abitazione in villini, posto auto

Via Picciano, 48, int. 5, 00132 Roma RM, Italia, Roma (RM)

€ 152.000,00

Offerta minima € 114.000,00


Codice A4347554

Lotto Lotto unico

Data udienza 18/06/2026 ore 14:00

Termine presentazione offerte 17/06/2026 ore 23:59

Abitazione in villini, posto auto

Via Picciano, 48, int. 5, 00132 Roma RM, Italia, Roma (RM)

€ 152.000,00

Offerta minima € 114.000,00


Codice A4347554

Lotto Lotto unico

Data udienza 18/06/2026 ore 14:00

Termine presentazione offerte 17/06/2026 ore 23:59

Ti interessa questa vendita?

Documentazione

Visualizza su mappa

Mappa geografica del bene

Punti di interesse

Fonte dati

Nel raggio di {{range}}Km

Loading...
  • {{ getIcon(poi.type) }} {{ poi.localized }}: {{poi.count}}
  • {{ getIcon(poi.type) }} {{ poi.localized }}: {{poi.count}}
Dati non disponibili

Quota pari a 1/1 del diritto di piena proprietà su villetta ubicata in Roma, in Via Picciano n. 48, int. 5, piano S1-T-1 con giardino e posto auto

Indirizzo
Via Picciano, 48, int. 5, 00132 Roma RM, Italia, Roma (RM)


Codice asta
4347554


Lotto
Lotto unico


Numero beni
2


Genere
Immobili


Categoria
Immobile residenziale


Valore di stima
-


Abitazione in villini

Quota pari a 1/1 del diritto di piena proprietà su villetta ubicata in Roma, in via Picciano n. 48, int. 5, piano S1-T-1, nel Municipio Roma VI, località Castelverde a Lunghezza, la quale si compone dei seguenti beni: I BENE) abitazione con cantina, soffitta e annesso posto auto all'interno di un villino bifamiliare con giardino; il complesso immobiliare è costituito da 4 edifici distribuiti in tre villini monofamilari e uno bifamilare, per totale di 5 immobili. I beni pignorati fanno parte dell'ultimo villino bifamiliare, int. 5, collocato in fondo ad un vicolo di accesso senza uscita, che da via Picciano porta sino al cancello di ingresso e alla corte pavimentata, al cui interno si trova anche il posto auto. La villetta si sviluppa su tre piani: dal cancello si accede al giardino cortilizio che lo circonda su tre lati e con pochi gradini si sale ad una terrazza su cui si affaccia un portico chiuso e attraverso il quale si entra al piano rialzato nell'immobile di 66 mq commerciali composto da un soggiorno con angolo cottura, due camere da letto e bagno. Attraverso una scala interna si accede alla soffitta in cui è presente una camera con bagno e balcone sito sopra il portico sottostante. Al piano seminterrato, con accesso indipendente dal giardino e tramite pochi gradini, si scende alla cantina, che originariamente coincideva con l'impronta superiore dell'abitazione, mentre, dopo, è stata ampliata nella corte esterna da 50 a 90 mq, con cambio di destinazione d'uso, tramite alcune tramezzature interne e senza titolo edilizio è stata convertita in un appartamento composto da soggiorno con angolo cottura, due camere da letto e bagno. Nel giardino è presente il posto auto accatastato separatamente e sul fondo nell'angolo, a confine con altre proprietà, è stata realizzata abusivamente una tettoia in legno con copertura in tegole. L’immobile ha una superficie lorda di 149,74 mq oltre a 213,81 mq di giardino; è identificato al Catasto Fabbricati del Comune di Roma al Foglio n. 670 particella 5659 sub 501 z.c. 6 cat. A/7 classe 5, consistenza 5 vani, superficie catastale 108 mq, r.c. € 877,98, piano S1-T-1, graffato con la particella 4128 sub 503. Confina con posto auto scoperto distinto con il n. 5 (Foglio 670, particella 5659 sub 6), villino int. 4 (Foglio 670, particella 5659 sub 16) e corte (Foglio 670, particella 4128 sub 503). Non sussiste corrispondenza tra la planimetria catastale e lo stato dei luoghi. Il fabbricato è stato edificato in base a permesso a costruire rilasciato dal Comune di Roma in data 10.02.2010 n. 65 e D.I.A. in variante prot. n. 7622 del 27.01.2011, con successiva comunicazione di fine lavori prot. 27421 del 29.03.2011. E’ stato richiesto certificato di agibilità prot. 27756 del 07.04.2011. Successivamente, in data 24.01.2013 è stata presentata una D.I.A. prot. 10844 ai sensi della legge 21/09 (Piano Casa) e successiva fine lavori prot. 151703 del 05.12.2013, per ampliamento a fini residenziali, con variazione catastale del 05.12.2013 con pratica RM 1286087, come dall'ultima planimetria catastale. Non sono presenti vincoli condominiali. Sussiste servitù di passaggio sulle particelle 5006 e 5007, Foglio 670 C. T. Comune di Roma, giusta atto di compravendita del 29.11.2006 trascritto il 05.12.2006 nn. 163297/97324 per consentire l’accesso alla particella n. 4130, Foglio 670 (immobile esecutato).Formalità pregiudizievoli non cancellabili: 1) Servitù permanente a favore di A.C.E.A. giusta atto del 22.04.1981, trascritto il 24.07.1981 al n. 42569, gravante sull'immobile esecutato 2) Atto d’obbligo del 13.02.2009 trascritto il 16.02.2009 nn. 18686/9387 a favore del Comune di Roma con il quale la società costruttrice, avendo presentato un progetto per la realizzazione di n. 3 edifici residenziali, per ottenere il rilascio della concessione, si obbligava a: 1) vincolare il lotto di terreno al servizio della costruzione progettata; 2) mantenere permanentemente la destinazione d'uso dei locali al piano seminterrato al servizio degli edifici soprastanti; delle soffitte al piano primo al servizio degli edifici sottostanti; a mantenere la destinazione d'uso non residenziale degli accessori al piano terra al servizio degli edifici, mantenere a giorno e libere le superfici a portico piano terra; 3) destinare e mantenere permanentemente mq. 347,46 a parcheggio privato, a mantenere permanentemente a giardino gli spazi di distacco del fabbricato e a porre a dimora 8 alberi. 3) Atto d’obbligo del 03.07.2009 trascritto il 06.07.2009 nn. 87392/46343 a favore del Comune di Roma con il quale la società costruttrice, avendo presentato un progetto per la edificazione di n. 4 edifici residenziali, per ottenere il rilascio del permesso di costruire, si obbligava a: 1) vincolare il lotto di terreno al servizio della costruzione progettata; 2) mantenere permanentemente la destinazione d'uso dei locali al piano seminterrato al servizio degli edifici soprastanti; delle soffitte al piano primo al servizio degli edifici sottostanti; a mantenere la destinazione d'uso non residenziale degli accessori al piano terra al servizio degli edifici e mantenere a giorno e libere le superfici a portico del piano terra; 3) destinare e mantenere permanentemente mq. 95 a parcheggio privato, a mantenere permanentemente a giardino gli spazi di distacco del fabbricato e a porre a dimora 8 alberi. Stato di occupazione: l’immobile è occupato da terzo in virtù di contratto di comodato d’uso gratuito del 27.03.2012, registrato il 28.03.2012 al n. 3286 Serie 3, di quattro anni rinnovabile, non opponibile alla procedura; è in corso la liberazione. Tutto meglio descritto nell’elaborato peritale in atti.

Indirizzo
Via Picciano, 48, int. 5 00132 Roma RM, Italia, Roma (RM)


Piano
S1 T 1


Disponibilità
IN CORSO DI LIBERAZIONE


Vani
5,00


Bagni
2


Metri quadri
149,74


Certificazione energetica
-


Dati catastali

Foglio:670, Particella:5659, Subalterno:501, Graffato:particella 4128 sub 503


Posto auto

Quota pari a 1/1 del diritto di piena proprietà su posto auto scoperto all'interno della villetta int. 5, in via Picciano 48, località Castelverde a Lunghezza, Roma; è contraddistinto al catasto con il n. 5, piano T ed è collocato nella corte esterna che circonda il villino appena si entra dal cancello, sulla destra. Il bene ha una superficie lorda di 19,00 mq ed è identificato al Catasto Fabbricati del Comune di Roma al Foglio n. 670 particella 5659 sub 6, z.c. 6 cat. C/6 classe 7, superficie catastale 19 mq, r.c. € 35,33, piano T. Confina con B.C.N.C. contraddistinto al Foglio 670 part. 5659 sub 501, corte contraddistinta al Foglio 670 part. 4128 sub 503, corte contraddistinta al Foglio 670 part. 5659 sub 501, salvo altri. Sussiste corrispondenza tra lo stato dei luoghi e la planimetria catastale esistente. La corte in cui si trova il posto auto è in buono stato di conservazione, pavimentata in gres tipo cotto di color mattone. Il bene risulta regolare così come è raffigurato nel progetto del permesso di costruire n. 65 del 10.02.2010 e D.I.A. in variante prot. n. 7622 del 27.01.2011, con successiva comunicazione di fine lavori prot. 27421 del 29.03.2011. Non sono presenti vincoli od oneri condominiali. Non sussistono censi, livelli né usi civici. Sussiste servitù di passaggio gravante sulle particelle 5006 e 5007, Foglio 670 Catasto Terreni Comune di Roma, giusta atto di compravendita del 29.11.2006 trascritto in data 05.12.2006 formalità nn. 163297/97324 per consentire l’accesso alla particella n. 4130, Foglio 670 (immobile esecutato). Formalità pregiudizievoli non cancellabili: si veda quanto indicato per il Bene I. Stato di occupazione: l’immobile è occupato da un terzo in virtù di contratto di comodato d’uso gratuito del 27.03.2012, registrato in data 28.03.2012 al n. 3286 Serie 3, della durata di quattro anni rinnovabile, non opponibile alla procedura; è in corso la liberazione. Il tutto come meglio descritto nell’elaborato peritale depositato in atti.

Indirizzo
Via Picciano, 48, int. 5, 00132 Roma RM, Italia, Roma (RM)


Piano
T


Disponibilità
IN CORSO DI LIBERAZIONE


Vani
1,00


Bagni
0


Metri quadri
19,00


Certificazione energetica
-


Dati catastali

Foglio:670, Particella:5659, Subalterno:6


Data udienza
18/06/2026 ore 14:00


Tipo di vendita
Senza incanto


Modalità di vendita
Asincrona telematica


Luogo
N.A. -


Luogo presentazione offerte
-


Termine presentazione offerte
17/06/2026 ore 23:59


Prezzo base
€ 152.000,00


Offerta minima
€ 114.000,00


Rialzo minimo in caso di gara
€ 3.000,00


Deposito cauzionale
-


Deposito in conto spese
-


Tribunale
Roma

Tipo di procedura
Espropriazione immobiliare (cartabia)

Ruolo
9/2025

Giudice
D'ambrosio Federica

Recapiti
-

Email
-

Delegato alla vendita
Ancora Maria
(Procede alle operazioni di vendita)

Recapiti
-

Email
-

Custode giudiziario
I.v.g di roma s.r.l. istituto vendite giudiziarie 
(Gestisce la visita del bene)

Recapiti
Tel. 06 83751500

Scheda COD. 4347554 - Pubblicata dal 23/04/2026

La presente scheda di vendita riporta integralmente informazioni e documenti pervenuti ufficialmente dal Ministero e dal professionista incaricato.


Pubblicazione autorizzata dall’Autorità competente, è vietata ogni ripubblicazione o riproduzione anche parziale


Ti interessa questa vendita?

Documentazione

Visualizza su mappa

Mappa geografica del bene

Punti di interesse

Fonte dati

Nel raggio di {{range}}Km

Loading...
  • {{ getIcon(poi.type) }} {{ poi.localized }}: {{poi.count}}
  • {{ getIcon(poi.type) }} {{ poi.localized }}: {{poi.count}}
Dati non disponibili