Astegiudiziarie.it è parte di Rete Aste Network

Accedi o registrati

Non sei ancora registrato?

Oppure

Accedi

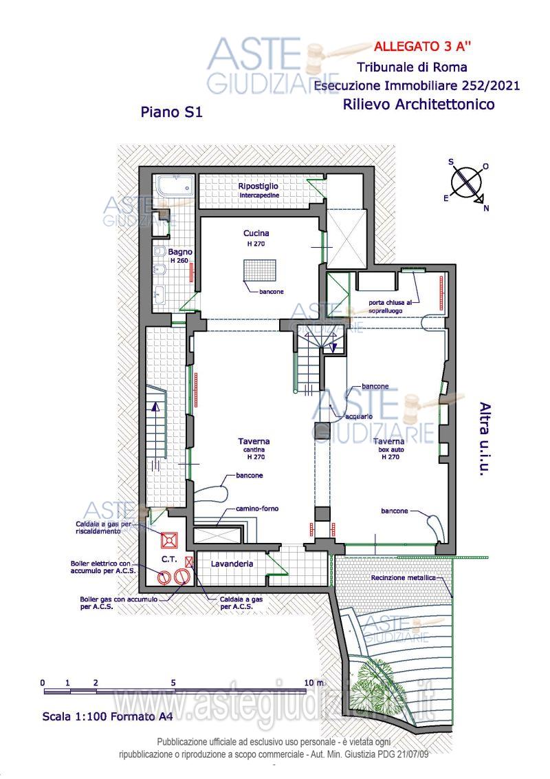
giudiziariagiudiziariaTribunale di ROMAESECUZIONI CIVILI IMMOBILIARIESECUZIONE IMMOBILIARE POST LEGGE 802522021GiudiceMiriamIappellifalsefalseDelegato alla venditaMariantoniettaSaffiotiSFFMNT73H68G288Zm.saffioti@aureliavvocati.it3471096548truefalseCustodeIvg di romaPRCFNC50L27A241Tpvp@visiteivgroma.it0689569801falsetrue2332047LOTTO UNICOIMMOBILIIMMOBILE RESIDENZIALEVia Monasterace, 4300118RomaRomaLazioItaliaBene 1) Villetta (abitazione e giardino) piani S1-T-1 facente parte di un complesso residenziale con accesso principale, pedonale e carrabile, posto al civico 43 di via Monasterace. Al complesso è poi possibile accedere anche con un secondo cancello posto al civico 412 di via Anagnina. L'immobile risulta agibile ed è nella disponibilità della parte esecutata, sarà liberato a richiesta dell’aggiudicatario ai sensi dell’art. 560 c.p.c.3014326IMMOBILE RESIDENZIALEABITAZIONE IN VILLINIVia Monasterace, 4300118RomaRomaLazioItaliaBene 1) Villetta (abitazione e giardino) piani S1-T-1 facente parte di un complesso residenziale con accesso principale, pedonale e carrabile, posto al civico 43 di via Monasterace. Al complesso è poi possibile accedere anche con un secondo cancello posto al civico 412 di via Anagnina. L'immobile risulta agibile ed è nella disponibilità della parte esecutata, sarà liberato a richiesta dell’aggiudicatario ai sensi dell’art. 560 c.p.c.101217071Part. 1700 Sub. 16S1-T-13014327ALTRA CATEGORIASTALLE, SCUDERIE, RIMESSE, AUTORIMESSEVia Monasterace, 4300118RomaRomaLazioItaliaBene 2) Garage PS1 con accesso tramite vialetto condominiale a mezzo di un cancello composto da ampio vano rettangolare in posizione sottostante l'appartamento in esecuzione. Confina per il lato N-O con il box auto dell'appartamento int2; per il lato N-E con ex rampa garage; per il lato S-E con la cantina della medesima abitazione; per il lato S-O con originaria intercapedine di distacco verso muro contro terra (ora costituente unicum con il box). Nella disponibilità della parte esecutata.101217073S12026-01-20T12:00:00SENZA INCANTOASINCRONA TELEMATICAN.A.360.000,00270.000,005.000,002026-01-19T23:59:00gestore delle venditehttps://www.garavirtuale.ithttps://www.garavirtuale.itsito pubblicitahttps://www.asteannunci.ithttps://www.asteannunci.itsito pubblicitahttps://www.astegiudiziarie.ithttps://www.astegiudiziarie.itsito pubblicitahttps://www.fallcoaste.ithttps://www.fallcoaste.it2025-10-06AVVISO DI RETTIFICAcon provvedimento del 16/10/2025 il G.E. ha disposto il versamento della cauzione nella misura del 30% del prezzo offerto, in luogo del 20% indicato nell'avviso di vendita.2025-10-20

Abitazione in villini, stalle, scuderie, rimesse, autorimesse

Via Monasterace, 43, Roma (RM)

€ 360.000,00

Offerta minima € 270.000,00


Codice A4269159

Lotto Lotto unico

Data udienza 20/01/2026 ore 12:00

Termine presentazione offerte 19/01/2026 ore 23:59

Abitazione in villini, stalle, scuderie, rimesse, autorimesse

Via Monasterace, 43, Roma (RM)

€ 360.000,00

Offerta minima € 270.000,00


Codice A4269159

Lotto Lotto unico

Data udienza 20/01/2026 ore 12:00

Termine presentazione offerte 19/01/2026 ore 23:59

Vendita aggiudicata a 270.000,00 €

Ti interessa questa vendita?

Documentazione

Visualizza su mappa

Mappa geografica del bene

Punti di interesse

Fonte dati

Nel raggio di {{range}}Km

Loading...
  • {{ getIcon(poi.type) }} {{ poi.localized }}: {{poi.count}}
  • {{ getIcon(poi.type) }} {{ poi.localized }}: {{poi.count}}
Dati non disponibili

Bene 1) Villetta (abitazione e giardino) piani S1-T-1 facente parte di un complesso residenziale con accesso principale, pedonale e carrabile, posto al civico 43 di via Monasterace. Al complesso è poi possibile accedere anche con un secondo cancello posto al civico 412 di via Anagnina. L'immobile risulta agibile ed è nella disponibilità della parte esecutata, sarà liberato a richiesta dell’aggiudicatario ai sensi dell’art. 560 c.p.c.

Indirizzo
Via Monasterace, 43, Roma (RM)


Codice asta
4269159


Lotto
Lotto unico


Numero beni
2


Genere
Immobili


Categoria
Immobile residenziale


Valore di stima
-


Abitazione in villini

Bene 1) Villetta (abitazione e giardino) piani S1-T-1 facente parte di un complesso residenziale con accesso principale, pedonale e carrabile, posto al civico 43 di via Monasterace. Al complesso è poi possibile accedere anche con un secondo cancello posto al civico 412 di via Anagnina. L'immobile risulta agibile ed è nella disponibilità della parte esecutata, sarà liberato a richiesta dell’aggiudicatario ai sensi dell’art. 560 c.p.c.

Indirizzo
Via Monasterace, 43, Roma (RM)


Piano
S1-T-1


Disponibilità
-


Vani
6,50


Bagni
2


Metri quadri
155,62


Certificazione energetica
-


Dati catastali

Foglio:1012, Particella:1707, Subalterno:1, Graffato:Part. 1700 Sub. 16


Stalle, scuderie, rimesse, autorimesse

Bene 2) Garage PS1 con accesso tramite vialetto condominiale a mezzo di un cancello composto da ampio vano rettangolare in posizione sottostante l'appartamento in esecuzione. Confina per il lato N-O con il box auto dell'appartamento int2; per il lato N-E con ex rampa garage; per il lato S-E con la cantina della medesima abitazione; per il lato S-O con originaria intercapedine di distacco verso muro contro terra (ora costituente unicum con il box). Nella disponibilità della parte esecutata.

Indirizzo
Via Monasterace, 43, Roma (RM)


Piano
S1


Disponibilità
-


Vani
1,00


Bagni
0


Metri quadri
41,66


Certificazione energetica
-


Dati catastali

Foglio:1012, Particella:1707, Subalterno:3


Tribunale
Roma

Tipo di procedura
Esecuzione immobiliare post legge 80

Ruolo
252/2021

Giudice
Iappelli Miriam

Recapiti
-

Email
-

Delegato alla vendita
Saffioti Mariantonietta
(Procede alle operazioni di vendita)

Recapiti
-

Email
-

Custode giudiziario
Ivg di roma 
(Gestisce la visita del bene)

Recapiti
Tel. 0689569801

Email

Data
20/10/2025


Tipologia
AVVISO DI RETTIFICA


Descrizione
con provvedimento del 16/10/2025 il G.E. ha disposto il versamento della cauzione nella misura del 30% del prezzo offerto, in luogo del 20% indicato nell'avviso di vendita.


Scheda COD. 4269159 - Pubblicata dal 06/10/2025

La presente scheda di vendita riporta integralmente informazioni e documenti pervenuti ufficialmente dal Ministero e dal professionista incaricato.

La sua pubblicazione è prolungata, in conformità agli accordi con il Tribunale, con l’obiettivo di garantire un’informazione continua e aggiornata, nel rispetto delle tempistiche procedurali.

Pubblicazione notarizzata su Blockchain


Pubblicazione autorizzata dall’Autorità competente, è vietata ogni ripubblicazione o riproduzione anche parziale


Ti interessa questa vendita?

Documentazione

Visualizza su mappa

Mappa geografica del bene

Storico delle vendite

Data venditaPrezzo base
26/10/2023€ 360.000,00
04/07/2024€ 360.000,00
29/04/2025€ 360.000,00
20/01/2026€ 360.000,00

Punti di interesse

Fonte dati

Nel raggio di {{range}}Km

Loading...
  • {{ getIcon(poi.type) }} {{ poi.localized }}: {{poi.count}}
  • {{ getIcon(poi.type) }} {{ poi.localized }}: {{poi.count}}
Dati non disponibili