Astegiudiziarie.it è parte di Rete Aste Network

Accedi o registrati

Non sei ancora registrato?

Oppure

Accedi

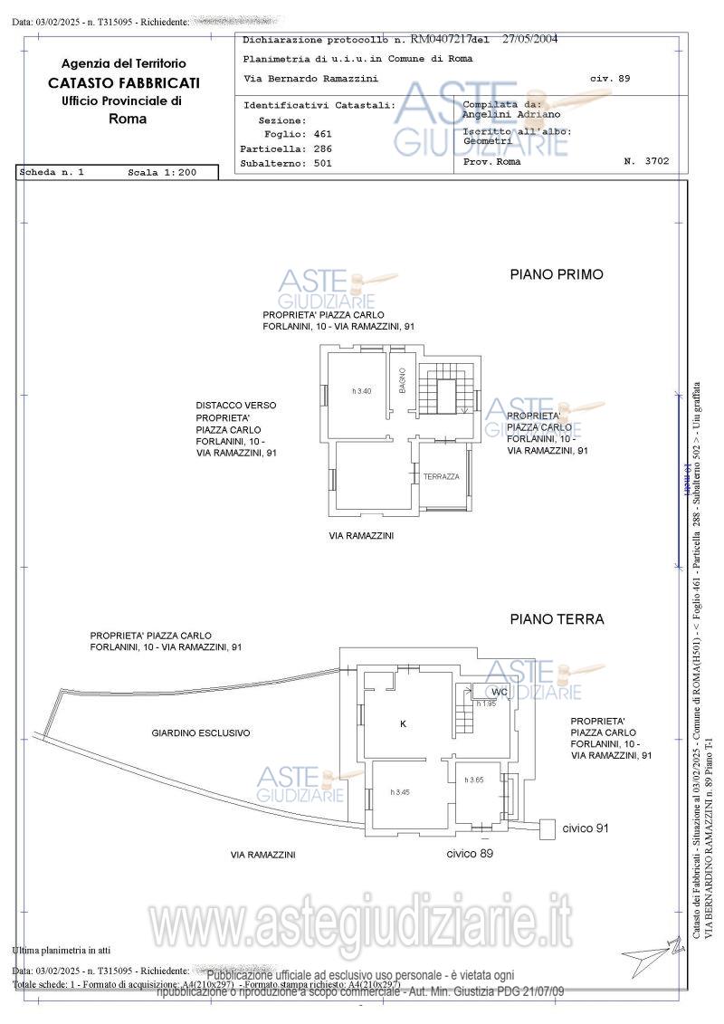
giudiziariagiudiziariaTribunale di ROMAESECUZIONI CIVILI IMMOBILIARIESPROPRIAZIONE IMMOBILIARE (CARTABIA)4392024Delegato alla venditaFabrizioRicciardiRCCFRZ74E04H501Ifabrizio.ricciardi.rm@virgilio.ittruefalseCustodeIvg di roma srlPRCFNC50L27A241TPVP@VISITEIVGROMA.ITfalsetrueGiudiceGiuseppe Lauropolifalsefalse2384430LOTTO UNICOIMMOBILIIMMOBILE RESIDENZIALEVia Bernardino Ramazzini, 89, 00151 Roma RM, Italia00151RomaRomaLazioItaliaVilletta IN Edificio Unico, scala Unica, piano T-1, di vani catastali 6,5, oltre a corte pertinenziale.Attualmente così composto: Ingresso, soggiorno, cucina, ripostiglio, vano scala e W.C., disimpegno, n.2 camere, bagno, oltre terrazzo di pertinenza esclusiva e area scoperta di pertinenza esclusiva di mq. 108,30.3078307IMMOBILE RESIDENZIALEABITAZIONE IN VILLINIVia Bernardino Ramazzini, 89, 00151 Roma RM, Italia00151RomaRomaLazioItaliaVilletta IN Edificio Unico, scala Unica, piano T-1, di vani catastali 6,5, oltre a corte pertinenziale.Attualmente così composto: Ingresso, soggiorno, cucina, ripostiglio, vano scala e W.C., disimpegno, n.2 camere, bagno, oltre terrazzo di pertinenza esclusiva e area scoperta di pertinenza esclusiva di mq. 108,30.461286501INCOR6.5T 12026-05-07T15:00:00SENZA INCANTOASINCRONA TELEMATICAN.A.630.000,00472.500,005.000,002026-05-06T23:59:00sito pubblicitahttps://www.fallcoaste.ithttps://www.fallcoaste.itsito pubblicitahttps://www.astegiudiziarie.ithttps://www.astegiudiziarie.itsito pubblicitahttps://www.asteannunci.ithttps://www.asteannunci.itgestore delle venditehttps://www.fallcoaste.ithttps://www.fallcoaste.it2026-01-29

Abitazione in villini

Via Bernardino Ramazzini, 89, 00151 Roma RM, Italia, Roma (RM)

€ 630.000,00

Offerta minima € 472.500,00


Codice A4343890

Lotto Lotto unico

Data udienza 07/05/2026 ore 15:00

Termine presentazione offerte 06/05/2026 ore 23:59

Abitazione in villini

Via Bernardino Ramazzini, 89, 00151 Roma RM, Italia, Roma (RM)

€ 630.000,00

Offerta minima € 472.500,00


Codice A4343890

Lotto Lotto unico

Data udienza 07/05/2026 ore 15:00

Termine presentazione offerte 06/05/2026 ore 23:59

Ti interessa questa vendita?

Documentazione

Visualizza su mappa

Mappa geografica del bene

Punti di interesse

Fonte dati

Nel raggio di {{range}}Km

Loading...
  • {{ getIcon(poi.type) }} {{ poi.localized }}: {{poi.count}}
  • {{ getIcon(poi.type) }} {{ poi.localized }}: {{poi.count}}
Dati non disponibili

Villetta IN Edificio Unico, scala Unica, piano T-1, di vani catastali 6,5, oltre a corte pertinenziale.Attualmente così composto: Ingresso, soggiorno, cucina, ripostiglio, vano scala e W.C., disimpegno, n.2 camere, bagno, oltre terrazzo di pertinenza esclusiva e area scoperta di pertinenza esclusiva di mq. 108,30.

Indirizzo
Via Bernardino Ramazzini, 89, 00151 Roma RM, Italia, Roma (RM)


Codice asta
4343890


Lotto
Lotto unico


Numero beni
1


Genere
Immobili


Categoria
Immobile residenziale


Valore di stima
-


Abitazione in villini

Villetta IN Edificio Unico, scala Unica, piano T-1, di vani catastali 6,5, oltre a corte pertinenziale.Attualmente così composto: Ingresso, soggiorno, cucina, ripostiglio, vano scala e W.C., disimpegno, n.2 camere, bagno, oltre terrazzo di pertinenza esclusiva e area scoperta di pertinenza esclusiva di mq. 108,30.

Indirizzo
Via Bernardino Ramazzini, 89, 00151 Roma RM, Italia, Roma (RM)


Piano
T 1


Disponibilità
In corso di liberazione


Vani
6,50


Bagni
2


Metri quadri
108,30


Certificazione energetica
-


Dati catastali

Foglio:461, Particella:286, Subalterno:501


Data udienza
07/05/2026 ore 15:00


Tipo di vendita
Senza incanto


Modalità di vendita
Asincrona telematica


Luogo
N.A. -


Luogo presentazione offerte
-


Termine presentazione offerte
06/05/2026 ore 23:59


Prezzo base
€ 630.000,00


Offerta minima
€ 472.500,00


Rialzo minimo in caso di gara
€ 5.000,00


Deposito cauzionale
-


Deposito in conto spese
-


Tribunale
Roma

Tipo di procedura
Espropriazione immobiliare (cartabia)

Ruolo
439/2024

Giudice
Lauropoli Giuseppe

Recapiti
-

Email
-

Delegato alla vendita
Ricciardi Fabrizio
(Procede alle operazioni di vendita)

Recapiti
-

Email
-

Custode giudiziario
Ivg di roma srl 
(Gestisce la visita del bene)

Recapiti
-

Scheda COD. 4343890 - Pubblicata dal 27/02/2026

La presente scheda di vendita riporta integralmente informazioni e documenti pervenuti ufficialmente dal Ministero e dal professionista incaricato.


Pubblicazione autorizzata dall’Autorità competente, è vietata ogni ripubblicazione o riproduzione anche parziale


Ti interessa questa vendita?

Documentazione

Visualizza su mappa

Mappa geografica del bene

Punti di interesse

Fonte dati

Nel raggio di {{range}}Km

Loading...
  • {{ getIcon(poi.type) }} {{ poi.localized }}: {{poi.count}}
  • {{ getIcon(poi.type) }} {{ poi.localized }}: {{poi.count}}
Dati non disponibili