Astegiudiziarie.it è parte di Rete Aste Network

Accedi o registrati

Non sei ancora registrato?

Oppure

Accedi

Abitazione in villini

Via S. Gennaro Agnano, 29, 80078 Pozzuoli NA, Italia, Pozzuoli (NA)

€ 240.000,00

Offerta minima € 180.000,00


Codice A4347847

Lotto Lotto unico

Data udienza 16/06/2026 ore 11:00

Termine presentazione offerte 15/06/2026 ore 23:59

Abitazione in villini

Via S. Gennaro Agnano, 29, 80078 Pozzuoli NA, Italia, Pozzuoli (NA)

€ 240.000,00

Offerta minima € 180.000,00


Codice A4347847

Lotto Lotto unico

Data udienza 16/06/2026 ore 11:00

Termine presentazione offerte 15/06/2026 ore 23:59

Ti interessa questa vendita?

Documentazione

Visualizza su mappa

Mappa geografica del bene

Punti di interesse

Fonte dati

Nel raggio di {{range}}Km

Loading...
  • {{ getIcon(poi.type) }} {{ poi.localized }}: {{poi.count}}
  • {{ getIcon(poi.type) }} {{ poi.localized }}: {{poi.count}}
Dati non disponibili

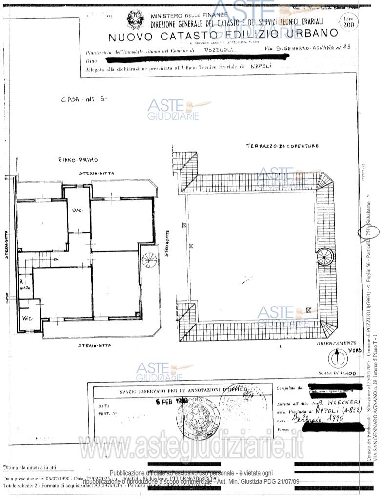
Piena ed intera proprietà di villino bifamiliare (composto da due unità immobiliari) sito in Pozzuoli (Napoli) alla via San Gennaro Agnano 29, facente parte del complesso immobiliare denominato “Parco San Domenico": -Unità abitativa, identificata dalla p.lla 754, della superficie commerciale di circa mq 298, sviluppante su quattro livelli;- Unità abitativa, identificata dalla p.lla 752, della superficie commerciale di circa mq. 305, si sviluppa su quattro livelli .

Indirizzo
Via S. Gennaro Agnano, 29, 80078 Pozzuoli NA, Italia, Pozzuoli (NA)


Codice asta
4347847


Lotto
Lotto unico


Numero beni
1


Genere
Immobili


Categoria
Immobile residenziale


Valore di stima
-


Abitazione in villini

Piena ed intera proprietà di villino bifamiliare (composto da due unità immobiliari) sito in Pozzuoli (Napoli) alla via San Gennaro Agnano 29, facente parte del complesso immobiliare denominato “Parco San Domenico” e precisamente del secondo Edificio entrando nel viale interno, a sinistra, con accesso (pedonale e carrabile) dal viale condominiale interno, e precisamente:-L’unità abitativa, identificata dalla p.lla 754, della superficie commerciale di circa mq 298, si sviluppa su quattro livelli, con scala interna di collegamento per i primi tre livelli e scaletta a chiocciola esterna che connette il primo piano col terrazzo di copertura e area di pertinenza esterna che delimita per tre lati la costruzione, recintata, in parte pavimentata e in parte costituita da giardino con aiuole, piante e alberi ad alto fusto. L’immobile si compone: al piano rialzato di ingresso, living con camino, cucina, bagno, disimpegno e balconata che gira per due lati della costruzione; al piano primo di quattro vani, due bagni, disimpegno e ripostiglio alto. Sono parti integranti dell’immobile, a tale livello, i tre balconi di cui uno gira per due lati della costruzione, su quest’ultimo è dislocata la scaletta metallica (a chiocciola) che adduce al terrazzo di copertura, e i due balconi prospicienti l’area di pertinenza posteriore; al piano seminterrato di un unico ambiente con bagno, lavatoio e sala caldaia.-L’unità abitativa, identificata dalla p.lla 752, della superficie commerciale di circa mq. 305, si sviluppa su quattro livelli con scala interna di collegamento per i primi tre livelli e scaletta a chiocciola esterna che connette il primo piano col terrazzo di copertura e area di pertinenza esterna che delimita per tre lati la costruzione esterna recintata, in parte pavimentata e in parte costituita da giardino con aiuole, piante e alberi ad alto fusto. L’immobile si compone: al piano rialzato di ingresso, living con camino, cucina, bagno, disimpegno e balconata che gira per due lati della costruzione; al piano primo quattro vani, due bagni, disimpegno e ripostiglio. Sono parti integranti dell’immobile a tale livello, i tre balconi di cui uno gira per due lati della costruzione, su quest’ultimo è dislocata una scaletta metallica (a chiocciola) che adduce al terrazzo di copertura; al piano seminterrato di un unico ambiente con bagno, lavatoio e sala caldaia.

Indirizzo
Via S. Gennaro Agnano, 29, 80078 Pozzuoli NA, Italia, Pozzuoli (NA)


Piano
-


Disponibilità
LIBERO


Vani
11,50


Bagni
4


Metri quadri
314,00


Certificazione energetica
-


Dati catastali

Foglio:56, Particella:754
Foglio:56, Particella:752


Data udienza
16/06/2026 ore 11:00


Tipo di vendita
Senza incanto


Modalità di vendita
Asincrona telematica


Luogo
N.A. -


Luogo presentazione offerte
-


Termine presentazione offerte
15/06/2026 ore 23:59


Prezzo base
€ 240.000,00


Offerta minima
€ 180.000,00


Rialzo minimo in caso di gara
€ 5.000,00


Deposito cauzionale
10% del prezzo offerto


Deposito in conto spese
-


Tribunale
Napoli

Tipo di procedura
Espropriazione immobiliare (cartabia)

Ruolo
640/2024

Delegato alla vendita
Di gennaro Francesca
(Procede alle operazioni di vendita)
(Gestisce la visita del bene)

Recapiti
Cell. 3280511816
Tel. 3280511816

Scheda COD. 4347847 - Pubblicata dal 26/03/2026

La presente scheda di vendita riporta integralmente informazioni e documenti pervenuti ufficialmente dal Ministero e dal professionista incaricato.


Pubblicazione autorizzata dall’Autorità competente, è vietata ogni ripubblicazione o riproduzione anche parziale


Ti interessa questa vendita?

Documentazione

Visualizza su mappa

Mappa geografica del bene

Punti di interesse

Fonte dati

Nel raggio di {{range}}Km

Loading...
  • {{ getIcon(poi.type) }} {{ poi.localized }}: {{poi.count}}
  • {{ getIcon(poi.type) }} {{ poi.localized }}: {{poi.count}}
Dati non disponibili