Astegiudiziarie.it è parte di Rete Aste Network

Accedi o registrati

Non sei ancora registrato?

Oppure

Accedi

Abitazione in villini

Via R. Orlandini, 1100, 51015 Monsummano Terme PT, Italia, Monsummano Terme (PT)

€ 215.500,00

Offerta minima € 161.625,00


Codice A4347648

Lotto Lotto unico

Data udienza 15/07/2026 ore 09:30

Termine presentazione offerte 14/07/2026 ore 12:00

Abitazione in villini

Via R. Orlandini, 1100, 51015 Monsummano Terme PT, Italia, Monsummano Terme (PT)

€ 215.500,00

Offerta minima € 161.625,00


Codice A4347648

Lotto Lotto unico

Data udienza 15/07/2026 ore 09:30

Termine presentazione offerte 14/07/2026 ore 12:00

Ti interessa questa vendita?

Documentazione

Visualizza su mappa

Mappa geografica del bene

Punti di interesse

Fonte dati

Nel raggio di {{range}}Km

Loading...
  • {{ getIcon(poi.type) }} {{ poi.localized }}: {{poi.count}}
  • {{ getIcon(poi.type) }} {{ poi.localized }}: {{poi.count}}
Dati non disponibili

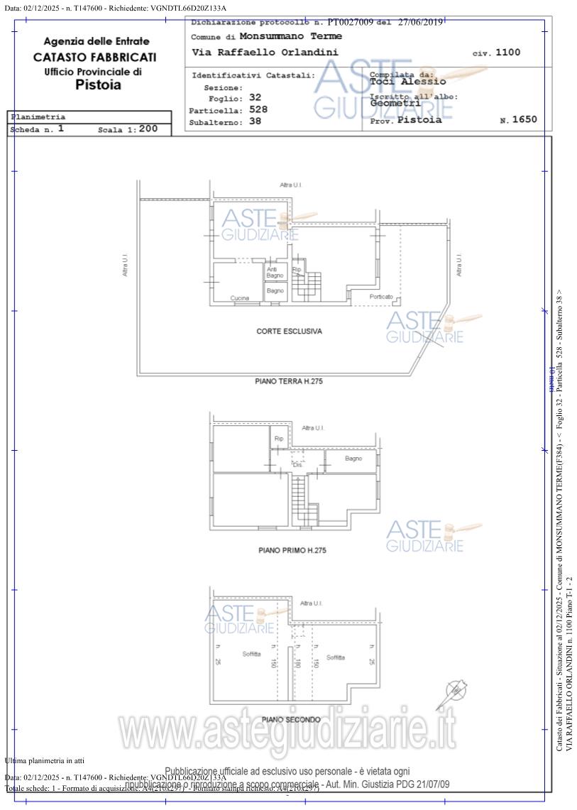
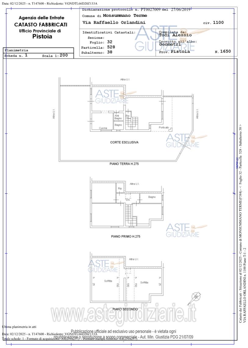
Villetta per civile abitazione con resede esclusivo su tre lati e piscina interrata allo stato grezzo.

Indirizzo
Via R. Orlandini, 1100, 51015 Monsummano Terme PT, Italia, Monsummano Terme (PT)


Codice asta
4347648


Lotto
Lotto unico


Numero beni
1


Genere
Immobili


Categoria
Immobile residenziale


Valore di stima
€ 215.500,00


Abitazione in villini

Villetta per civile abitazione composta al piano terra da porticato esterno d'ingresso con adiacente tettoia in legno, ingresso-soggiorno, ripostiglio sottoscala, ampia zona cucina-pranzo, antibagno e bagno, oltre vano pluriuso ricavato su porzione del resede sul retro con adiacente tettoia in legno; al piano primo da disimpegno, camera matrimoniale con bagno, tre camerette, bagno; oltre piano soffitta accessibile da piccola scala interna del tipo salvaspazio. Il tutto corredato da resede esclusivo su tre lati ove risulta una piscina interrata allo stato grezzo. Nel resede inoltre sono presenti arredi vari oltre casetta prefabbricata in pvc, in parte ricadenti su porzione di terreno occupata senza titolo.

Indirizzo
Via R. Orlandini, 1100, 51015 Monsummano Terme PT, Italia, Monsummano Terme (PT)


Piano
-


Disponibilità
-


Vani
9,00


Bagni
3


Metri quadri
185,00


Certificazione energetica
-


Data udienza
15/07/2026 ore 09:30


Tipo di vendita
Senza incanto


Modalità di vendita
Asincrona telematica


Luogo
N.A. -


Luogo presentazione offerte
-


Termine presentazione offerte
14/07/2026 ore 12:00


Prezzo base
€ 215.500,00


Offerta minima
€ 161.625,00


Rialzo minimo in caso di gara
€ 4.000,00


Deposito cauzionale
10% del prezzo offerto


Deposito in conto spese
-


Tribunale
Pistoia

Tipo di procedura
Espropriazione immobiliare (cartabia)

Ruolo
136/2025

Delegato alla vendita
Bigagli Manuela
(Procede alle operazioni di vendita)

Recapiti
-

Email
avv.manuelabigagli@gmail.com

IVG
Isveg -
(Gestisce la visita del bene)

Recapiti
-

Scheda COD. 4347648 - Pubblicata dal 31/03/2026

La presente scheda di vendita riporta integralmente informazioni e documenti pervenuti ufficialmente dal Ministero e dal professionista incaricato.


Pubblicazione autorizzata dall’Autorità competente, è vietata ogni ripubblicazione o riproduzione anche parziale


Ti interessa questa vendita?

Documentazione

Visualizza su mappa

Mappa geografica del bene

Punti di interesse

Fonte dati

Nel raggio di {{range}}Km

Loading...
  • {{ getIcon(poi.type) }} {{ poi.localized }}: {{poi.count}}
  • {{ getIcon(poi.type) }} {{ poi.localized }}: {{poi.count}}
Dati non disponibili