Astegiudiziarie.it è parte di Rete Aste Network

Accedi o registrati

Non sei ancora registrato?

Oppure

Accedi

Abitazione in villini

Strada Barchetta n. 345 , Modena (MO)

€ 731.250,00

Offerta minima € 548.437,50


Codice A4346297

Lotto Lotto unico

Data udienza 28/04/2026 ore 11:00

Termine presentazione offerte 27/04/2026 ore 23:59

Abitazione in villini

Strada Barchetta n. 345 , Modena (MO)

€ 731.250,00

Offerta minima € 548.437,50


Codice A4346297

Lotto Lotto unico

Data udienza 28/04/2026 ore 11:00

Termine presentazione offerte 27/04/2026 ore 23:59

Ti interessa questa vendita?

Documentazione

Visualizza su mappa

Mappa geografica del bene

Punti di interesse

Fonte dati

Nel raggio di {{range}}Km

Loading...
  • {{ getIcon(poi.type) }} {{ poi.localized }}: {{poi.count}}
  • {{ getIcon(poi.type) }} {{ poi.localized }}: {{poi.count}}
Dati non disponibili

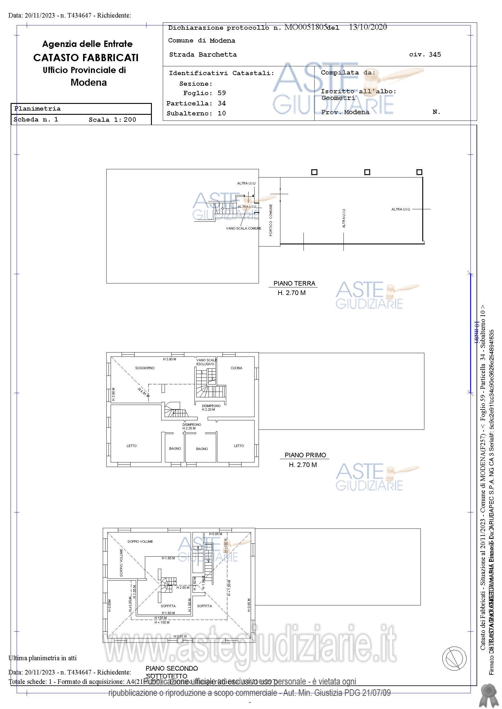
Piena ed esclusiva proprietà di villa bifamiliare con ampio parco e piscina, due autorimesse e dependance

Indirizzo
Strada Barchetta n. 345 , Modena (MO)


Codice asta
4346297


Lotto
Lotto unico


Numero beni
1


Genere
Immobili


Categoria
Immobile residenziale


Valore di stima
-


Abitazione in villini

Piena ed esclusiva proprietà di villa bifamiliare con ampio parco e piscina, due autorimesse e dependance

Indirizzo
Strada Barchetta n. 345, Modena (MO)


Piano
-


Disponibilità
-


Vani
13,00


Bagni
2


Metri quadri
579,61


Certificazione energetica
-


Dati catastali

Foglio:59, Particella:34, Subalterno:9
Foglio:59, Particella:34, Subalterno:10
Foglio:59, Particella:34, Subalterno:6
Foglio:59, Particella:34, Subalterno:7
Foglio:59, Particella:444
Foglio:59, Particella:34, Subalterno:5
Foglio:59, Particella:34, Subalterno:8
Foglio:59, Particella:34, Subalterno:11
Foglio:59, Particella:34, Subalterno:12


Data udienza
28/04/2026 ore 11:00


Tipo di vendita
Senza incanto


Modalità di vendita
Asincrona telematica


Luogo
N.A. -


Luogo presentazione offerte
-


Termine presentazione offerte
27/04/2026 ore 23:59


Prezzo base
€ 731.250,00


Offerta minima
€ 548.437,50


Rialzo minimo in caso di gara
€ 10.000,00


Deposito cauzionale
25% del prezzo offerto


Deposito in conto spese
-


Tribunale
Modena

Tipo di procedura
Esecuzione immobiliare post legge 80

Ruolo
236/2022

Delegato alla vendita
Odorici Silvia
(Procede alle operazioni di vendita)

Recapiti
Tel. 3386481534

Email
silvia.odorici@libero.it

Custode giudiziario
Manelli Alex
(Gestisce la visita del bene)

Recapiti
Tel. 059847301

Scheda COD. 4346297 - Pubblicata dal 06/03/2026

La presente scheda di vendita riporta integralmente informazioni e documenti pervenuti ufficialmente dal Ministero e dal professionista incaricato.

Pubblicazione notarizzata su Blockchain


Pubblicazione autorizzata dall’Autorità competente, è vietata ogni ripubblicazione o riproduzione anche parziale


Ti interessa questa vendita?

Documentazione

Visualizza su mappa

Mappa geografica del bene

Punti di interesse

Fonte dati

Nel raggio di {{range}}Km

Loading...
  • {{ getIcon(poi.type) }} {{ poi.localized }}: {{poi.count}}
  • {{ getIcon(poi.type) }} {{ poi.localized }}: {{poi.count}}
Dati non disponibili