Astegiudiziarie.it è parte di Rete Aste Network

Accedi o registrati

Non sei ancora registrato?

Oppure

Accedi

Abitazione in villini

Via Madonna del Pantano, Parco Vittoria 1, Palazzina n.10, Giugliano in Campania (NA)

€ 172.551,00

Offerta minima € 129.413,25


Codice A4307808

Lotto Lotto unico

Data udienza 24/03/2026 ore 15:00

Termine presentazione offerte 23/03/2026 ore 23:59

Abitazione in villini

Via Madonna del Pantano, Parco Vittoria 1, Palazzina n.10, Giugliano in Campania (NA)

€ 172.551,00

Offerta minima € 129.413,25


Codice A4307808

Lotto Lotto unico

Data udienza 24/03/2026 ore 15:00

Termine presentazione offerte 23/03/2026 ore 23:59

Ti interessa questa vendita?

Documentazione

Visualizza su mappa

Mappa geografica del bene

Punti di interesse

Fonte dati

Nel raggio di {{range}}Km

Loading...
  • {{ getIcon(poi.type) }} {{ poi.localized }}: {{poi.count}}
  • {{ getIcon(poi.type) }} {{ poi.localized }}: {{poi.count}}
Dati non disponibili

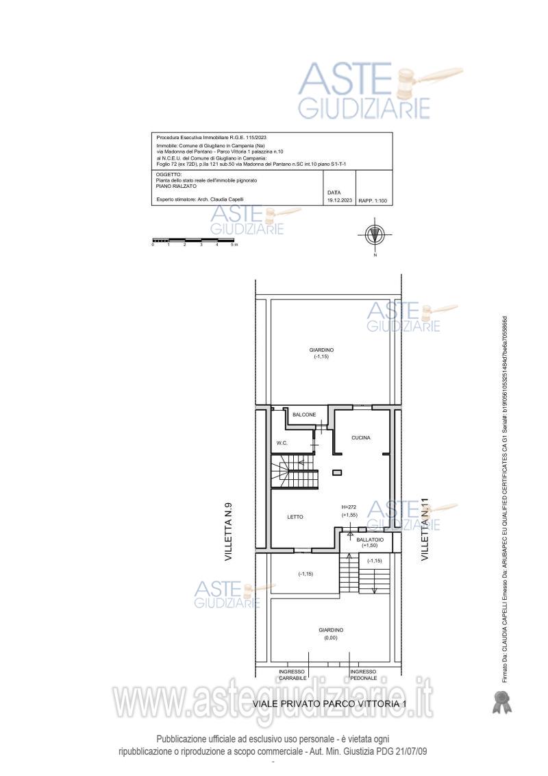
Villetta unifamiliare, Parco Vittoria 1, su tre livelli, collegati da scala interna, oltre spazio esterno pertinenza esclusiva: piano seminterrato (soggiorno con angolo cottura, bagno, giardino sul retro), piano rialzato (soggiorno con angolo cottura, bagno e balcone, oltre ballatoio di accesso) e primo piano (3 camere da letto, bagno e balcone).

Indirizzo
Via Madonna del Pantano, Parco Vittoria 1, Palazzina n.10, Giugliano in Campania (NA)


Codice asta
4307808


Lotto
Lotto unico


Numero beni
1


Genere
Immobili


Categoria
Immobile residenziale


Valore di stima
-


Abitazione in villini

Villetta unifamiliare, Parco Vittoria 1, su tre livelli, collegati da scala interna, oltre spazio esterno pertinenza esclusiva: piano seminterrato (soggiorno con angolo cottura, bagno, giardino sul retro), piano rialzato (soggiorno con angolo cottura, bagno e balcone, oltre ballatoio di accesso) e primo piano (3 camere da letto, bagno e balcone).

Indirizzo
Via Madonna del Pantano, Parco Vittoria 1, Palazzina n.10, Giugliano in Campania (NA)


Piano
-


Disponibilità
Occupato


Vani
8,50


Bagni
-


Metri quadri
150,88


Certificazione energetica
-


Dati catastali

Foglio:72, Particella:121, Subalterno:50


Data udienza
24/03/2026 ore 15:00


Tipo di vendita
Senza incanto


Modalità di vendita
Asincrona telematica


Luogo
N.A. -


Luogo presentazione offerte
-


Termine presentazione offerte
23/03/2026 ore 23:59


Prezzo base
€ 172.551,00


Offerta minima
€ 129.413,25


Rialzo minimo in caso di gara
€ 7.000,00


Deposito cauzionale
10% del prezzo offerto


Deposito in conto spese
-


Tribunale
Napoli Nord

Tipo di procedura
Espropriazione immobiliare (cartabia)

Ruolo
115/2023

Delegato alla vendita
Borrelli Pasquale
(Procede alle operazioni di vendita)
(Gestisce la visita del bene)

Recapiti
Tel. 0815521624

Scheda COD. 4307808 - Pubblicata dal 20/01/2026

La presente scheda di vendita riporta integralmente informazioni e documenti pervenuti ufficialmente dal Ministero e dal professionista incaricato.


Pubblicazione autorizzata dall’Autorità competente, è vietata ogni ripubblicazione o riproduzione anche parziale


Ti interessa questa vendita?

Documentazione

Visualizza su mappa

Mappa geografica del bene

Storico delle vendite

Data venditaPrezzo base
14/01/2025€ 172.551,00
24/03/2026€ 172.551,00

Punti di interesse

Fonte dati

Nel raggio di {{range}}Km

Loading...
  • {{ getIcon(poi.type) }} {{ poi.localized }}: {{poi.count}}
  • {{ getIcon(poi.type) }} {{ poi.localized }}: {{poi.count}}
Dati non disponibili