Astegiudiziarie.it è parte di Rete Aste Network

Accedi o registrati

Non sei ancora registrato?

Oppure

Accedi

Abitazione in villini

Via del Marmigliaio, 3, 57014 Collesalvetti LI, Italia, Collesalvetti (LI)

€ 998.700,00

Offerta minima € 749.025,00


Codice A4342857

Lotto Lotto unico

Data udienza 26/03/2026 ore 15:30

Termine presentazione offerte 25/03/2026 ore 12:00

Abitazione in villini

Via del Marmigliaio, 3, 57014 Collesalvetti LI, Italia, Collesalvetti (LI)

€ 998.700,00

Offerta minima € 749.025,00


Codice A4342857

Lotto Lotto unico

Data udienza 26/03/2026 ore 15:30

Termine presentazione offerte 25/03/2026 ore 12:00

Ti interessa questa vendita?

Documentazione

Visualizza su mappa

Mappa geografica del bene

Punti di interesse

Fonte dati

Nel raggio di {{range}}Km

Loading...
  • {{ getIcon(poi.type) }} {{ poi.localized }}: {{poi.count}}
  • {{ getIcon(poi.type) }} {{ poi.localized }}: {{poi.count}}
Dati non disponibili

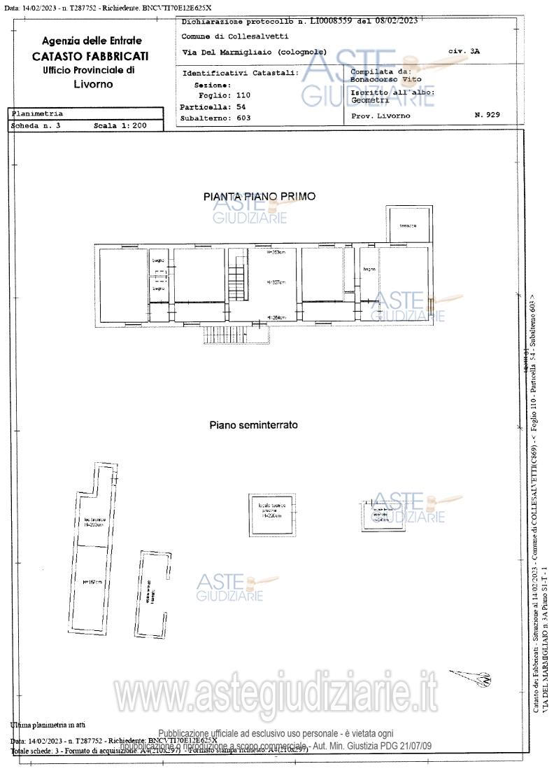
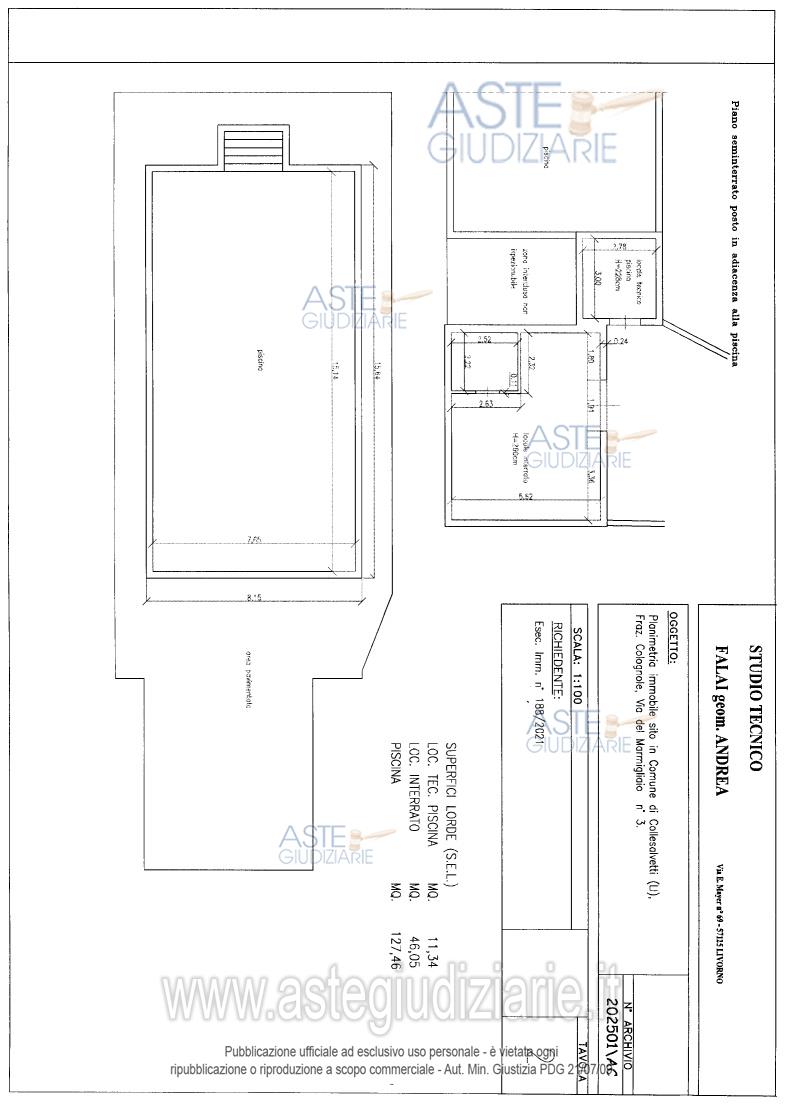
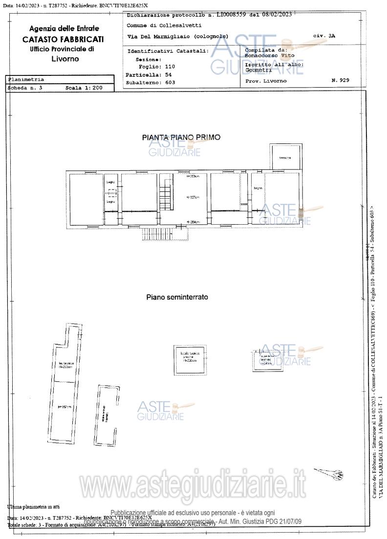
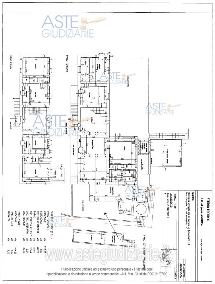
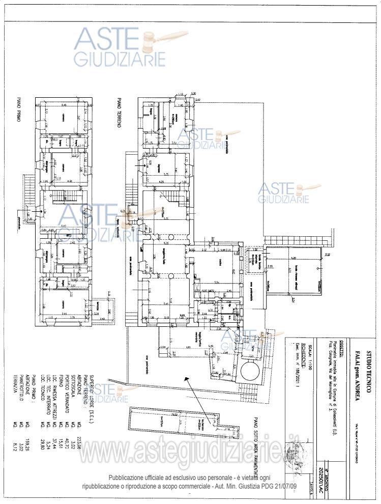
Fabbricato unifamiliare terratetto ubicato in Collesalvetti (LI), Frazione Colognole, LocalitàBelvedere, Via del Marmigliaio n. 3 (anche indicato come n. 3/a), con corte esclusiva, accessoried annessi appezzamenti di terreno della superficie di circa mq. 17.440,00.

Indirizzo
Via del Marmigliaio, 3, 57014 Collesalvetti LI, Italia, Collesalvetti (LI)


Codice asta
4342857


Lotto
Lotto unico


Numero beni
1


Genere
Immobili


Categoria
Immobile residenziale


Valore di stima
-


Abitazione in villini

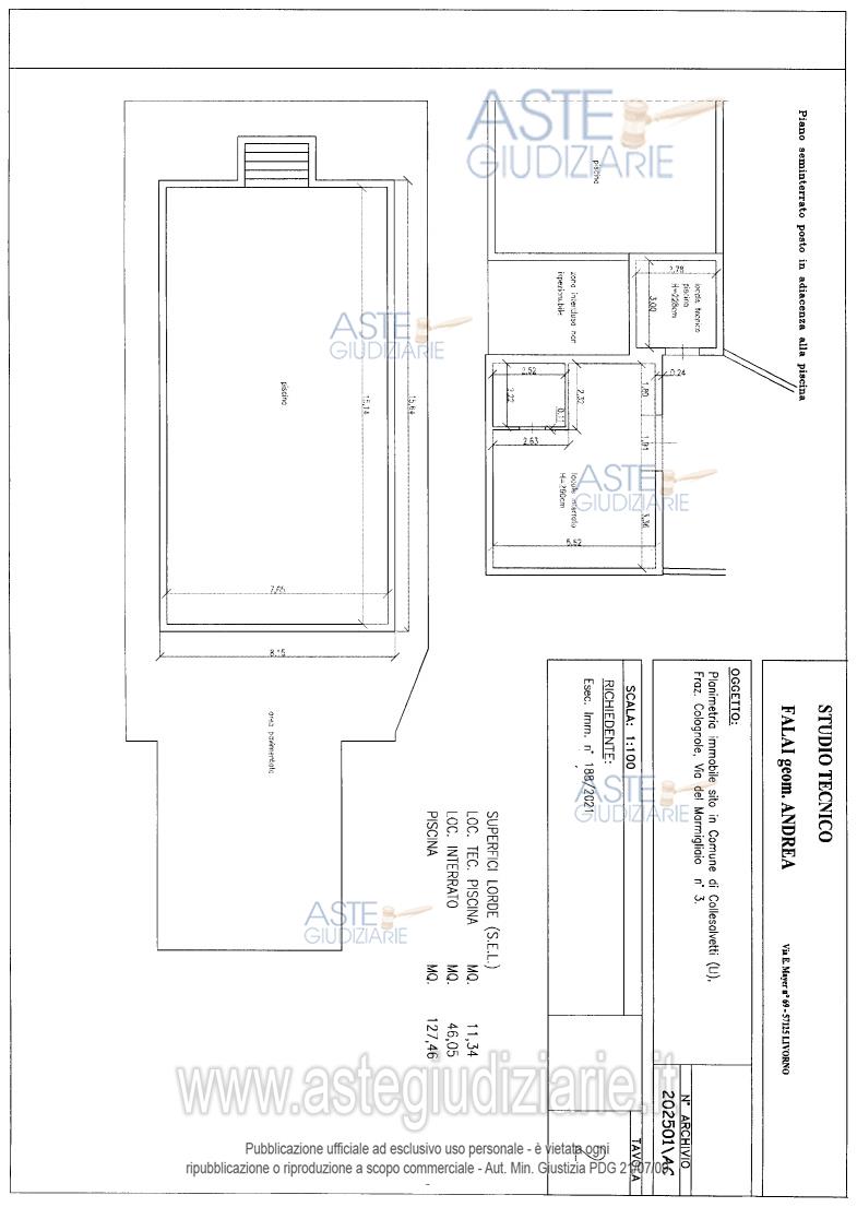
Fabbricato unifamiliare terratetto ubicato in Collesalvetti (LI), Frazione Colognole, LocalitàBelvedere, Via del Marmigliaio n. 3 (anche indicato come n. 3/a), con corte esclusiva, accessoried annessi appezzamenti di terreno della superficie di circa mq. 17.440,00.Il fabbricato è composto al piano terreno da ampio ingresso, ampia sala-soggiorno concamino, cucina dotata di camino, due servizi igienici ed una camera, oltre ad un ripostiglio eduna loggia/porticato con infisso in ferro e vetro dalla quale si accede ad un locale-forno. Alpiano primo, accessibile sia mediante scala interna, sia mediante scala esterna, è composto daquattro camere e tre bagni, oltre ad un locale di disimpegno nella zona di arrivo delle scale dalpiano inferiore, ed una terrazza accessibile da una delle camere.Esternamente sono presenti un locale tecnico, una rimessa attrezzi, una piscina con e duelocali di pertinenza. Fanno parte del compendio i terreni coltivati ad oliveta ed a frutteto

Indirizzo
Via del Marmigliaio, 3, 57014 Collesalvetti LI, Italia, Collesalvetti (LI)


Piano
-


Disponibilità
-


Vani
8,00


Bagni
-


Metri quadri
390,00


Certificazione energetica
-


Data udienza
26/03/2026 ore 15:30


Tipo di vendita
Senza incanto


Modalità di vendita
Asincrona telematica


Luogo
N.A. -


Luogo presentazione offerte
-


Termine presentazione offerte
25/03/2026 ore 12:00


Prezzo base
€ 998.700,00


Offerta minima
€ 749.025,00


Rialzo minimo in caso di gara
€ 10.000,00


Deposito cauzionale
10% del prezzo offerto


Deposito in conto spese
-


Tribunale
Livorno

Tipo di procedura
Esecuzione immobiliare post legge 80

Ruolo
188/2021

Giudice
Pinna  Elisa

Recapiti
-

Email
-

Delegato alla vendita
Razzauti  Piergiovanni
(Procede alle operazioni di vendita)

Recapiti
-

Email
-

Custode giudiziario
Porcari  Clara
(Gestisce la visita del bene)

Recapiti
-

Scheda COD. 4342857 - Pubblicata dal 14/01/2026

La presente scheda di vendita riporta integralmente informazioni e documenti pervenuti ufficialmente dal Ministero e dal professionista incaricato.


Pubblicazione autorizzata dall’Autorità competente, è vietata ogni ripubblicazione o riproduzione anche parziale



Attenzione: Non è dovuto alcun compenso (né a titolo di intermediazione, né per vedere l’immobile, né per ricevere istruzioni sulle modalità di presentazione dell’offerta, né a nessun altro titolo), se ci si rivolge a persone incaricate dal Tribunale (custode, professionista delegato, curatore, società incaricata di gestire la vendita). La pubblicità relativa a questo bene immobile, venduto dal Tribunale nella procedura indicata, potrebbe essere inserita su portali immobiliari, anche da altri soggetti non incaricati dal Tribunale. Se l’interessato all’acquisto si rivolge a questi ultimi, potrebbe essergli richiesto di pagare spese o compensi di mediazione o consulenza.


Ti interessa questa vendita?

Documentazione

Visualizza su mappa

Mappa geografica del bene

Punti di interesse

Fonte dati

Nel raggio di {{range}}Km

Loading...
  • {{ getIcon(poi.type) }} {{ poi.localized }}: {{poi.count}}
  • {{ getIcon(poi.type) }} {{ poi.localized }}: {{poi.count}}
Dati non disponibili