Astegiudiziarie.it è parte di Rete Aste Network

Accedi o registrati

Non sei ancora registrato?

Oppure

Accedi

Abitazione in villini

Via Sottomonte, 316/D, Capannori (LU)

€ 270.400,00

Offerta minima € 202.800,00


Codice A4340949

Lotto Lotto unico

Data udienza 30/01/2026 ore 10:00

Termine presentazione offerte 29/01/2026 ore 12:00

Abitazione in villini

Via Sottomonte, 316/D, Capannori (LU)

€ 270.400,00

Offerta minima € 202.800,00


Codice A4340949

Lotto Lotto unico

Data udienza 30/01/2026 ore 10:00

Termine presentazione offerte 29/01/2026 ore 12:00

Ti interessa questa vendita?

Visualizza su mappa

Mappa geografica del bene

Punti di interesse

Fonte dati

Nel raggio di {{range}}Km

Loading...
  • {{ getIcon(poi.type) }} {{ poi.localized }}: {{poi.count}}
  • {{ getIcon(poi.type) }} {{ poi.localized }}: {{poi.count}}
Dati non disponibili

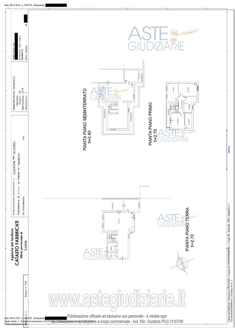
Civile abitazione in villetta bifamiliare in Comune di Capannori (LU), Via di Sottomonte n. 316/D, della superficie commerciale di 348,87 mq, per la quota di 1/1 di piena proprietà, corredata da un’unità a garage e terreno di pertinenza.

Indirizzo
Via Sottomonte, 316/D, Capannori (LU)


Codice asta
4340949


Lotto
Lotto unico


Numero beni
1


Genere
Immobili


Categoria
Immobile residenziale


Valore di stima
-


Abitazione in villini

Civile abitazione in villetta bifamiliare in Comune di Capannori (LU), Via di Sottomonte n. 316/D, della superficie convenzionale di 348,87 mq, per la quota di 1/1 di piena proprietà, corredata da un’unità a garage e terreno di pertinenza. Si compone al piano terreno di ingresso con ampio disimpegno, ripostiglio, bagno, soggiorno, tinello e cucina, al piano primo di tre camere di cui una con cabina armadio e accesso a balcone, un disimpegno e bagno, al piano seminterrato due ampi locali con accesso inoltre all’unità a garage, ad un vano tecnico ed allo scannafosso che perimetra il fabbricato.

Indirizzo
Via Sottomonte, 316/D, Capannori (LU)


Piano
-


Disponibilità
OCCUPATO SENZA TITOLO


Vani
11,00


Bagni
2


Metri quadri
348,87


Certificazione energetica
-


Dati catastali

Foglio:98, Particella:2079, Subalterno:3
Foglio:98, Particella:2079, Subalterno:4


Data udienza
30/01/2026 ore 10:00


Tipo di vendita
Senza incanto


Modalità di vendita
Sincrona mista


Luogo
VIALE SAN CONCORDIO N. 996/B - Lucca 55100


Luogo presentazione offerte
-


Termine presentazione offerte
29/01/2026 ore 12:00


Prezzo base
€ 270.400,00


Offerta minima
€ 202.800,00


Rialzo minimo in caso di gara
€ 2.000,00


Deposito cauzionale
10% del prezzo offerto


Deposito in conto spese
-


Tribunale
Lucca

Tipo di procedura
Espropriazione immobiliare (cartabia)

Ruolo
82/2024

Delegato alla vendita
Tommasi Giulia
(Procede alle operazioni di vendita)

Recapiti
Tel. 0584361559

Email
g.tommasi@associatibss.it

Custode giudiziario
Ivg lucca 
(Gestisce la visita del bene)

Recapiti
Tel. 0583418555

Scheda COD. 4340949 - Pubblicata dal 05/12/2025

La presente scheda di vendita riporta integralmente informazioni e documenti pervenuti ufficialmente dal Ministero e dal professionista incaricato.


Pubblicazione autorizzata dall’Autorità competente, è vietata ogni ripubblicazione o riproduzione anche parziale


Ti interessa questa vendita?

Visualizza su mappa

Mappa geografica del bene

Punti di interesse

Fonte dati

Nel raggio di {{range}}Km

Loading...
  • {{ getIcon(poi.type) }} {{ poi.localized }}: {{poi.count}}
  • {{ getIcon(poi.type) }} {{ poi.localized }}: {{poi.count}}
Dati non disponibili