Astegiudiziarie.it è parte di Rete Aste Network

Accedi o registrati

Non sei ancora registrato?

Oppure

Accedi

Abitazione in villini, stalle, scuderie, rimesse, autorimesse

Via Miguel Hernandez 18, Campagnano di Roma (RM)

€ 125.414,00

Offerta minima € 94.060,50


Codice A4339971

Lotto Lotto unico

Data udienza 29/01/2026 ore 14:00

Termine presentazione offerte 28/01/2026 ore 23:59

Abitazione in villini, stalle, scuderie, rimesse, autorimesse

Via Miguel Hernandez 18, Campagnano di Roma (RM)

€ 125.414,00

Offerta minima € 94.060,50


Codice A4339971

Lotto Lotto unico

Data udienza 29/01/2026 ore 14:00

Termine presentazione offerte 28/01/2026 ore 23:59

Ti interessa questa vendita?

Documentazione

Visualizza su mappa

Mappa geografica del bene

Punti di interesse

Fonte dati

Nel raggio di {{range}}Km

Loading...
  • {{ getIcon(poi.type) }} {{ poi.localized }}: {{poi.count}}
  • {{ getIcon(poi.type) }} {{ poi.localized }}: {{poi.count}}
Dati non disponibili

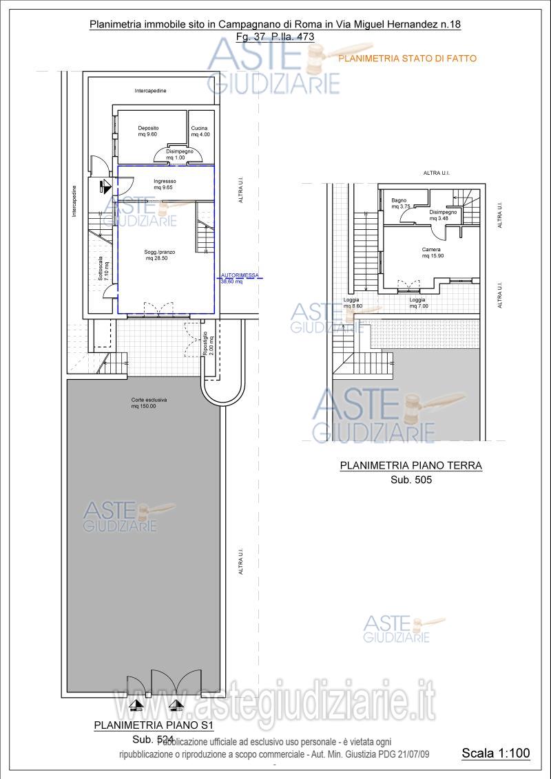
Appartamento in villino sito in Campagnano di Roma, via Miguel Hernandez,18 località "Monte Cuculo", int. 1/C, piano S1-T. Esso si sviluppa su 2 piani, seminterrato e terra, collegati tramite scala interna; è dotato di giardino esclusivo. Pertinenza dell’appartamento è un’autorimessa ad esso collegata. L’immobile è sito nel complesso "Valle dei Girasoli", dotato di parcheggi, marciapiedi ed aree verdi. Superfici: appartamento: 81,48mq; box: 42,46mq.Il tutto come meglio precisato nell'elaborato peritale.

Indirizzo
Via Miguel Hernandez 18, Campagnano di Roma (RM)


Codice asta
4339971


Lotto
Lotto unico


Numero beni
2


Genere
Immobili


Categoria
Immobile residenziale


Valore di stima
-


Abitazione in villini

Compendio immobiliare sito in Campagnano di Roma (RM) - Via Miguel Hernandez n. 18 località "Monte Cuculo", interno 1/C, piano S1-T. Il compendio è costituito da APPARTAMENTO che nel complesso risulta in buono stato di conservazione e allo stato attuale non necessità di particolari opere di manutenzione. L’immobile, di recente costruzione, è un appartamento in villino che si sviluppa su due piani, seminterrato e terra, collegati tramite scala interna; l’appartamento è dotato di un giardino esclusivo. L’immobile si colloca in un complesso residenziale, denominato "Valle dei Girasoli", composto da due gruppi di fabbricati a schiera, serviti dalla via Miguel Hernandez a cui si ha accesso dalla strada provinciale SP13 tramite una sbarra automatica che necessita di telecomando o codice per l’apertura. Il complesso edilizio risulta ben curato, dotato di parcheggi, marciapiedi ed aree verdi e dista circa 3 km dal centro di Campagnano di Roma. La superficie dell’appartamento è pari a 81,48mq. Pertinenza dell’appartamento è un’autorimessa, descritta ed identificata come bene 2, con il quale l'appartamento è collegato e con il quale costituisce di fatto un’unità unica. La costruzione non è antecedente al 01/09/1967. Non sono presenti vincoli artistici, storici o alberghieri. Non sono presenti diritti demaniali o usi civici. L’immobile in oggetto risulta essere stato edificato in forza di Permesso di Costruire n.36, del 26 ottobre 2007, con pratica edilizia n.22 del 27 giugno 2007, così come riportato nell’atto di compravendita del 14 settembre 2015. Nel suddetto atto è precisato che la dichiarazione di inizio lavori è stata presentata in data 26 ottobre 2007 prot. n. 22091 e quella di fine lavori in data 4 giugno 2009 prot. n.11248 ed è riportato che non sono state eseguite opere soggette a nuovo provvedimento autorizzativo o concessorio ad eccezione di quelle per le quali sono state presentate le Dichiarazioni di Inizio Attività (D.I.A.) in data 16 luglio 2008 protocollo n. 15757 ed in data 24 luglio 2014 protocollo n. 11837; nell’atto viene inoltre riportato che il certificato di agibilità, richiesto in data 19 giugno 2009, prot. 12760, è stato rilasciato per silenzio assenso. Di tali D.I.A. e dell’agibilità non si è avuto riscontro in Comune. Il perito ha riscontrato la presenza di irregolarità catastali e difformità, stimando all’uopo il costo per la regolarizzazione e sottraendo gli importi in commento al valore del bene. Vi sono oneri condominiali insoluti.

Indirizzo
via Miguel Hernandez 18, Campagnano di Roma (RM)


Piano
S1 e T


Disponibilità
OCCUPATO


Vani
4,00


Bagni
-


Metri quadri
81,48


Certificazione energetica
-


Dati catastali

Foglio:37, Sezione:Fabbricati, Particella:473, Subalterno:524


Stalle, scuderie, rimesse, autorimesse

Autorimessa di 42,46mq con la quale il bene 1 è collegato e con il quale costituisce di fatto un’unità unica.L’autorimessa confina con appartamento e giardino sub 524 su due lati, box distinto con il numero interno 3/C, salvo altri.La costruzione non è antecedente al 01/09/1967. Non sono presenti vincoli artistici, storici o alberghieri. Non sono presenti diritti demaniali o usi civici. Da indagini e accessi presso l’ufficio tecnico del Comune di Campagnano di Roma, l’immobile in oggetto risulta essere stato edificato in forza di Permesso di Costruire n.36, del 26 ottobre 2007, con pratica edilizia n.22 del 27 giugno 2007, così come riportato nell’atto di compravendita del 14 settembre 2015. Nel suddetto atto è precisato che la dichiarazione di inizio lavori è stata presentata in data 26 ottobre 2007 prot. n. 22091 e quella di fine lavori in data 4 giugno 2009 prot. n.11248 ed è riportato che non sono state eseguite opere soggette a nuovo provvedimento autorizzativo o concessorio ad eccezione di quelle per le quali sono state presentate le Dichiarazioni di Inizio Attività (D.I.A.) in data 16 luglio 2008 protocollo n. 15757 ed in data 24 luglio 2014 protocollo n. 11837; nell’atto viene inoltre riportato che il certificato di agibilità, richiesto in data 19 giugno 2009, prot. 12760, è stato rilasciato per silenzio assenso. Di tali D.I.A. e dell’agibilità non si è avuto riscontro in Comune.Il perito ha riscontrato la presenza di irregolarità catastali e difformità, stimando all’uopo il costo per la regolarizzazione e sottraendo gli importi in commento al valore del bene. Vi sono oneri condominiali insoluti.

Indirizzo
via Miguel Hernandez 18, Campagnano di Roma (RM)


Piano
-


Disponibilità
OCCUPATO


Vani
-


Bagni
-


Metri quadri
42,46


Certificazione energetica
-


Dati catastali

Foglio:37, Sezione:Fabbricati, Particella:473, Subalterno:505


Data udienza
29/01/2026 ore 14:00


Tipo di vendita
Senza incanto


Modalità di vendita
Asincrona telematica


Luogo
-


Luogo presentazione offerte
-


Termine presentazione offerte
28/01/2026 ore 23:59


Prezzo base
€ 125.414,00


Offerta minima
€ 94.060,50


Rialzo minimo in caso di gara
€ 5.000,00


Deposito cauzionale
10% del prezzo offerto


Deposito in conto spese
-


Tribunale
Tivoli

Tipo di procedura
Espropriazione immobiliare (cartabia)

Ruolo
447/2023

Delegato alla vendita
Sechi Rosa
(Procede alle operazioni di vendita)

Recapiti
Tel. 063725644

Email
rosa.sechi@amalex.it

Custode giudiziario
Ivg di roma s.r.l. 
(Gestisce la visita del bene)

Recapiti
Tel. 0689569801

Scheda COD. 4339971 - Pubblicata dal 21/11/2025

La presente scheda di vendita riporta integralmente informazioni e documenti pervenuti ufficialmente dal Ministero e dal professionista incaricato.


Pubblicazione autorizzata dall’Autorità competente, è vietata ogni ripubblicazione o riproduzione anche parziale


Ti interessa questa vendita?

Documentazione

Visualizza su mappa

Mappa geografica del bene

Punti di interesse

Fonte dati

Nel raggio di {{range}}Km

Loading...
  • {{ getIcon(poi.type) }} {{ poi.localized }}: {{poi.count}}
  • {{ getIcon(poi.type) }} {{ poi.localized }}: {{poi.count}}
Dati non disponibili