Astegiudiziarie.it è parte di Rete Aste Network

Accedi o registrati

Non sei ancora registrato?

Oppure

Accedi

Abitazione in villini

Via Padre Vincenzo Scuderi, 93100 Caltanissetta CL, Italia, Caltanissetta (CL)

€ 563.000,00

Offerta minima € 422.250,00


Codice A4334262

Lotto 1

Data udienza 14/11/2025 ore 11:30

Termine presentazione offerte 13/11/2025 ore 12:00

Abitazione in villini

Via Padre Vincenzo Scuderi, 93100 Caltanissetta CL, Italia, Caltanissetta (CL)

€ 563.000,00

Offerta minima € 422.250,00


Codice A4334262

Lotto 1

Data udienza 14/11/2025 ore 11:30

Termine presentazione offerte 13/11/2025 ore 12:00

Ti interessa questa vendita?

Documentazione

Visualizza su mappa

Mappa geografica del bene

Punti di interesse

Fonte dati

Nel raggio di {{range}}Km

Loading...
  • {{ getIcon(poi.type) }} {{ poi.localized }}: {{poi.count}}
  • {{ getIcon(poi.type) }} {{ poi.localized }}: {{poi.count}}
Dati non disponibili

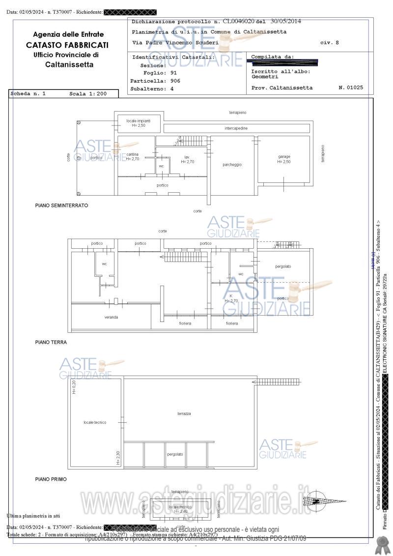
Immobile su più livelli con circostante corte.

Indirizzo
Via Padre Vincenzo Scuderi, 93100 Caltanissetta CL, Italia, Caltanissetta (CL)


Codice asta
4334262


Lotto
1


Numero beni
1


Genere
Immobili


Categoria
Immobile residenziale


Valore di stima
-


Abitazione in villini

Immobile su più livelli con circostante corte.

Indirizzo
Via Padre Vincenzo Scuderi, 93100 Caltanissetta CL, Italia, Caltanissetta (CL)


Piano
-


Disponibilità
-


Vani
7,00


Bagni
-


Metri quadri
-


Certificazione energetica
-


Data udienza
14/11/2025 ore 11:30


Tipo di vendita
Senza incanto


Modalità di vendita
Sincrona mista


Luogo
Corso Umberto I, 7, 93100 Caltanissetta CL, Italia - Caltanissetta 93100


Luogo presentazione offerte
-


Termine presentazione offerte
13/11/2025 ore 12:00


Prezzo base
€ 563.000,00


Offerta minima
€ 422.250,00


Rialzo minimo in caso di gara
€ 5.000,00


Deposito cauzionale
10% del prezzo offerto


Deposito in conto spese
-


Tribunale
Caltanissetta

Tipo di procedura
Espropriazione immobiliare (cartabia)

Ruolo
7/2024

Delegato alla vendita
Alletto Salvatore giovanni maria
(Procede alle operazioni di vendita)

Recapiti
-

Email
-

Custode giudiziario
Alletto Salvatore giovanni maria
(Gestisce la visita del bene)

Recapiti
-

Scheda COD. 4334262 - Pubblicata dal 07/08/2025

La presente scheda di vendita riporta integralmente informazioni e documenti pervenuti ufficialmente dal Ministero e dal professionista incaricato.


Pubblicazione autorizzata dall’Autorità competente, è vietata ogni ripubblicazione o riproduzione anche parziale


Ti interessa questa vendita?

Documentazione

Visualizza su mappa

Mappa geografica del bene

Punti di interesse

Fonte dati

Nel raggio di {{range}}Km

Loading...
  • {{ getIcon(poi.type) }} {{ poi.localized }}: {{poi.count}}
  • {{ getIcon(poi.type) }} {{ poi.localized }}: {{poi.count}}
Dati non disponibili