Astegiudiziarie.it è parte di Rete Aste Network

Accedi o registrati

Non sei ancora registrato?

Oppure

Accedi

Abitazione in villini, fabbricato

VIA VALLE DI SCALVE SNC PIANO T-1, Aprilia (LT)

€ 131.118,00

Offerta minima € 98.340,00


Codice A4318850

Lotto Lotto unico

Data udienza 14/04/2026 ore 12:00

Termine presentazione offerte 13/04/2026 ore 12:00

Abitazione in villini, fabbricato

VIA VALLE DI SCALVE SNC PIANO T-1, Aprilia (LT)

€ 131.118,00

Offerta minima € 98.340,00


Codice A4318850

Lotto Lotto unico

Data udienza 14/04/2026 ore 12:00

Termine presentazione offerte 13/04/2026 ore 12:00

Ti interessa questa vendita?

Documentazione

Visualizza su mappa

Mappa geografica del bene

Punti di interesse

Fonte dati

Nel raggio di {{range}}Km

Loading...
  • {{ getIcon(poi.type) }} {{ poi.localized }}: {{poi.count}}
  • {{ getIcon(poi.type) }} {{ poi.localized }}: {{poi.count}}
Dati non disponibili

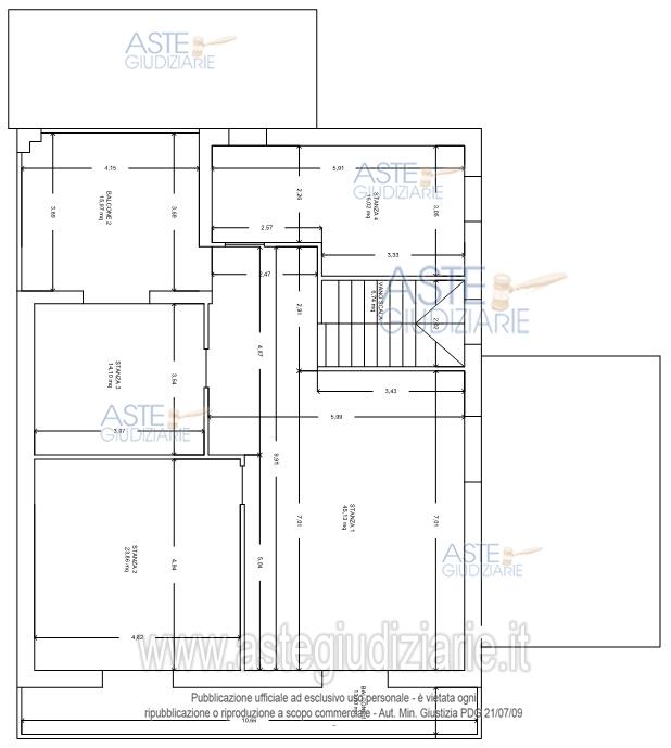
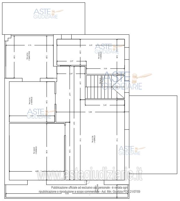
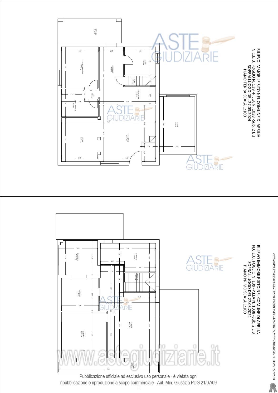
Fabbricato per civile abitazione con struttura portante in muratura di blocchetti di calcestruzzo, di due piani fuori terra e con copertura composta da tetto a falde. Il piano primo e' ad oggi realizzato a rustico. Il piano terra e' composto da ingresso/soggiorno con cucina a vista, accesso alla zona notte composta da camera da letto singola e camera matrimoniale e bagno.

Indirizzo
VIA VALLE DI SCALVE SNC PIANO T-1, Aprilia (LT)


Codice asta
4318850


Lotto
Lotto unico


Numero beni
2


Genere
Immobili


Categoria
Immobile residenziale


Valore di stima
-


Abitazione in villini

Fabbricato per civile abitazione con struttura portante in muratura di blocchetti di calcestruzzo, di due piani fuori terra e con copertura composta da tetto a falde. Attualmente le opere strutturali sono ultimate e le sole finiture riguardano il solo piano terra. Il piano primo e' ad oggi realizzato a rustico. Il piano terra e' composto da ingresso/soggiorno con cucina a vista, accesso alla zona notte composta da camera da letto singola e camera matrimoniale e bagno. Tale piano risulta rifinito con camino in soggiorno, infissi interni ed esterni in legno e tinteggiature. Inoltre e' presente la scala di accesso al piano primo lasciata a rustico, come tutto il piano primo nel quale sono presenti le sole tramezzature interne, sempre a rustico e risultano mancanti gli infissi a eccezione di quelli di accesso al balcone consistenti in vecchi infissi in legno.

Indirizzo
VIA DI VALLE DI SCALVE, SNC PIANTO T-1, Aprilia (LT)


Piano
T


Disponibilità
Libero


Vani
8,50


Bagni
-


Metri quadri
252,00


Certificazione energetica
-


Dati catastali

Foglio:139, Particella:1038, Subalterno:2


Fabbricato

Garage di pertinenza annesso al villino composto da un piano fuori terra.

Indirizzo
VIA DI VALLE DI SCALVE SNC PIANO T, Aprilia (LT)


Piano
T


Disponibilità
Libero


Vani
-


Bagni
-


Metri quadri
22,00


Certificazione energetica
-


Dati catastali

Foglio:139, Particella:1038, Subalterno:3


Data udienza
14/04/2026 ore 12:00


Tipo di vendita
Senza incanto


Modalità di vendita
Asincrona telematica


Luogo
N.A. -


Luogo presentazione offerte
-


Termine presentazione offerte
13/04/2026 ore 12:00


Prezzo base
€ 131.118,00


Offerta minima
€ 98.340,00


Rialzo minimo in caso di gara
€ 2.650,00


Deposito cauzionale
-


Deposito in conto spese
-


Tribunale
Latina

Tipo di procedura
Esecuzione immobiliare post legge 80

Ruolo
187/2022

Delegato alla vendita
Massone Elisabetta
(Procede alle operazioni di vendita)
(Gestisce la visita del bene)

Recapiti
Cell. 3486082513
Tel. 0773663350

Scheda COD. 4318850 - Pubblicata dal 20/01/2026

La presente scheda di vendita riporta integralmente informazioni e documenti pervenuti ufficialmente dal Ministero e dal professionista incaricato.

Pubblicazione notarizzata su Blockchain


Pubblicazione autorizzata dall’Autorità competente, è vietata ogni ripubblicazione o riproduzione anche parziale


Ti interessa questa vendita?

Documentazione

Visualizza su mappa

Mappa geografica del bene

Storico delle vendite

Data venditaPrezzo base
25/03/2025€ 310.800,00
01/07/2025€ 233.100,00
25/11/2025€ 174.825,00
14/04/2026€ 131.118,00

Punti di interesse

Fonte dati

Nel raggio di {{range}}Km

Loading...
  • {{ getIcon(poi.type) }} {{ poi.localized }}: {{poi.count}}
  • {{ getIcon(poi.type) }} {{ poi.localized }}: {{poi.count}}
Dati non disponibili