Astegiudiziarie.it è parte di Rete Aste Network

Accedi o registrati

Non sei ancora registrato?

Oppure

Accedi

Abitazione in ville

Via Vittorio Alfieri n. 28, Mascalucia (CT)

€ 140.333,00

Offerta minima € 105.250,00


Codice A359994

Lotto 06

Data udienza 09/07/2026 ore 09:30

Termine presentazione offerte 08/07/2026 ore 13:00

Abitazione in ville

Via Vittorio Alfieri n. 28, Mascalucia (CT)

€ 140.333,00

Offerta minima € 105.250,00


Codice A359994

Lotto 06

Data udienza 09/07/2026 ore 09:30

Termine presentazione offerte 08/07/2026 ore 13:00

Ti interessa questa vendita?

Visualizza su mappa

Mappa geografica del bene

Punti di interesse

Fonte dati

Nel raggio di {{range}}Km

Loading...
  • {{ getIcon(poi.type) }} {{ poi.localized }}: {{poi.count}}
  • {{ getIcon(poi.type) }} {{ poi.localized }}: {{poi.count}}
Dati non disponibili

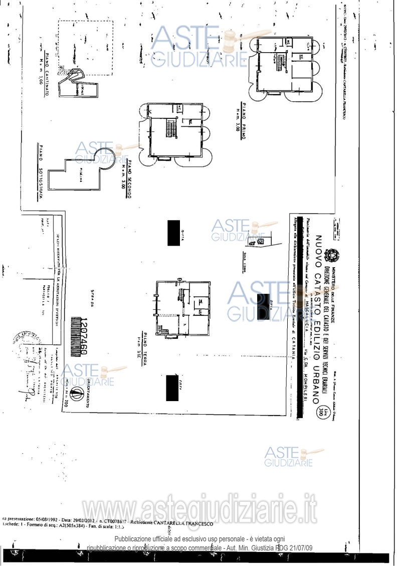
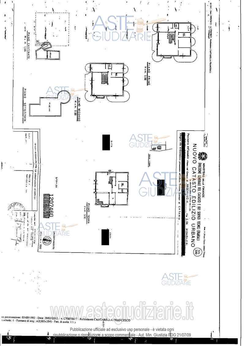
Immobile abusivo non sanabile. Villa per civile abitazione posta su tre piani, sita in Mascalucia, con accesso da via Vittorio Alfieri n. 28, composta da tre grandi saloni, otto vani ed accessori disposti sul piano cantinato, terra, primo e secondo, piscina e due corpi di fabbrica adibiti a locali di sgombero e docce, con circostante terreno di pertinenza nonché con adiacente tratto di terreno edificabile.

Indirizzo
Via Vittorio Alfieri n. 28, Mascalucia (CT)


Codice asta
359994


Lotto
06


Numero beni
1


Genere
Immobili


Categoria
Immobile residenziale


Valore di stima
-


Abitazione in ville

Trattasi di immobile abusivo non sanabile per come infra precisato e per come evidenziato nella sezione “Situazione urbanistica e catastale degli immobili facenti parte del lotto” e nelle relazioni del CTU cui si fa espresso rinvio.In particolare si tratta di una Villa per civile abitazione posta su tre piani, sita in Mascalucia, con accesso da via Vittorio Alfieri n. 28, composta da tre grandi saloni, otto vani ed accessori disposti sul piano cantinato, terra, primo e secondo, piscina e due corpi di fabbrica adibiti a locali di sgombero e docce, con circostante terreno di pertinenza nonché con adiacente tratto di terreno edificabile (salvi eventuali pregressi impegni di volumetria), con tettoia in tegole con struttura in acciaio che racchiude il serbatoio del gas GPL a servizio della villa. Quest’ultimo tratto di terreno esteso circa 737 mq ed avente particella catastale autonoma, costituisce comunque nei fatti anch’essa corte della villa, nei limiti indicati nella CTU cui si rinvia con l’espressa esclusione della particella 320.

Indirizzo
Via Vittorio Alfieri n. 28, Mascalucia (CT)


Piano
-


Disponibilità
LIBERO


Vani
19,50


Bagni
-


Metri quadri
300,00


Certificazione energetica
-


Dati catastali

Foglio:7, Particella:321, Subalterno:1
Foglio:7, Particella:322
Foglio:7, Particella:321, Subalterno:3
Foglio:7, Particella:321, Subalterno:2


Data udienza
09/07/2026 ore 09:30


Tipo di vendita
Senza incanto


Modalità di vendita
Sincrona mista


Luogo
corso delle province 203, scala E, presso i locali di Aste Giudiziarie Inlinea spa - Catania 95128


Luogo presentazione offerte
-


Termine presentazione offerte
08/07/2026 ore 13:00


Prezzo base
€ 140.333,00


Offerta minima
€ 105.250,00


Rialzo minimo in caso di gara
€ 3.500,00


Deposito cauzionale
25% del prezzo offerto


Deposito in conto spese
-


Tribunale
Catania

Tipo di procedura
Esecuzione immobiliare post legge 80

Ruolo
969/2010

Giudice
Acagnino Maria

Recapiti
-

Email
-

Delegato alla vendita
Cassella Claudia
(Procede alle operazioni di vendita)

Recapiti
Cell.
Tel. 095439770

Email
avv.claudiacassella@gmail.com

Custode giudiziario
Cassella Claudia
(Gestisce la visita del bene)

Recapiti
Cell.
Tel. 095439770

Scheda COD. 359994 - Pubblicata dal 08/04/2026

La presente scheda di vendita riporta integralmente informazioni e documenti pervenuti ufficialmente dal Ministero e dal professionista incaricato.

Pubblicazione notarizzata su Blockchain


Pubblicazione autorizzata dall’Autorità competente, è vietata ogni ripubblicazione o riproduzione anche parziale


Ti interessa questa vendita?

Visualizza su mappa

Mappa geografica del bene

Storico delle vendite

Data venditaPrezzo base
25/01/2017€ 675.810,72
04/05/2017€ 540.648,58
29/09/2021€ 443.519,00
06/12/2023€ 443.519,00
19/04/2024€ 332.639,00
03/10/2024€ 249.480,00
29/01/2025€ 187.110,00
26/06/2025€ 140.333,00
09/07/2026€ 140.333,00

Punti di interesse

Fonte dati

Nel raggio di {{range}}Km

Loading...
  • {{ getIcon(poi.type) }} {{ poi.localized }}: {{poi.count}}
  • {{ getIcon(poi.type) }} {{ poi.localized }}: {{poi.count}}
Dati non disponibili