Astegiudiziarie.it è parte di Rete Aste Network

Accedi o registrati

Non sei ancora registrato?

Oppure

Accedi

Abitazione in ville

Via Annunziata, 4, 95030 Mascalucia CT, Italia, Mascalucia (CT)

€ 395.600,00

Offerta minima € 296.700,00


Codice A4343579

Lotto 2

Data udienza 10/04/2026 ore 10:30

Termine presentazione offerte 09/04/2026 ore 12:00

Abitazione in ville

Via Annunziata, 4, 95030 Mascalucia CT, Italia, Mascalucia (CT)

€ 395.600,00

Offerta minima € 296.700,00


Codice A4343579

Lotto 2

Data udienza 10/04/2026 ore 10:30

Termine presentazione offerte 09/04/2026 ore 12:00

Ti interessa questa vendita?

Documentazione

Visualizza su mappa

Mappa geografica del bene

Punti di interesse

Fonte dati

Nel raggio di {{range}}Km

Loading...
  • {{ getIcon(poi.type) }} {{ poi.localized }}: {{poi.count}}
  • {{ getIcon(poi.type) }} {{ poi.localized }}: {{poi.count}}
Dati non disponibili

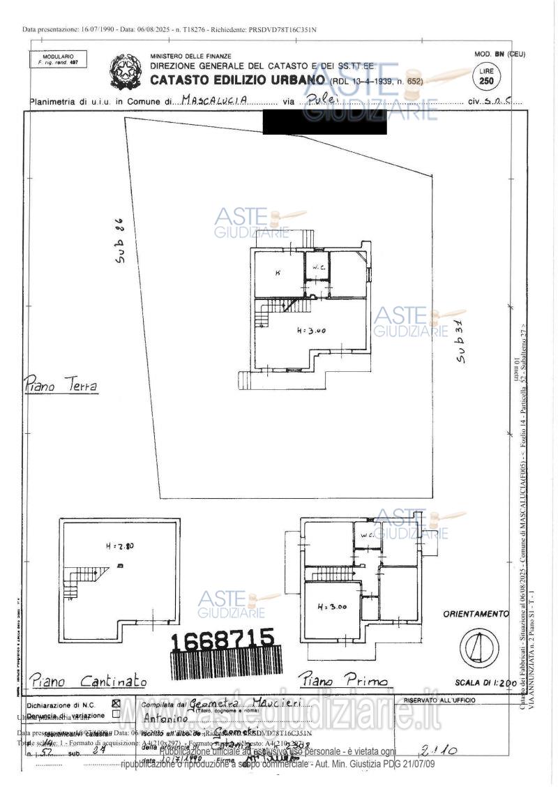
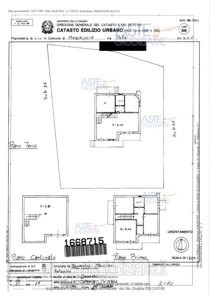
Villa destinata a civile abitazione, sita in Mascalucia (CT) via Annunziata n. 4 (Quota Proprietà: 100%)

Indirizzo
Via Annunziata, 4, 95030 Mascalucia CT, Italia, Mascalucia (CT)


Codice asta
4343579


Lotto
2


Numero beni
1


Genere
Immobili


Categoria
Immobile residenziale


Valore di stima
-


Abitazione in ville

LOTTO 2 - Villa destinata a civile abitazione, sita in Mascalucia (CT) via Annunziata n. 4 (Quota Proprietà: 100%) cat. A/7, foglio 14, Particella 52, Sub 27, Consistenza 11,5 Vani Rendita 1.366,03 €. Disponibilità del bene: L’immobile risulta libero. Notizie urbanistiche e precisazioni: L’ immobile è posto in vendita nella consistenza indicata alla relazione di liquidazione controllata. Per tutti i dettagli si rimanda alla relazione di stima, di cui si raccomanda l'attenta lettura e che si intenderà per conosciuta da parte dell'offerente. Prezzo base d’asta € 395.600,00 (trecentonovantacinquemilaseicento/00) oltre imposte come per legge. Offerta minima: € 296.700,00 (duecentonovantaseimilasettecento/00) pari al 75% del prezzo base, oltre imposte come per legge. Rilancio minino in caso di gara: € 3.500,00. Cauzione: 10% del prezzo offerto

Indirizzo
Via Annunziata, 4, 95030 Mascalucia CT, Italia, Mascalucia (CT)


Piano
-


Disponibilità
Libero


Vani
11,50


Bagni
-


Metri quadri
-


Certificazione energetica
-


Dati catastali

Foglio:14, Particella:52, Sub particella:27


Data udienza
10/04/2026 ore 10:30


Tipo di vendita
Senza incanto


Modalità di vendita
Asincrona telematica


Luogo
-


Luogo presentazione offerte
-


Termine presentazione offerte
09/04/2026 ore 12:00


Prezzo base
€ 395.600,00


Offerta minima
€ 296.700,00


Rialzo minimo in caso di gara
€ 3.500,00


Deposito cauzionale
10% del prezzo offerto


Deposito in conto spese
-


Tribunale
Catania

Tipo di procedura
Liquidazione controllata(cci)

Ruolo
24/2024

Delegato alla vendita
Barbagallo Orazio lorenzo
(Procede alle operazioni di vendita)
(Gestisce la visita del bene)

Recapiti
-

Scheda COD. 4343579 - Pubblicata dal 19/02/2026

La presente scheda di vendita riporta integralmente informazioni e documenti pervenuti ufficialmente dal Ministero e dal professionista incaricato.

Pubblicazione notarizzata su Blockchain


Pubblicazione autorizzata dall’Autorità competente, è vietata ogni ripubblicazione o riproduzione anche parziale


Ti interessa questa vendita?

Documentazione

Visualizza su mappa

Mappa geografica del bene

Punti di interesse

Fonte dati

Nel raggio di {{range}}Km

Loading...
  • {{ getIcon(poi.type) }} {{ poi.localized }}: {{poi.count}}
  • {{ getIcon(poi.type) }} {{ poi.localized }}: {{poi.count}}
Dati non disponibili