Astegiudiziarie.it è parte di Rete Aste Network

Accedi o registrati

Non sei ancora registrato?

Oppure

Accedi

Abitazione in ville

Via A. Cassani, 33, 00046 Grottaferrata RM, Italia, Grottaferrata (RM)

€ 353.400,00

Offerta minima € 265.050,00


Codice A4336654

Lotto 1

Data udienza 04/03/2026 ore 10:00

Termine presentazione offerte 03/03/2026 ore 23:59

Abitazione in ville

Via A. Cassani, 33, 00046 Grottaferrata RM, Italia, Grottaferrata (RM)

€ 353.400,00

Offerta minima € 265.050,00


Codice A4336654

Lotto 1

Data udienza 04/03/2026 ore 10:00

Termine presentazione offerte 03/03/2026 ore 23:59

Ti interessa questa vendita?

Documentazione

Visualizza su mappa

Mappa geografica del bene

Punti di interesse

Fonte dati

Nel raggio di {{range}}Km

Loading...
  • {{ getIcon(poi.type) }} {{ poi.localized }}: {{poi.count}}
  • {{ getIcon(poi.type) }} {{ poi.localized }}: {{poi.count}}
Dati non disponibili

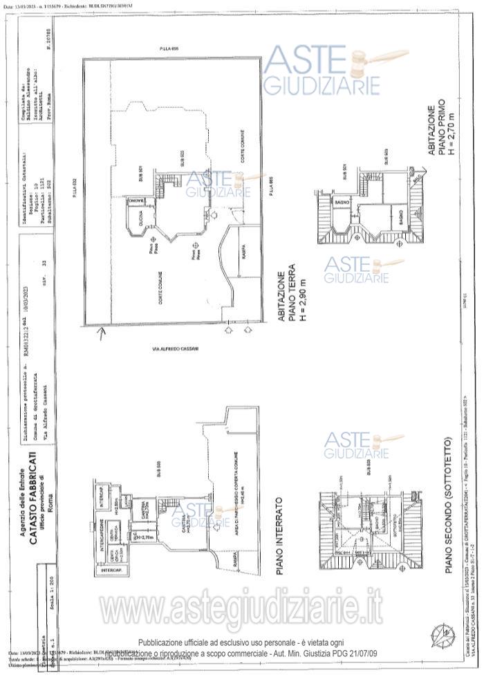
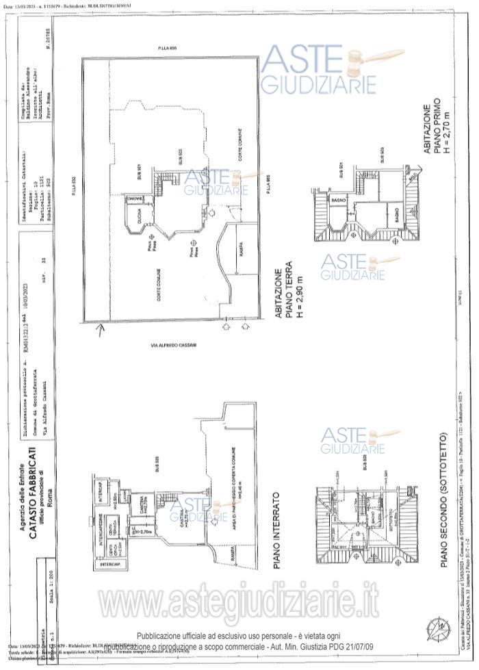
Appartamento posto ai piani Seminterrato S1- Terra-Primo e Secondo, in villa, con annessa corte ed area di parcheggio coperta di uso comune alle altre unità immobiliari, in Comune di Grottaferrata (RM) identificato al C.F. al foglio 10 part.1121 sub.502

Indirizzo
Via A. Cassani, 33, 00046 Grottaferrata RM, Italia, Grottaferrata (RM)


Codice asta
4336654


Lotto
1


Numero beni
1


Genere
Immobili


Categoria
Immobile residenziale


Valore di stima
-


Abitazione in ville

Appartamento posto ai piani Seminterrato S1- Terra-Primo e Secondo, in villa, con annessa corte ed area di parcheggio coperta di uso comune alle altre unità immobiliari, in Comune di Grottaferrata (RM) identificato al C.F. al foglio 10 part.1121 sub.502

Indirizzo
Via Cassani, 33, Grottaferrata (RM)


Piano
-


Disponibilità
-


Vani
11,50


Bagni
4


Metri quadri
212,00


Certificazione energetica
-


Data udienza
04/03/2026 ore 10:00


Tipo di vendita
Senza incanto


Modalità di vendita
Asincrona telematica


Luogo
-


Luogo presentazione offerte
-


Termine presentazione offerte
03/03/2026 ore 23:59


Prezzo base
€ 353.400,00


Offerta minima
€ 265.050,00


Rialzo minimo in caso di gara
€ 18.000,00


Deposito cauzionale
10% del prezzo offerto


Deposito in conto spese
-


Tribunale
Velletri

Tipo di procedura
Esecuzione immobiliare post legge 80

Ruolo
274/2022

Giudice
Di serafino Anna luisa

Recapiti
-

Email
-

Delegato alla vendita
Pitzalis Monica
(Procede alle operazioni di vendita)

Recapiti
-

Email
-

Custode giudiziario
Pitzalis Monica
(Gestisce la visita del bene)

Recapiti
Cell. 3459980973

Scheda COD. 4336654 - Pubblicata dal 30/12/2025

La presente scheda di vendita riporta integralmente informazioni e documenti pervenuti ufficialmente dal Ministero e dal professionista incaricato.


Pubblicazione autorizzata dall’Autorità competente, è vietata ogni ripubblicazione o riproduzione anche parziale


Ti interessa questa vendita?

Documentazione

Visualizza su mappa

Mappa geografica del bene

Storico delle vendite

Data venditaPrezzo base
11/12/2025€ 471.200,00
04/03/2026€ 353.400,00

Punti di interesse

Fonte dati

Nel raggio di {{range}}Km

Loading...
  • {{ getIcon(poi.type) }} {{ poi.localized }}: {{poi.count}}
  • {{ getIcon(poi.type) }} {{ poi.localized }}: {{poi.count}}
Dati non disponibili