Astegiudiziarie.it è parte di Rete Aste Network

Accedi o registrati

Non sei ancora registrato?

Oppure

Accedi

Abitazione in ville

Via A. Cassani, 33, 00046 Grottaferrata RM, Italia, Grottaferrata (RM)

€ 471.200,00

Offerta minima € 353.400,00


Codice A4336654

Lotto 1

Data udienza 11/12/2025 ore 10:00

Termine presentazione offerte 10/12/2025 ore 23:59

Abitazione in ville

Via A. Cassani, 33, 00046 Grottaferrata RM, Italia, Grottaferrata (RM)

€ 471.200,00

Offerta minima € 353.400,00


Codice A4336654

Lotto 1

Data udienza 11/12/2025 ore 10:00

Termine presentazione offerte 10/12/2025 ore 23:59

Vendita deserta

Ti interessa questa vendita?

Documentazione

Visualizza su mappa

Mappa geografica del bene

Punti di interesse

Fonte dati

Nel raggio di {{range}}Km

Loading...
  • {{ getIcon(poi.type) }} {{ poi.localized }}: {{poi.count}}
  • {{ getIcon(poi.type) }} {{ poi.localized }}: {{poi.count}}
Dati non disponibili

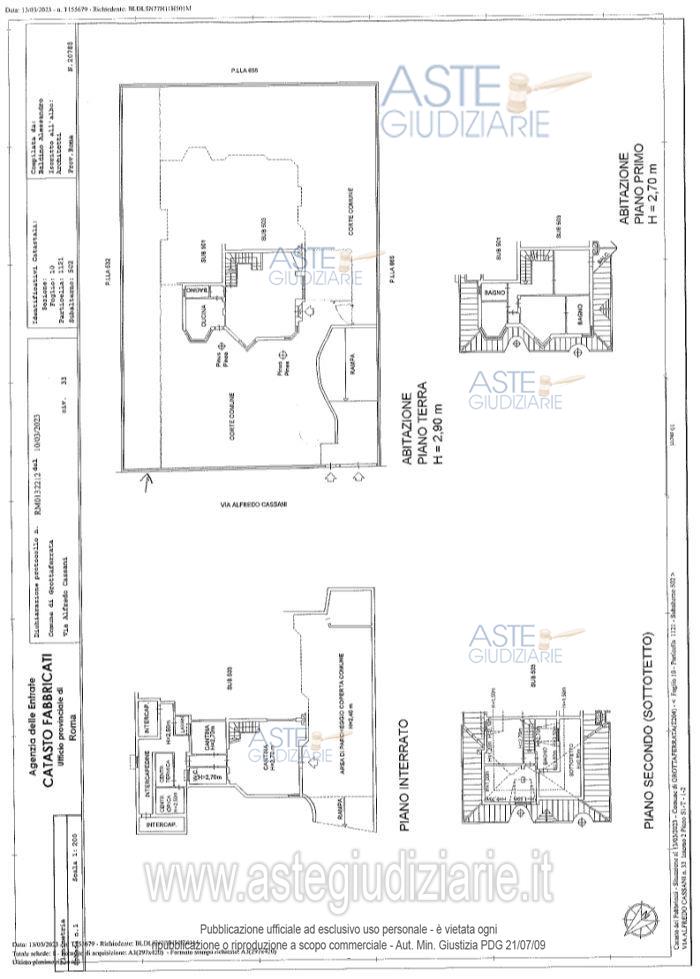
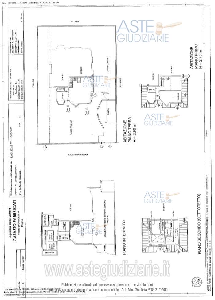
Appartamento posto ai piani Seminterrato S1- Terra-Primo e Secondo, in villa, con annessa corte ed area di parcheggio coperta di uso comune alle altre unità immobiliari, in Comune di Grottaferrata (RM) identificato al C.F. al foglio 10 part.1121 sub.502

Indirizzo
Via A. Cassani, 33, 00046 Grottaferrata RM, Italia, Grottaferrata (RM)


Codice asta
4336654


Lotto
1


Numero beni
1


Genere
Immobili


Categoria
Immobile residenziale


Valore di stima
-


Abitazione in ville

Appartamento posto ai piani Seminterrato S1- Terra-Primo e Secondo, in villa, con annessa corte ed area di parcheggio coperta di uso comune alle altre unità immobiliari, in Comune di Grottaferrata (RM) identificato al C.F. al foglio 10 part.1121 sub.502

Indirizzo
Via Cassani, 33, Grottaferrata (RM)


Piano
-


Disponibilità
-


Vani
11,50


Bagni
-


Metri quadri
212,00


Certificazione energetica
-


Tribunale
Velletri

Tipo di procedura
Esecuzione immobiliare post legge 80

Ruolo
274/2022

Giudice
Di serafino Anna luisa

Recapiti
-

Email
-

Delegato alla vendita
Pitzalis Monica
(Procede alle operazioni di vendita)

Recapiti
-

Email
-

Custode giudiziario
Pitzalis Monica
(Gestisce la visita del bene)

Recapiti
-

Email

Scheda COD. 4336654 - Pubblicata dal 29/09/2025

La presente scheda di vendita riporta integralmente informazioni e documenti pervenuti ufficialmente dal Ministero e dal professionista incaricato.

La sua pubblicazione è prolungata, in conformità agli accordi con il Tribunale, con l’obiettivo di garantire un’informazione continua e aggiornata, nel rispetto delle tempistiche procedurali.

Pubblicazione notarizzata su Blockchain


Pubblicazione autorizzata dall’Autorità competente, è vietata ogni ripubblicazione o riproduzione anche parziale


Ti interessa questa vendita?

Documentazione

Visualizza su mappa

Mappa geografica del bene

Punti di interesse

Fonte dati

Nel raggio di {{range}}Km

Loading...
  • {{ getIcon(poi.type) }} {{ poi.localized }}: {{poi.count}}
  • {{ getIcon(poi.type) }} {{ poi.localized }}: {{poi.count}}
Dati non disponibili