Astegiudiziarie.it è parte di Rete Aste Network

Accedi o registrati

Non sei ancora registrato?

Oppure

Accedi

Abitazione in ville

Via Trieste, 247, 34170 Gorizia GO, Italia, Gorizia (GO)

€ 221.925,00

Offerta minima € 166.443,75


Codice A4331615

Lotto Lotto unico

Data udienza 16/01/2026 ore 12:30

Termine presentazione offerte 13/01/2026 ore 12:00

Abitazione in ville

Via Trieste, 247, 34170 Gorizia GO, Italia, Gorizia (GO)

€ 221.925,00

Offerta minima € 166.443,75


Codice A4331615

Lotto Lotto unico

Data udienza 16/01/2026 ore 12:30

Termine presentazione offerte 13/01/2026 ore 12:00

Ti interessa questa vendita?

Documentazione

Visualizza su mappa

Mappa geografica del bene

Punti di interesse

Fonte dati

Nel raggio di {{range}}Km

Loading...
  • {{ getIcon(poi.type) }} {{ poi.localized }}: {{poi.count}}
  • {{ getIcon(poi.type) }} {{ poi.localized }}: {{poi.count}}
Dati non disponibili

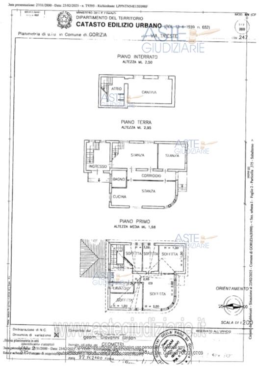
Abitazione "in Villa" con corte pertinenziale a GORIZIA (GO) in Via Trieste n. 247, della superficie commerciale complessiva di 307,25.- mq. I beni, oggetto di Pignoramento, consistono in una abitazione unifamiliare " in Villa " ( particella catastale edificata 375 ) con pertinenza di corte/giardino, anche su annesso separato lotto inedificato ( particella catastale 237/1 ) - immobile come meglio descritto in perizia d.d. 02.05.2025.

Indirizzo
Via Trieste, 247, 34170 Gorizia GO, Italia, Gorizia (GO)


Codice asta
4331615


Lotto
Lotto unico


Numero beni
1


Genere
Immobili


Categoria
Immobile residenziale


Valore di stima
-


Abitazione in ville

Abitazione "in Villa" con corte pertinenziale a GORIZIA (GO) in Via Trieste n. 247, della superficie commerciale complessiva di 307,25.- mq. I beni, oggetto di Pignoramento, consistono in una abitazione unifamiliare " in Villa " ( particella catastale edificata 375 ) con pertinenza di corte/giardino, anche su annesso separato lotto inedificato ( particella catastale 237/1 ) - immobile come meglio descritto in perizia d.d. 02.05.2025.

Indirizzo
Via Trieste, 247, 34170 Gorizia GO, Italia, Gorizia (GO)


Piano
piano terra primo piano sottotetto


Disponibilità
OCCUP


Vani
7,50


Bagni
-


Metri quadri
307,25


Certificazione energetica
-


Dati catastali

Foglio:2, Sezione:I, Particella:375
Foglio:2, Sezione:terreni, Particella:375
Foglio:2, Particella:237, Sub particella:1


Data udienza
16/01/2026 ore 12:30


Tipo di vendita
Senza incanto


Modalità di vendita
Sincrona mista


Luogo
Via Trieste, 247, 34170 Gorizia GO, Italia - Gorizia 34170


Luogo presentazione offerte
-


Termine presentazione offerte
13/01/2026 ore 12:00


Prezzo base
€ 221.925,00


Offerta minima
€ 166.443,75


Rialzo minimo in caso di gara
€ 3.000,00


Deposito cauzionale
-


Deposito in conto spese
-


Tribunale
Gorizia

Tipo di procedura
Espropriazione immobiliare (cartabia)

Ruolo
1/2025

Delegato alla vendita
Aloisio Giovanni
(Procede alle operazioni di vendita)
(Gestisce la visita del bene)

Recapiti
Cell. 3402495124
Tel. 3402495124

Scheda COD. 4331615 - Pubblicata dal 21/10/2025

La presente scheda di vendita riporta integralmente informazioni e documenti pervenuti ufficialmente dal Ministero e dal professionista incaricato.


Pubblicazione autorizzata dall’Autorità competente, è vietata ogni ripubblicazione o riproduzione anche parziale


Ti interessa questa vendita?

Documentazione

Visualizza su mappa

Mappa geografica del bene

Storico delle vendite

Data venditaPrezzo base
10/10/2025€ 295.900,00
16/01/2026€ 221.925,00

Punti di interesse

Fonte dati

Nel raggio di {{range}}Km

Loading...
  • {{ getIcon(poi.type) }} {{ poi.localized }}: {{poi.count}}
  • {{ getIcon(poi.type) }} {{ poi.localized }}: {{poi.count}}
Dati non disponibili