Astegiudiziarie.it è parte di Rete Aste Network

Accedi o registrati

Non sei ancora registrato?

Oppure

Accedi

Uffici e studi privati

Via Talete, 09047 Selargius CA, Italia, Selargius (CA)

€ 115.668,00

Offerta minima € 86.751,00


Codice A4177045

Lotto 6

Data udienza 13/01/2026 ore 16:00

Termine presentazione offerte 12/01/2026 ore 16:00

Uffici e studi privati

Via Talete, 09047 Selargius CA, Italia, Selargius (CA)

€ 115.668,00

Offerta minima € 86.751,00


Codice A4177045

Lotto 6

Data udienza 13/01/2026 ore 16:00

Termine presentazione offerte 12/01/2026 ore 16:00

Ti interessa questa vendita?

Documentazione

Visualizza su mappa

Mappa geografica del bene

Punti di interesse

Fonte dati

Nel raggio di {{range}}Km

Loading...
  • {{ getIcon(poi.type) }} {{ poi.localized }}: {{poi.count}}
  • {{ getIcon(poi.type) }} {{ poi.localized }}: {{poi.count}}
Dati non disponibili

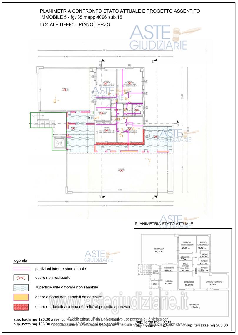
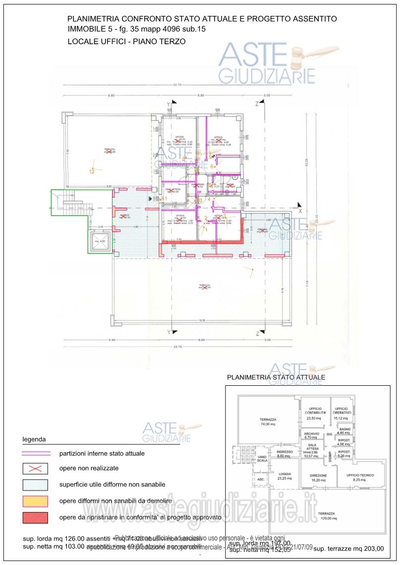
Intera Proprietà - Unità immobiliare sita in Comune di Selargius (CA) Via Talete, censita al N.C.E.U. al fg 35 mappale 4096 sub 15, cat. A/10, classe 4, vani 7,5, R.C. Euro 1.565,74; è ubicato al piano terzo del maggior fabbricato. L’immobile nel progetto ha destinazione quale ufficio. Si sviluppa su una superficie lorda di mq 197,00 di cui mq 71,00 abusivi non sanabili (netta mq 152,05, di cui 49,00 abusivi non sanabili), due terrazze della superficie complessiva di 188,30 mq

Indirizzo
Via Talete, 09047 Selargius CA, Italia, Selargius (CA)


Codice asta
4177045


Lotto
6


Numero beni
1


Genere
Immobili


Categoria
Immobile commerciale


Valore di stima
-


Uffici e studi privati

Intera Proprietà - Unità immobiliare sita in Comune di Selargius (CA) Via Talete, censita al N.C.E.U. al fg 35 mappale 4096 sub 15, cat. A/10, classe 4, vani 7,5, R.C. Euro 1.565,74; è ubicato al piano terzo del maggior fabbricato. L’immobile nel progetto ha destinazione quale ufficio. Si sviluppa su una superficie lorda di mq 197,00 di cui mq 71,00 abusivi non sanabili (netta mq 152,05, di cui 49,00 abusivi non sanabili), due terrazze della superficie complessiva di 188,30 mq

Indirizzo
Via Talete, 09047 Selargius CA, Italia, Selargius (CA)


Piano
-


Disponibilità
LIBERO


Vani
-


Bagni
-


Metri quadri
197,00


Certificazione energetica
-


Dati catastali

Foglio:35, Particella:4096, Subalterno:15


Data udienza
13/01/2026 ore 16:00


Tipo di vendita
Senza incanto


Modalità di vendita
Asincrona telematica


Luogo
-


Luogo presentazione offerte
-


Termine presentazione offerte
12/01/2026 ore 16:00


Prezzo base
€ 115.668,00


Offerta minima
€ 86.751,00


Rialzo minimo in caso di gara
€ 10.000,00


Deposito cauzionale
15000


Deposito in conto spese
-


Tribunale
Cagliari

Tipo di procedura
Esecuzione immobiliare post legge 80

Ruolo
266/2015

Giudice
Cocco Silvia

Recapiti
-

Email
-

Delegato alla vendita
Di fortunato Marco
(Procede alle operazioni di vendita)

Recapiti
Cell. 3356185295

Email
-

Custode giudiziario
Ivg di cagliari 
(Gestisce la visita del bene)

Recapiti
Tel. 0702299036

Scheda COD. 4177045 - Pubblicata dal 09/10/2025

La presente scheda di vendita riporta integralmente informazioni e documenti pervenuti ufficialmente dal Ministero e dal professionista incaricato.

Pubblicazione notarizzata su Blockchain


Pubblicazione autorizzata dall’Autorità competente, è vietata ogni ripubblicazione o riproduzione anche parziale


Ti interessa questa vendita?

Documentazione

Visualizza su mappa

Mappa geografica del bene

Storico delle vendite

Data venditaPrezzo base
05/05/2020€ 270.000,00
30/09/2022€ 270.000,00
06/02/2024€ 216.000,00
11/03/2025€ 183.600,00
08/07/2025€ 165.240,00
13/01/2026€ 115.668,00

Punti di interesse

Fonte dati

Nel raggio di {{range}}Km

Loading...
  • {{ getIcon(poi.type) }} {{ poi.localized }}: {{poi.count}}
  • {{ getIcon(poi.type) }} {{ poi.localized }}: {{poi.count}}
Dati non disponibili