Astegiudiziarie.it è parte di Rete Aste Network

Accedi o registrati

Non sei ancora registrato?

Oppure

Accedi

Ufficio

via Veronese 95/c - 95/d - 95/e - 97, Olbia (SS)

€ 256.000,00

Offerta minima € 192.000,00


Codice A4326572

Lotto 1

Data udienza 12/02/2026 ore 17:00

Termine presentazione offerte 11/02/2026 ore 23:59

Ufficio

via Veronese 95/c - 95/d - 95/e - 97, Olbia (SS)

€ 256.000,00

Offerta minima € 192.000,00


Codice A4326572

Lotto 1

Data udienza 12/02/2026 ore 17:00

Termine presentazione offerte 11/02/2026 ore 23:59

Ti interessa questa vendita?

Documentazione

Visualizza su mappa

Mappa geografica del bene

Punti di interesse

Fonte dati

Nel raggio di {{range}}Km

Loading...
  • {{ getIcon(poi.type) }} {{ poi.localized }}: {{poi.count}}
  • {{ getIcon(poi.type) }} {{ poi.localized }}: {{poi.count}}
Dati non disponibili

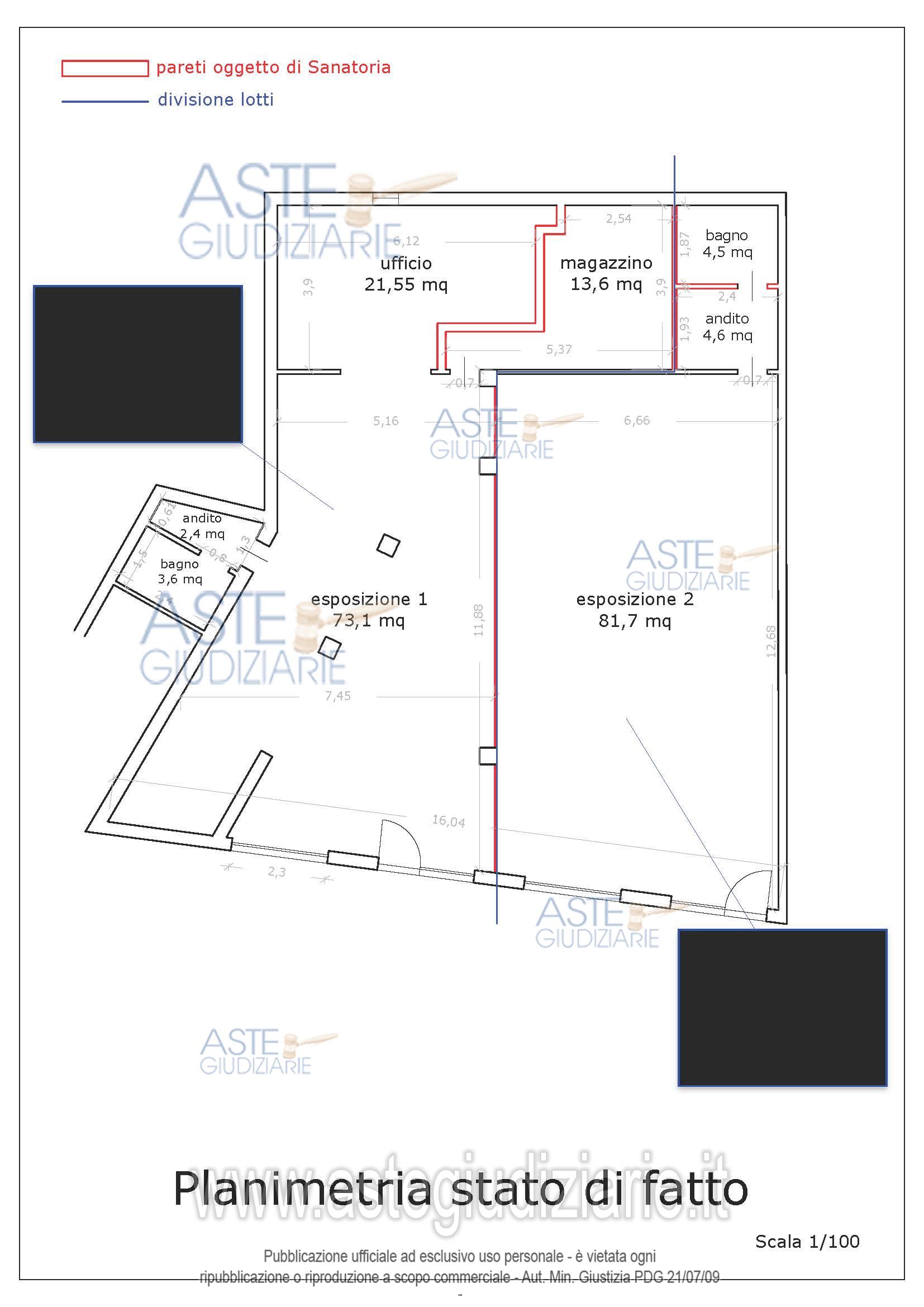
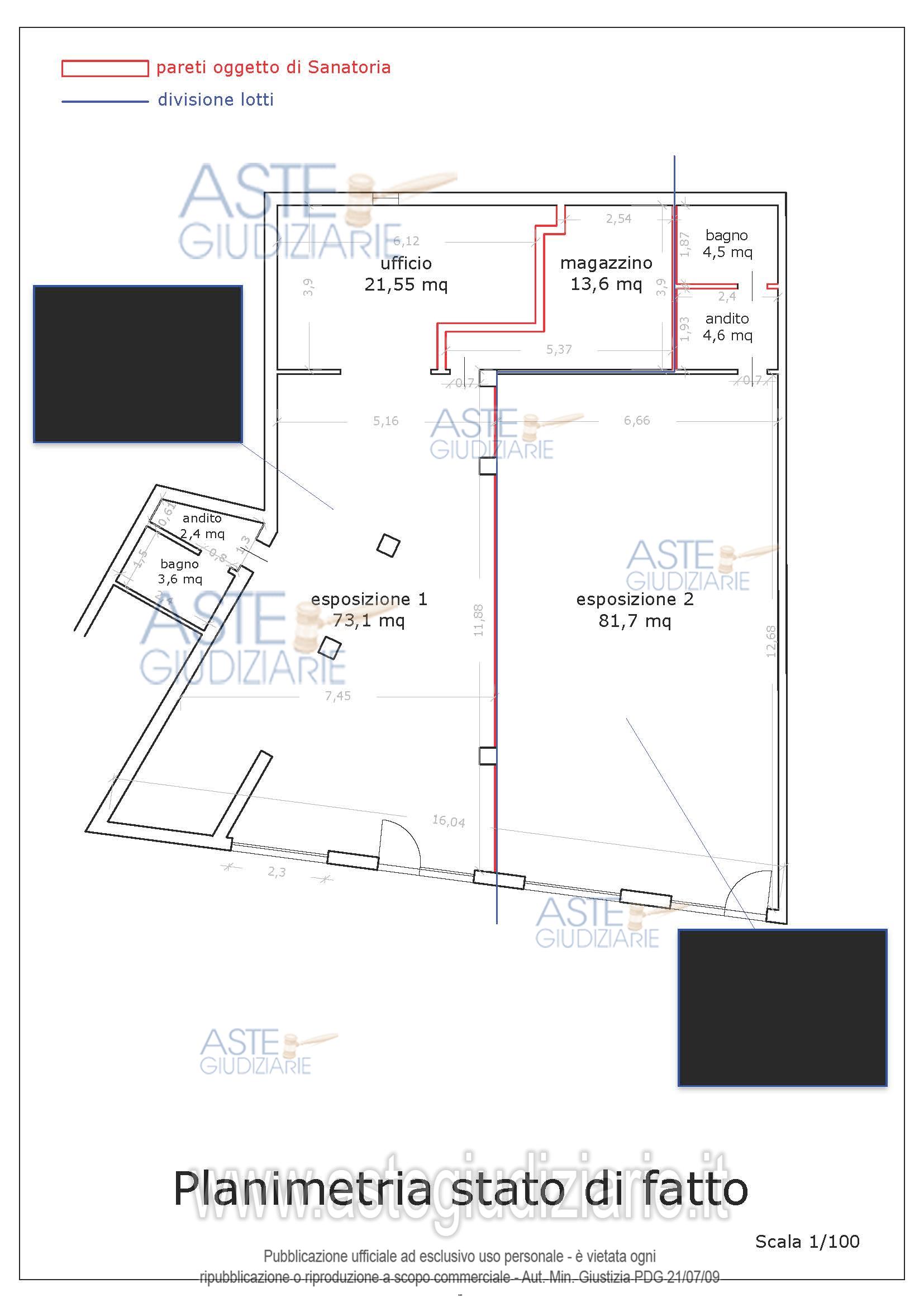
In Olbia, via Veronese 95/c - 95/d - 95/e - 97, intero del diritto di proprietà dell’ufficio al piano terra, composto da 6 ambienti, 2 adibiti ad esposizione, 1 ad uso ufficio, 2 ad uso bagno ed 1 a uso magazzino, il tutto per una superficie calpestabile di mq 205,15, distinto al N.C.E.U. fg. 30, part 8066, sub 36 cat. A/10. Il tutto come meglio descritto nell’elaborato peritale depositato in atti e visionabile sui siti indicati

Indirizzo
via Veronese 95/c - 95/d - 95/e - 97, Olbia (SS)


Codice asta
4326572


Lotto
1


Numero beni
1


Genere
Immobili


Categoria
Immobile commerciale


Valore di stima
-


Ufficio

In Olbia, via Veronese 95/c - 95/d - 95/e - 97, intero del diritto di proprietà dell’ufficio al piano terra, composto da 6 ambienti, 2 adibiti ad esposizione, 1 ad uso ufficio, 2 ad uso bagno ed 1 a uso magazzino, il tutto per una superficie calpestabile di mq 205,15, distinto al N.C.E.U. fg. 30, part 8066, sub 36 cat. A/10. Il tutto come meglio descritto nell’elaborato peritale depositato in atti e visionabile sui siti indicati.

Indirizzo
via Veronese 95/c - 95/d - 95/e - 97, Olbia (SS)


Piano
-


Disponibilità
-


Vani
-


Bagni
-


Metri quadri
205,15


Certificazione energetica
-


Dati catastali

Foglio:30, Sezione:U, Particella:8066, Subalterno:36


Data udienza
12/02/2026 ore 17:00


Tipo di vendita
Senza incanto


Modalità di vendita
Asincrona telematica


Luogo
N.A. -


Luogo presentazione offerte
-


Termine presentazione offerte
11/02/2026 ore 23:59


Prezzo base
€ 256.000,00


Offerta minima
€ 192.000,00


Rialzo minimo in caso di gara
€ 4.000,00


Deposito cauzionale
10% del prezzo offerto


Deposito in conto spese
-


Tribunale
Tempio Pausania

Tipo di procedura
Esecuzione immobiliare post legge 80

Ruolo
179/2016

Giudice
Palombella Antonia

Recapiti
-

Email
-

Delegato alla vendita
Dessì Giovanna maria
(Procede alle operazioni di vendita)

Recapiti
Tel. 0794138827

Email
giovannadessi29@gmail.com

Custode giudiziario
Ivg tempio pausania 
(Gestisce la visita del bene)

Recapiti
Tel. 079630505

Scheda COD. 4326572 - Pubblicata dal 22/12/2025

La presente scheda di vendita riporta integralmente informazioni e documenti pervenuti ufficialmente dal Ministero e dal professionista incaricato.


Pubblicazione autorizzata dall’Autorità competente, è vietata ogni ripubblicazione o riproduzione anche parziale


Ti interessa questa vendita?

Documentazione

Visualizza su mappa

Mappa geografica del bene

Storico delle vendite

Data venditaPrezzo base
10/07/2025€ 400.000,00
06/11/2025€ 320.000,00
12/02/2026€ 256.000,00

Punti di interesse

Fonte dati

Nel raggio di {{range}}Km

Loading...
  • {{ getIcon(poi.type) }} {{ poi.localized }}: {{poi.count}}
  • {{ getIcon(poi.type) }} {{ poi.localized }}: {{poi.count}}
Dati non disponibili