Astegiudiziarie.it è parte di Rete Aste Network

Accedi o registrati

Non sei ancora registrato?

Oppure

Accedi

Uffici e studi privati

Via Giovanni Porzio, 80143 Napoli NA, Italia - Isola G5, Napoli (NA)

€ 450.141,00

Offerta minima € 337.606,00


Codice A4209247

Lotto 17

Data udienza 17/12/2025 ore 11:00

Termine presentazione offerte 16/12/2025 ore 23:59

Uffici e studi privati

Via Giovanni Porzio, 80143 Napoli NA, Italia - Isola G5, Napoli (NA)

€ 450.141,00

Offerta minima € 337.606,00


Codice A4209247

Lotto 17

Data udienza 17/12/2025 ore 11:00

Termine presentazione offerte 16/12/2025 ore 23:59

Ti interessa questa vendita?

Documentazione

Visualizza su mappa

Mappa geografica del bene

Punti di interesse

Fonte dati

Nel raggio di {{range}}Km

Loading...
  • {{ getIcon(poi.type) }} {{ poi.localized }}: {{poi.count}}
  • {{ getIcon(poi.type) }} {{ poi.localized }}: {{poi.count}}
Dati non disponibili

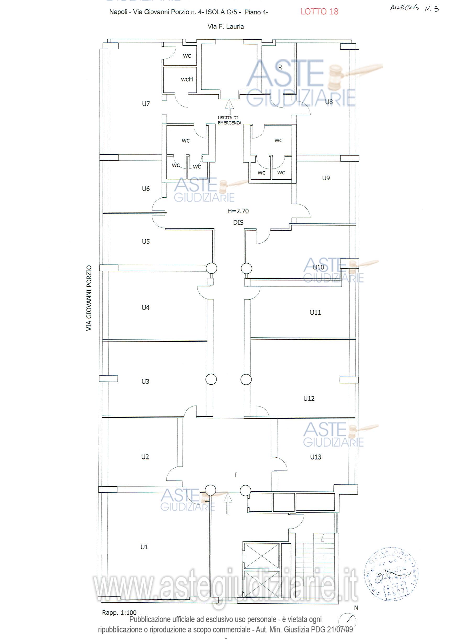
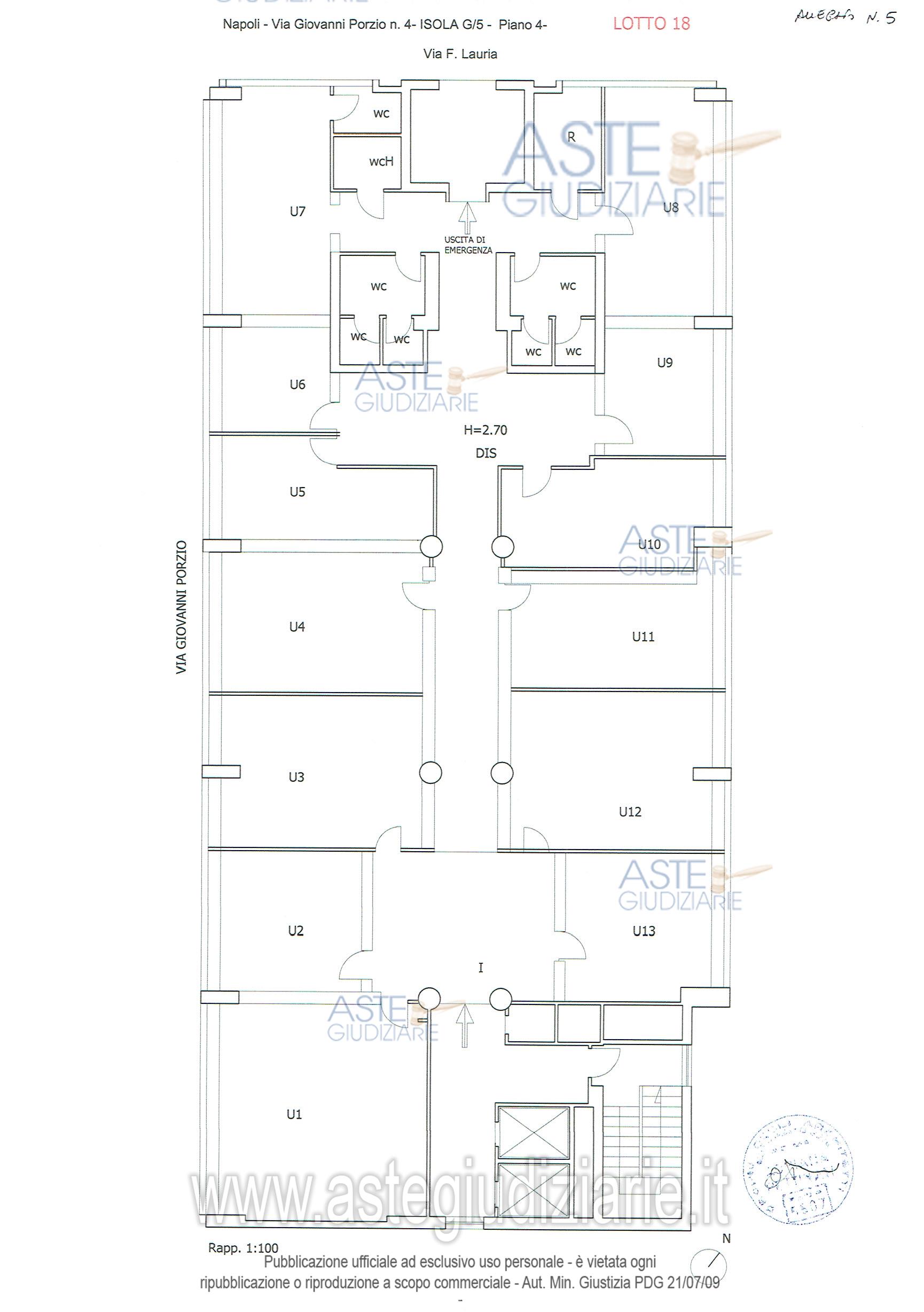
Comune di NAPOLI, Centro Direzionale, Via Giovanni Porzio n.4, Isola G5LOTTO n. 17: ufficio intero 3° piano, con accesso due ingressi a estremità di due scale, disimpegno, corridoio, 12 vani ufficio, 2 blocchi servizi, con antibagno, 2 servizi e 2 ripostigli, mq 492,71 c.a.

Indirizzo
Via Giovanni Porzio, 80143 Napoli NA, Italia - Isola G5, Napoli (NA)


Codice asta
4209247


Lotto
17


Numero beni
1


Genere
Immobili


Categoria
Immobile commerciale


Valore di stima
-


Uffici e studi privati

Comune di NAPOLI, Centro Direzionale, Via Giovanni Porzio n.4, Isola G5 LOTTO n. 17: ufficio intero 3° piano, con accesso due ingressi a estremità di due scale, disimpegno, corridoio, 12 vani ufficio, 2 blocchi servizi, con antibagno, 2 servizi e 2 ripostigli, mq 492,71 c.a. Occupato contratto locazione non opponibile.

Indirizzo
Via Giovanni Porzio, 80143 Napoli NA, Italia - Isola G5, Napoli (NA)


Piano
3


Disponibilità
OCCUPATO SENZA TITOLO


Vani
29,00


Bagni
-


Metri quadri
492,71


Certificazione energetica
-


Dati catastali

Foglio:9, Sezione:VIC, Particella:135, Subalterno:5


Data udienza
17/12/2025 ore 11:00


Tipo di vendita
Senza incanto


Modalità di vendita
Asincrona telematica


Luogo
-


Luogo presentazione offerte
-


Termine presentazione offerte
16/12/2025 ore 23:59


Prezzo base
€ 450.141,00


Offerta minima
€ 337.606,00


Rialzo minimo in caso di gara
€ 7.000,00


Deposito cauzionale
-


Deposito in conto spese
-


Tribunale
Napoli

Tipo di procedura
Esecuzione immobiliare post legge 80

Ruolo
201/2013

Delegato alla vendita
Zaccagnino Maria angela
(Procede alle operazioni di vendita)
(Gestisce la visita del bene)

Recapiti
Cell. 3387065811
Tel. 081422477

Scheda COD. 4209247 - Pubblicata dal 27/10/2025

La presente scheda di vendita riporta integralmente informazioni e documenti pervenuti ufficialmente dal Ministero e dal professionista incaricato.

Pubblicazione notarizzata su Blockchain


Pubblicazione autorizzata dall’Autorità competente, è vietata ogni ripubblicazione o riproduzione anche parziale


Ti interessa questa vendita?

Documentazione

Visualizza su mappa

Mappa geografica del bene

Storico delle vendite

Data venditaPrezzo base
27/07/2021€ 1.067.000,00
29/09/2023€ 800.250,00
23/02/2024€ 600.187,50
19/07/2024€ 450.141,00
17/12/2025€ 450.141,00

Punti di interesse

Fonte dati

Nel raggio di {{range}}Km

Loading...
  • {{ getIcon(poi.type) }} {{ poi.localized }}: {{poi.count}}
  • {{ getIcon(poi.type) }} {{ poi.localized }}: {{poi.count}}
Dati non disponibili