Astegiudiziarie.it è parte di Rete Aste Network

Accedi o registrati

Non sei ancora registrato?

Oppure

Accedi

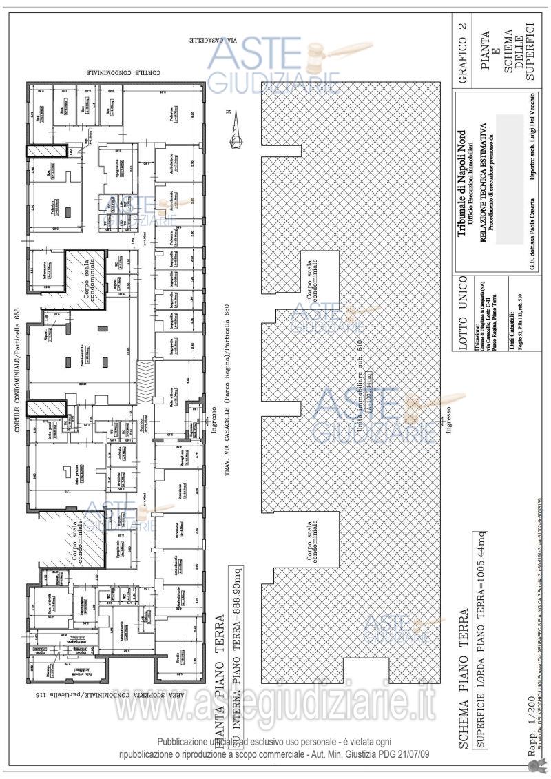
giudiziariagiudiziariaTribunale di Napoli nord in AversaESECUZIONI CIVILI IMMOBILIARIESPROPRIAZIONE IMMOBILIARE (CARTABIA)2572024Delegato alla venditaMarcoCasanovaCSNMRC70E02B963Bmarco.casanova1@virgilio.it3286773576truetrueGiudiceAntonellaPaonefalsefalse2407701LOTTO UNICOIMMOBILIIMMOBILE COMMERCIALEvia Casacelle80014Giugliano in CampaniaNapoliCampaniaItaliaPiena ed intera proprietà di immobile facente parte del complesso denominato Parco Regina ubicato in Giugliano in Campania (NA) alla via Casacelle.L’immobile in vendita è posto al piano terra ed è adibito a centro medico di riabilitazione3106806IMMOBILE COMMERCIALEUFFICI E STUDI PRIVATIvia Casacelle80014Giugliano in CampaniaNapoliCampaniaItaliaPiena ed intera proprietà di immobile facente parte del complesso denominato Parco Regina ubicato in Giugliano in Campania (NA) alla via Casacelle.L’immobile in vendita è posto al piano terra della scala G-H, ed è adibito a centro medico di riabilitazione. E’ composto da locale d’ingresso, sala d’attesa, sette locali adibiti ad ambulatorio, quattro locali ufficio, tre locali adibiti a palestra, cinque locali adibiti a studio fisioterapia, locale infermeria, due locali spogliatoio, due locali archivio, locale semiconvitto, sala pranzo, due sala attività, locale adibito a invio pasti, sette locali ripostiglio, dieci locali WC oltre locali corridoio e disimpegno, per una superficie utile di mq.888,90521135102026-06-17T12:00:00SENZA INCANTOASINCRONA TELEMATICAN.A.618.750,00464.063,002026-06-16T23:59:00gestore delle venditehttp://www.astetelematiche.ithttp://www.astetelematiche.itsito pubblicitahttps://www.asteannunci.ithttps://www.asteannunci.itsito pubblicitahttps://www.astalegale.nethttps://www.astalegale.netsito pubblicitahttps://www.astegiudiziarie.ithttps://www.astegiudiziarie.it2026-03-12AVVISO DI RETTIFICASi comunica che, come previsto nell'avviso, il rilancio minimo in caso di gara è pari ad Euro 10.000,002026-03-12

Uffici e studi privati

via Casacelle, Giugliano in Campania (NA)

€ 618.750,00

Offerta minima € 464.063,00


Codice A4331535

Lotto Lotto unico

Data udienza 17/06/2026 ore 12:00

Termine presentazione offerte 16/06/2026 ore 23:59

Uffici e studi privati

via Casacelle, Giugliano in Campania (NA)

€ 618.750,00

Offerta minima € 464.063,00


Codice A4331535

Lotto Lotto unico

Data udienza 17/06/2026 ore 12:00

Termine presentazione offerte 16/06/2026 ore 23:59

Ti interessa questa vendita?

Documentazione

Visualizza su mappa

Mappa geografica del bene

Punti di interesse

Fonte dati

Nel raggio di {{range}}Km

Loading...
  • {{ getIcon(poi.type) }} {{ poi.localized }}: {{poi.count}}
  • {{ getIcon(poi.type) }} {{ poi.localized }}: {{poi.count}}
Dati non disponibili

Piena ed intera proprietà di immobile facente parte del complesso denominato Parco Regina ubicato in Giugliano in Campania (NA) alla via Casacelle.L’immobile in vendita è posto al piano terra ed è adibito a centro medico di riabilitazione

Indirizzo
via Casacelle, Giugliano in Campania (NA)


Codice asta
4331535


Lotto
Lotto unico


Numero beni
1


Genere
Immobili


Categoria
Immobile commerciale


Valore di stima
-


Uffici e studi privati

Piena ed intera proprietà di immobile facente parte del complesso denominato Parco Regina ubicato in Giugliano in Campania (NA) alla via Casacelle.L’immobile in vendita è posto al piano terra della scala G-H, ed è adibito a centro medico di riabilitazione. E’ composto da locale d’ingresso, sala d’attesa, sette locali adibiti ad ambulatorio, quattro locali ufficio, tre locali adibiti a palestra, cinque locali adibiti a studio fisioterapia, locale infermeria, due locali spogliatoio, due locali archivio, locale semiconvitto, sala pranzo, due sala attività, locale adibito a invio pasti, sette locali ripostiglio, dieci locali WC oltre locali corridoio e disimpegno, per una superficie utile di mq.888,90

Indirizzo
via Casacelle, Giugliano in Campania (NA)


Piano
-


Disponibilità
-


Vani
38,00


Bagni
-


Metri quadri
888,00


Certificazione energetica
-


Dati catastali

Foglio:52, Particella:113, Subalterno:510


Data udienza
17/06/2026 ore 12:00


Tipo di vendita
Senza incanto


Modalità di vendita
Asincrona telematica


Luogo
N.A. -


Luogo presentazione offerte
-


Termine presentazione offerte
16/06/2026 ore 23:59


Prezzo base
€ 618.750,00


Offerta minima
€ 464.063,00


Rialzo minimo in caso di gara
€ 10.000,00


Deposito cauzionale
10% del prezzo offerto


Deposito in conto spese
-


Tribunale
Napoli Nord

Tipo di procedura
Espropriazione immobiliare (cartabia)

Ruolo
257/2024

Giudice
Paone Antonella

Recapiti
-

Email
-

Delegato alla vendita
Casanova Marco
(Procede alle operazioni di vendita)
(Gestisce la visita del bene)

Recapiti
Cell. 3286773576

Data
12/03/2026


Tipologia
AVVISO DI RETTIFICA


Descrizione
Si comunica che, come previsto nell'avviso, il rilancio minimo in caso di gara è pari ad Euro 10.000,00


Data
12/03/2026


Tipologia
AVVISO DI RETTIFICA


Descrizione
Si comunica che, come previsto nell'avviso, il rilancio minimo in caso di gara è pari ad Euro 10.000,00


Scheda COD. 4331535 - Pubblicata dal 13/04/2026

La presente scheda di vendita riporta integralmente informazioni e documenti pervenuti ufficialmente dal Ministero e dal professionista incaricato.


Pubblicazione autorizzata dall’Autorità competente, è vietata ogni ripubblicazione o riproduzione anche parziale


Ti interessa questa vendita?

Documentazione

Visualizza su mappa

Mappa geografica del bene

Storico delle vendite

Data venditaPrezzo base
22/10/2025€ 1.100.000,00
04/02/2026€ 825.000,00
17/06/2026€ 618.750,00

Punti di interesse

Fonte dati

Nel raggio di {{range}}Km

Loading...
  • {{ getIcon(poi.type) }} {{ poi.localized }}: {{poi.count}}
  • {{ getIcon(poi.type) }} {{ poi.localized }}: {{poi.count}}
Dati non disponibili