Astegiudiziarie.it è parte di Rete Aste Network

Accedi o registrati

Non sei ancora registrato?

Oppure

Accedi

Ufficio

Via Appia Vecchia, 4/6, 00040 Genzano di Roma RM, Italia, Genzano di Roma (RM)

€ 111.750,00

Offerta minima € 83.813,00


Codice A4313742

Lotto 4

Data udienza 16/02/2026 ore 11:00

Termine presentazione offerte 15/02/2026 ore 23:59

Ufficio

Via Appia Vecchia, 4/6, 00040 Genzano di Roma RM, Italia, Genzano di Roma (RM)

€ 111.750,00

Offerta minima € 83.813,00


Codice A4313742

Lotto 4

Data udienza 16/02/2026 ore 11:00

Termine presentazione offerte 15/02/2026 ore 23:59

Ti interessa questa vendita?

Documentazione

Visualizza su mappa

Mappa geografica del bene

Punti di interesse

Fonte dati

Nel raggio di {{range}}Km

Loading...
  • {{ getIcon(poi.type) }} {{ poi.localized }}: {{poi.count}}
  • {{ getIcon(poi.type) }} {{ poi.localized }}: {{poi.count}}
Dati non disponibili

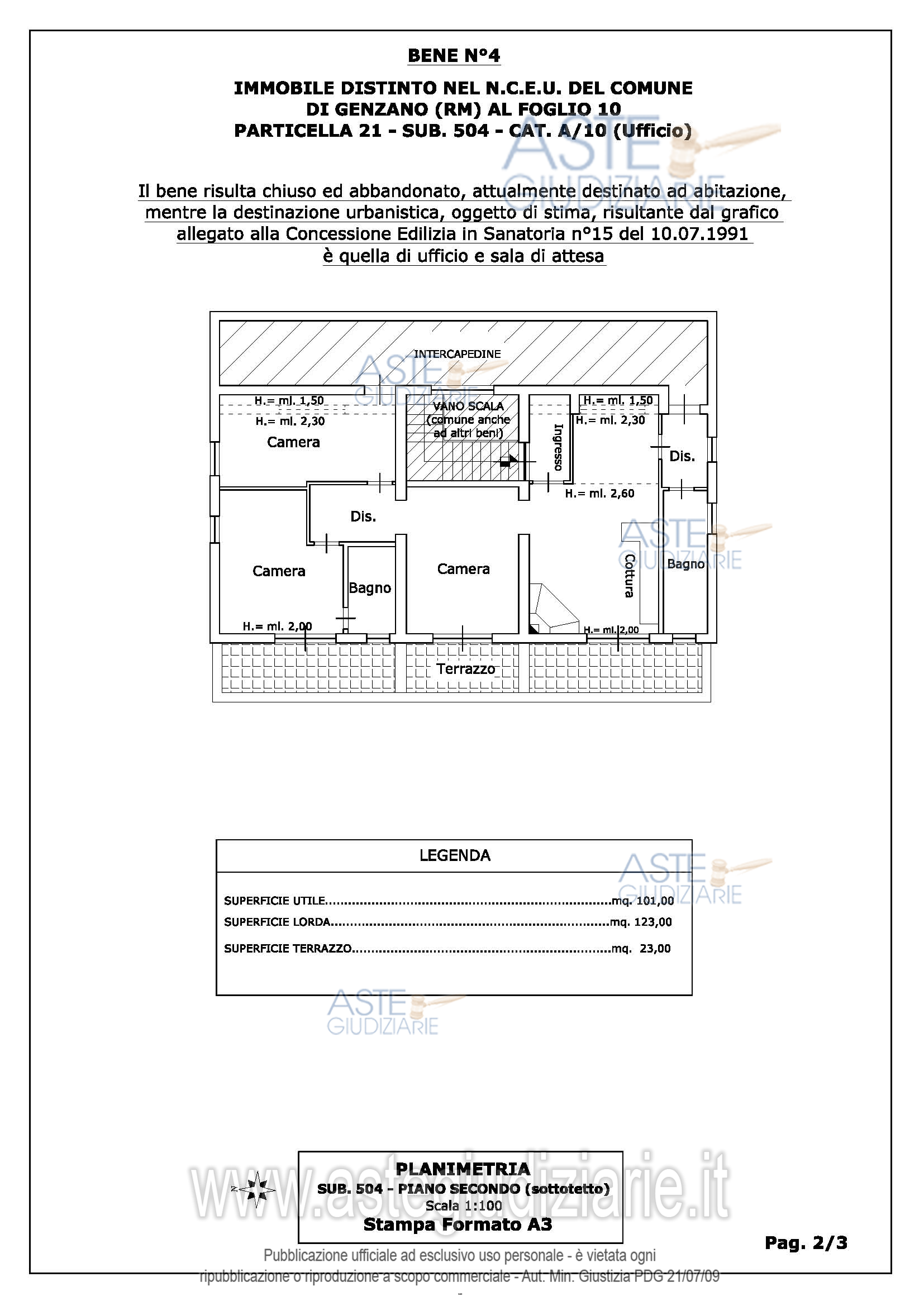
Lotto 4 - Ufficio ubicato a Genzano di Roma (RM) - Via Appia Vecchia (catastalmente civici nn°4 e 6), piano 2° (sottotetto). Trattasi di un immobile destinato ad uffici e sala di attesa, oltre due bagni ed un terrazzo a livello, sito al piano secondo (sottotetto) di un fabbricato di maggiore consistenza (magazzini, uffici, due abitazioni) al quale si giunge per mezzo di un vano scala privo di ascensore, che serve anche altre unità immobiliari, tutte oggetto della presente relazione peritale. Vedasi CTU

Indirizzo
Via Appia Vecchia, 4/6, 00040 Genzano di Roma RM, Italia, Genzano di Roma (RM)


Codice asta
4313742


Lotto
4


Numero beni
1


Genere
Immobili


Categoria
Immobile commerciale


Valore di stima
-


Ufficio

LOTTO 4 Bene N° 4 - Ufficio ubicato a Genzano di Roma (RM) - Via Appia Vecchia, snc (catastalmente civici nn°4 e 6), piano 2° (sottotetto). Trattasi di un immobile destinato ad uffici e sala di attesa, oltre due bagni ed un terrazzo a livello, sito al piano secondo (sottotetto) di un fabbricato di maggiore consistenza, al quale si giunge per mezzo di un vano scala privo di ascensore, che serve anche altre unità immobiliari, tutte oggetto della presente relazione peritale. Completa il presente bene, la proprietà indivisa in parti uguali tra tutti i sei lotti componenti la presente relazione di stima, sull'area esterna circostante composta dalla corte graffata al fabbricato, distinta al foglio 10 con la particella 21, oltre le particelle censite nel Nuovo Catasto Terreni dello stesso foglio, con i nn. 19, 163, 441 e 442. Attualmente l'intero piano è risultato chiuso ed abbandonato ed adibito ad abitazione, in quanto è presente sui luoghi anche una cucina ed un camino oltre arredi tipici da camera da letto. Le altezze del bene, proprio per la sua posizione sottotetto, risultano limitate e variano dalla minima di ml. 2,00 a quella massima di ml. 2,60. La destinazione urbanistica, oggetto della presente relazione di stima, è quella che risulta dal grafico allegato alla Concessione Edilizia in Sanatoria n°15 del 10.07.1991, rilasciata dal Comune di Genzano di Roma ai sensi della Legge n°47/85. L'immobile in oggetto si trova a ridosso di una principale via di comunicazione infra-comunale ed in prossimità del centro abitato del Comune di Genzano di Roma, ed è accessibile dalla corte indivisa a tutto il complesso immobiliare, destinata a parcheggio e stradina privata di collegamento interna, per mezzo di una scala esterna che conduce al vano scala che disimpegna anche gli altri beni immobili, facenti parte della presente relazione peritale. Identificato al catasto Fabbricati - Fg. 10, Part. 21, Sub. 504, Categoria A10 - Fg. 10, Part. 21, Categoria EU al catasto Terreni - Fg. 10, Part. 19, Qualità Bosco ceduo - Fg. 10, Part. 163, Qualità Oliveto - Fg. 10, Part. 441, Qualità Seminativo arborato - Fg. 10, Part. 442, Qualità Seminativo Arborato L'immobile ad uso uffici e sala di attesa viene posto in vendita per il diritto di Proprietà (1/1), mentre l’Ente Urbano ed i terreni per la proprietà indivisa in parti uguali tra tutti i lotti Destinazione urbanistica: VEDASI PERIZIA. Il C.T.U., fa presente che devono intendersi qui fedelmente riportati e trascritti, tutti i paragrafi costituenti la relazione peritale, che formano parte integrante del bando di vendita di ogni singolo lotto.

Indirizzo
Via Appia Vecchia, 4/6, 00040 Genzano di Roma RM, Italia, Genzano di Roma (RM)


Piano
2 SOTTOTETTO


Disponibilità
OCCST


Vani
5,00


Bagni
-


Metri quadri
129,90


Certificazione energetica
-


Dati catastali

Foglio:10, Particella:21, Subalterno:504


Data udienza
16/02/2026 ore 11:00


Tipo di vendita
Senza incanto


Modalità di vendita
Asincrona telematica


Luogo
N.A. -


Luogo presentazione offerte
-


Termine presentazione offerte
15/02/2026 ore 23:59


Prezzo base
€ 111.750,00


Offerta minima
€ 83.813,00


Rialzo minimo in caso di gara
€ 6.000,00


Deposito cauzionale
-


Deposito in conto spese
-


Tribunale
Velletri

Tipo di procedura
Esecuzione immobiliare post legge 80

Ruolo
249/2020

Delegato alla vendita
Valvo Cesare
(Procede alle operazioni di vendita)
(Gestisce la visita del bene)

Recapiti
Cell. 3358223498
Tel. 0698796836

Scheda COD. 4313742 - Pubblicata dal 12/11/2025

La presente scheda di vendita riporta integralmente informazioni e documenti pervenuti ufficialmente dal Ministero e dal professionista incaricato.


Pubblicazione autorizzata dall’Autorità competente, è vietata ogni ripubblicazione o riproduzione anche parziale


Ti interessa questa vendita?

Documentazione

Visualizza su mappa

Mappa geografica del bene

Storico delle vendite

Data venditaPrezzo base
16/12/2024€ 197.448,00
03/11/2025€ 149.000,00
16/02/2026€ 111.750,00

Punti di interesse

Fonte dati

Nel raggio di {{range}}Km

Loading...
  • {{ getIcon(poi.type) }} {{ poi.localized }}: {{poi.count}}
  • {{ getIcon(poi.type) }} {{ poi.localized }}: {{poi.count}}
Dati non disponibili