Astegiudiziarie.it è parte di Rete Aste Network

Accedi o registrati

Non sei ancora registrato?

Oppure

Accedi

Ufficio

Via Spagna, Collesalvetti (LI)

€ 1.324.350,00

Offerta minima -


Codice A4307550

Lotto 421

Data vendita 27/05/2026 ore 14:00

Termine presentazione offerte -

Ufficio

Via Spagna, Collesalvetti (LI)

€ 1.324.350,00

Offerta minima -


Codice A4307550

Lotto 421

Data Vendita 27/05/2026 ore 14:00

Termine presentazione offerte -

Ti interessa questa vendita?

Documentazione

Visualizza su mappa

Mappa geografica del bene

Punti di interesse

Fonte dati

Nel raggio di {{range}}Km

Loading...
  • {{ getIcon(poi.type) }} {{ poi.localized }}: {{poi.count}}
  • {{ getIcon(poi.type) }} {{ poi.localized }}: {{poi.count}}
Dati non disponibili

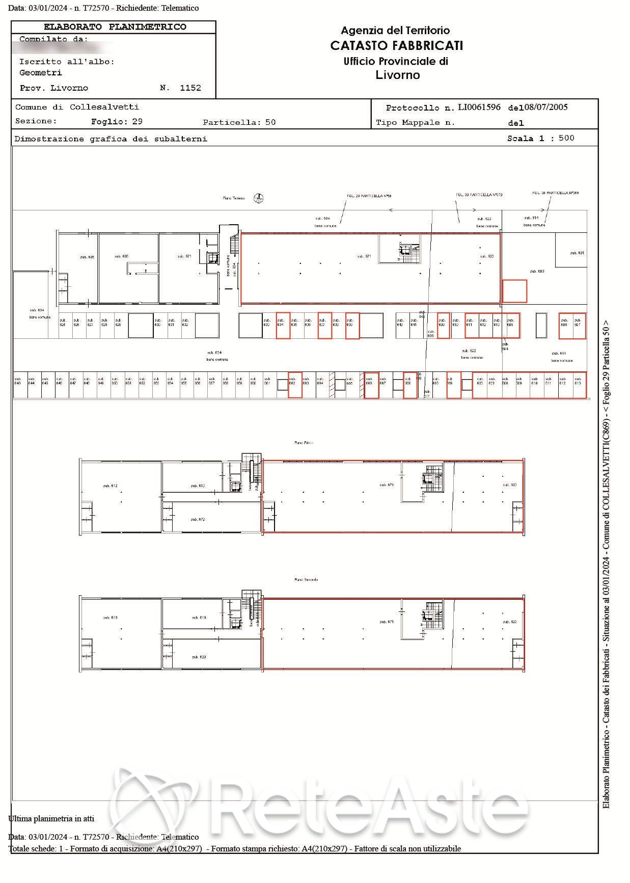
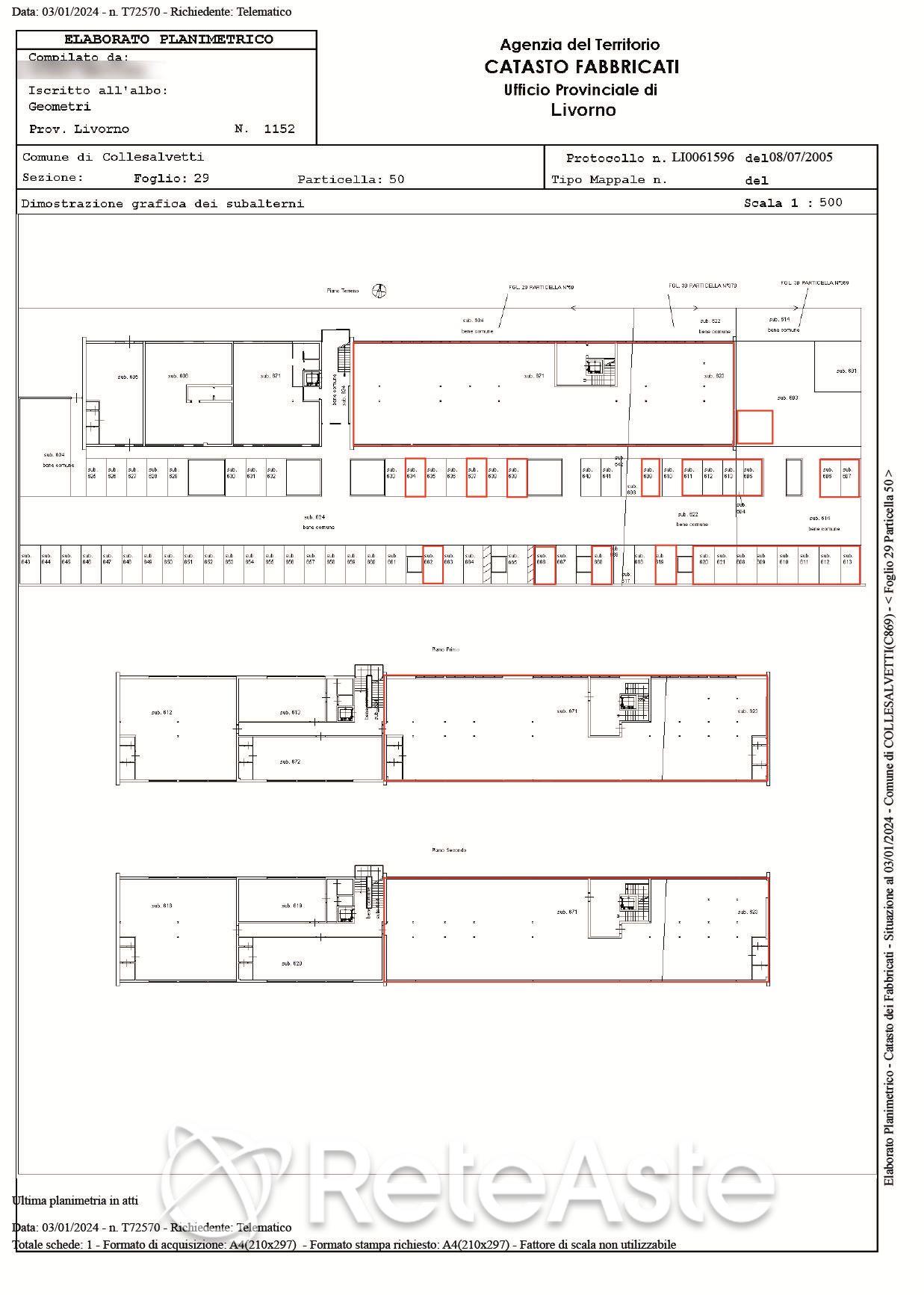
Immobile composto da 3 piani ad uso ufficio, ciascun piano risulta disimpegnato da ingresso composto da unico vano scale e ascensore. Al piano terreno sono presenti 3 locali bagni, 2 locali open space, 1 zona reception, 1 locale server, 1 sala riunioni, 4 uffici e 1 zona relax. Al piano primo sono presenti 2 open space, 1 ufficio, 1 aula training, 5 bagni e 3 anti-bagni. Al piano secondo sono presenti 2 open space, 1 ufficio, 1 archivio, 5 bagni e 3 antibagni. Sono compresi 22 posti auto di 11 metri quadri ciascuno e 1 locale deposito di metri quadri 16. Metri quadri totali 1943

Indirizzo
Via Spagna, Collesalvetti (LI)


Codice asta
4307550


Lotto
421


Numero beni
1


Genere
Immobili


Categoria
Immobile commerciale


Valore di stima
-


Ufficio

Immobile composto da 3 piani ad uso ufficio, ciascun piano risulta disimpegnato da ingresso composto da unico vano scale e ascensore. Al piano terreno sono presenti 3 locali bagni, 2 locali open space, 1 zona reception, 1 locale server, 1 sala riunioni, 4 uffici e 1 zona relax. Al piano primo sono presenti 2 open space, 1 ufficio, 1 aula training, 5 bagni e 3 anti-bagni. Al piano secondo sono presenti 2 open space, 1 ufficio, 1 archivio, 5 bagni e 3 antibagni. Sono compresi 22 posti auto di 11 metri quadri ciascuno e 1 locale deposito di metri quadri 16. Metri quadri totali 1943

Indirizzo
Via Spagna, Collesalvetti (LI)


Piano
-


Disponibilità
LIBERO


Vani
-


Bagni
-


Metri quadri
1943,00


Certificazione energetica
-


Data vendita
27/05/2026 ore 14:00


Tipo di vendita
Invito a manifestare interesse


Modalità di vendita
Presso il venditore


Luogo
-


Luogo presentazione offerte
-


Termine presentazione offerte
-


Prezzo base
€ 1.324.350,00


Offerta minima
-


Rialzo minimo in caso di gara
-


Deposito cauzionale
-


Deposito in conto spese
-


Tribunale
Livorno

Tipo di procedura
Ricorso per omologazione piano di ristrutturazione

Ruolo
1/2024

Soggetto specializzato alla vendita
Rete aste real estate 
(Procede alle operazioni di vendita)

Recapiti
-

Email
-

Scheda COD. 4307550 - Pubblicata dal 15/04/2026

La presente scheda di vendita riporta integralmente informazioni e documenti pervenuti ufficialmente dal Ministero e dal professionista incaricato.


Pubblicazione autorizzata dall’Autorità competente, è vietata ogni ripubblicazione o riproduzione anche parziale


Ti interessa questa vendita?

Documentazione

Visualizza su mappa

Mappa geografica del bene

Storico delle vendite

Data venditaPrezzo base
26/08/2024€ 1.635.000,00
01/10/2024€ 1.635.000,00
09/12/2024€ 1.635.000,00
11/02/2025€ 1.471.500,00
06/05/2025€ 1.471.500,00
23/07/2025€ 1.471.500,00
01/10/2025€ 1.471.500,00
25/11/2025€ 1.471.500,00
27/05/2026€ 1.324.350,00

Punti di interesse

Fonte dati

Nel raggio di {{range}}Km

Loading...
  • {{ getIcon(poi.type) }} {{ poi.localized }}: {{poi.count}}
  • {{ getIcon(poi.type) }} {{ poi.localized }}: {{poi.count}}
Dati non disponibili