Astegiudiziarie.it è parte di Rete Aste Network

Accedi o registrati

Non sei ancora registrato?

Oppure

Accedi

Terreno

Località Focolì, San Ferdinando (RC)

€ 44.707,20

Offerta minima € 33.530,40


Codice A4278031

Lotto 10

Data udienza 23/01/2026 ore 11:00

Termine presentazione offerte 22/01/2026 ore 12:00

Terreno

Località Focolì, San Ferdinando (RC)

€ 44.707,20

Offerta minima € 33.530,40


Codice A4278031

Lotto 10

Data udienza 23/01/2026 ore 11:00

Termine presentazione offerte 22/01/2026 ore 12:00

Ti interessa questa vendita?

Documentazione

Visualizza su mappa

Mappa geografica del bene

Punti di interesse

Fonte dati

Nel raggio di {{range}}Km

Loading...
  • {{ getIcon(poi.type) }} {{ poi.localized }}: {{poi.count}}
  • {{ getIcon(poi.type) }} {{ poi.localized }}: {{poi.count}}
Dati non disponibili

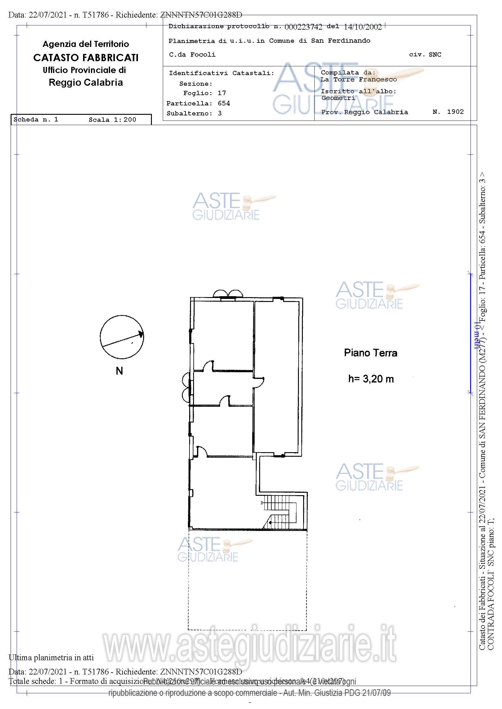
quota 1/2 della piena proprietà fondo rustico, con sovrastanti 2 fabbricati rurali, della sup. cat. di ha 2.89.44. Il terreno, coltivato ad agrumi, è in discrete condizioni con impianto di irrigazione. Il primo fabbricato, ad un piano f.t. della sup. lorda di circa 129 mq, è adibito a deposito. Il secondo fabbricato è formato da: un’abitazione al PT della sup. cat. di 84 mq, composta da 4 vani ed un wc; un deposito al PT della sup. cat. di 113 mq, costituito da 2 corpi di fabbrica; il lastrico solare al P1.

Indirizzo
Località Focolì, San Ferdinando (RC)


Codice asta
4278031


Lotto
10


Numero beni
1


Genere
Immobili


Categoria
Altra categoria


Valore di stima
-


Terreno

quota 1/2 della piena proprietà fondo rustico, con sovrastanti 2 fabbricati rurali, della sup. cat. di ha 2.89.44. Il terreno, coltivato ad agrumi, è in discrete condizioni con impianto di irrigazione. Il primo fabbricato, ad un piano f.t. della sup. lorda di circa 129 mq, è adibito a deposito. Il secondo fabbricato è formato da: un’abitazione al PT della sup. cat. di 84 mq, composta da 4 vani ed un wc; un deposito al PT della sup. cat. di 113 mq, costituito da 2 corpi di fabbrica; il lastrico solare al P1.

Indirizzo
Località Focolì, San Ferdinando (RC)


Piano
-


Disponibilità
LIBER


Vani
-


Bagni
-


Metri quadri
28944,00


Certificazione energetica
-


Dati catastali

Foglio:17, Sezione:T, Particella:918
Foglio:17, Sezione:F, Particella:653
Foglio:17, Sezione:F, Particella:654, Sub particella:sub 2-3-4


Data udienza
23/01/2026 ore 11:00


Tipo di vendita
Senza incanto


Modalità di vendita
Asincrona telematica


Luogo
N.A. -


Luogo presentazione offerte
-


Termine presentazione offerte
22/01/2026 ore 12:00


Prezzo base
€ 44.707,20


Offerta minima
€ 33.530,40


Rialzo minimo in caso di gara
€ 1.000,00


Deposito cauzionale
10% del prezzo offerto


Deposito in conto spese
-


Tribunale
Palmi

Tipo di procedura
Esecuzione immobiliare post legge 80

Ruolo
35/2000

Giudice
Caineri Marta

Recapiti
-

Email
-

Delegato alla vendita
Franchetti Roberto
(Procede alle operazioni di vendita)

Recapiti
Tel. 0966645074

Email
robertofranchetti@hotmail.com

Custode giudiziario
Franchetti Roberto
(Gestisce la visita del bene)

Recapiti
Tel. 0966645074

Scheda COD. 4278031 - Pubblicata dal 03/12/2025

La presente scheda di vendita riporta integralmente informazioni e documenti pervenuti ufficialmente dal Ministero e dal professionista incaricato.

Pubblicazione notarizzata su Blockchain


Pubblicazione autorizzata dall’Autorità competente, è vietata ogni ripubblicazione o riproduzione anche parziale


Ti interessa questa vendita?

Documentazione

Visualizza su mappa

Mappa geografica del bene

Storico delle vendite

Data venditaPrezzo base
28/07/2023€ 69.855,00
07/11/2023€ 55.884,00
19/01/2024€ 44.707,20
07/06/2024€ 44.707,20
22/07/2025€ 44.707,20
14/11/2025€ 44.707,20
23/01/2026€ 44.707,20

Punti di interesse

Fonte dati

Nel raggio di {{range}}Km

Loading...
  • {{ getIcon(poi.type) }} {{ poi.localized }}: {{poi.count}}
  • {{ getIcon(poi.type) }} {{ poi.localized }}: {{poi.count}}
Dati non disponibili