Astegiudiziarie.it è parte di Rete Aste Network

Accedi o registrati

Non sei ancora registrato?

Oppure

Accedi

Terreno

Contrada Santa Croce, Notaresco (TE)

€ 309.120,00

Offerta minima € 309.120,00


Codice A4330738

Lotto Unico

Data vendita 28/04/2026 ore 10:30

Termine presentazione offerte 27/04/2026 ore 10:30

Terreno

Contrada Santa Croce, Notaresco (TE)

€ 309.120,00

Offerta minima € 309.120,00


Codice A4330738

Lotto Unico

Data Vendita 28/04/2026 ore 10:30

Termine presentazione offerte 27/04/2026 ore 10:30

Vendita deserta

Ti interessa questa vendita?

Documentazione

Visualizza su mappa

Mappa geografica del bene

Punti di interesse

Fonte dati

Nel raggio di {{range}}Km

Loading...
  • {{ getIcon(poi.type) }} {{ poi.localized }}: {{poi.count}}
  • {{ getIcon(poi.type) }} {{ poi.localized }}: {{poi.count}}
Dati non disponibili

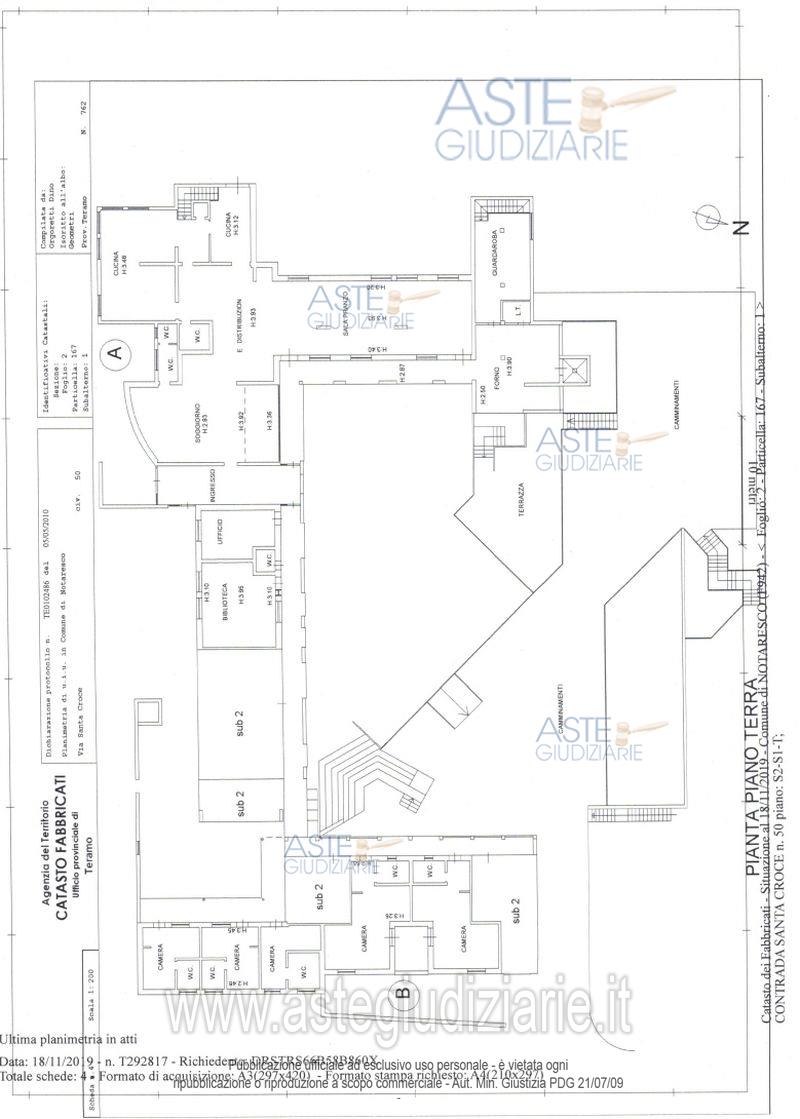
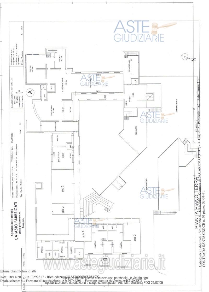
Diritti indivisi pari al 50% dell’intera proprietà del complesso immobiliare sito in agro di Notaresco Contrada Santa Croce, costituito da terreno della estensione catastale complessiva, coperta e scoperta, di Ha 11.79.70 il tutto al catasto terreni Fg. 1, p.lle 351 e 353 e Fg. 2 p.lle 9 - 12 - 25 - 65 – 66 - 67- 68 – 69 -70 – 86 -103 -105 -110 -138 -139 e sovrastanti fabbricati rurali distinti al catasto fabbricati Fg. 2 p.lla 166 categoria D/10 rendita euro 2.416,00 p.lla 167 sub 1 categoria D/10 rendita euro 7.244,00 e p.lla 167 sub 2 categoria D/10 rendita euro 874,00.

Indirizzo
Contrada Santa Croce, Notaresco (TE)


Codice asta
4330738


Lotto
Unico


Numero beni
1


Genere
Immobili


Categoria
Altra categoria


Valore di stima
€ 483.000,00


Terreno

Diritti indivisi pari al 50% dell’intera proprietà del complesso immobiliare sito in agro di Notaresco Contrada Santa Croce, costituito da terreno della estensione catastale complessiva, coperta e scoperta, di Ha 11.79.70 il tutto al catasto terreni Fg. 1, p.lle 351 e 353 e Fg. 2 p.lle 9 - 12 - 25 - 65 – 66 - 67- 68 – 69 -70 – 86 -103 -105 -110 -138 -139 e sovrastanti fabbricati rurali distinti al catasto fabbricati Fg. 2 p.lla 166 categoria D/10 rendita € 2.416,00 p.lla 167 sub 1 categoria D/10 rendita € 7.244,00 e p.lla 167 sub 2 categoria D/10 rendita € 874,00.

Indirizzo
Contrada Santa Croce, Notaresco (TE)


Piano
-


Disponibilità
-


Vani
-


Bagni
-


Metri quadri
117970,00


Certificazione energetica
-


Data vendita
28/04/2026 ore 10:30


Tipo di vendita
Senza incanto


Modalità di vendita
Presso il venditore


Luogo
-


Luogo presentazione offerte
-


Termine presentazione offerte
27/04/2026 ore 10:30


Prezzo base
€ 309.120,00


Offerta minima
€ 309.120,00


Rialzo minimo in caso di gara
€ 20.000,00


Deposito cauzionale
10% del prezzo offerto


Deposito in conto spese
-


Ente
Ministero delle Imprese e del Made in Italy

Tipo di procedura
Scioglimento per atto d'autorità

Ruolo
161/2018

Commissario liquidatore
De sanctis Mario
(Procede alle operazioni di vendita)
(Gestisce la visita del bene)

Recapiti
Cell. 3382653799
Tel. 0858041577

Email

Scheda COD. 4330738 - Pubblicata dal 23/02/2026

La presente scheda di vendita riporta integralmente informazioni e documenti pervenuti ufficialmente dal Ministero e dal professionista incaricato.

Pubblicazione notarizzata su Blockchain


Pubblicazione autorizzata dall’Autorità competente, è vietata ogni ripubblicazione o riproduzione anche parziale


Ti interessa questa vendita?

Documentazione

Visualizza su mappa

Mappa geografica del bene

Storico delle vendite

Data venditaPrezzo base
10/09/2025€ 483.000,00
04/12/2025€ 386.400,00
28/04/2026€ 309.120,00

Punti di interesse

Fonte dati

Nel raggio di {{range}}Km

Loading...
  • {{ getIcon(poi.type) }} {{ poi.localized }}: {{poi.count}}
  • {{ getIcon(poi.type) }} {{ poi.localized }}: {{poi.count}}
Dati non disponibili