Astegiudiziarie.it è parte di Rete Aste Network

Accedi o registrati

Non sei ancora registrato?

Oppure

Accedi

giudiziariagiudiziariaTribunale di ANCONAPROCEDURE CONCORSUALIFALLIMENTARE (NUOVO RITO)382019Soggetto specializzato alla venditaAste giudiziarie inlinea s.p.a.MNTGLC63E08E625Hvendite@astegiudiziarie.ittruetrueCuratoreCamilloCatana vallemanifalsefalseGiudiceGiulianaFilippellofalsefalseCuratorePaoloBortoluzzifalsefalse24168245IMMOBILIALTRA CATEGORIAVia Marconi, 86Falconara MarittimaAnconaMarcheItaliaQuota del 31,30% di aree cortilizie condominiali con destinazione a parcheggio privato di uso pubblico e a viabilità interna.3117551ALTRA CATEGORIATERRENOVia Marconi, 86Falconara MarittimaAnconaMarcheItaliaQuota del 31,30% di aree cortilizie condominiali con destinazione a parcheggio privato di uso pubblico e a viabilità interna.LIBER28032026-06-10T10:00:00SENZA INCANTOASINCRONA TELEMATICAN.A.5.904,904.428,671.000,002026-06-09T12:00:00gestore delle venditehttp://www.astetelematiche.ithttp://www.astetelematiche.itsito pubblicitahttps://www.astegiudiziarie.ithttps://www.astegiudiziarie.it2026-03-31

Terreno

Via Marconi, 86, Falconara Marittima (AN)

€ 5.904,90

Offerta minima € 4.428,67


Codice A4247677

Lotto 5

Data udienza 10/06/2026 ore 10:00

Termine presentazione offerte 09/06/2026 ore 12:00

Terreno

Via Marconi, 86, Falconara Marittima (AN)

€ 5.904,90

Offerta minima € 4.428,67


Codice A4247677

Lotto 5

Data udienza 10/06/2026 ore 10:00

Termine presentazione offerte 09/06/2026 ore 12:00

Ti interessa questa vendita?

Documentazione

Visualizza su mappa

Mappa geografica del bene

Punti di interesse

Fonte dati

Nel raggio di {{range}}Km

Loading...
  • {{ getIcon(poi.type) }} {{ poi.localized }}: {{poi.count}}
  • {{ getIcon(poi.type) }} {{ poi.localized }}: {{poi.count}}
Dati non disponibili

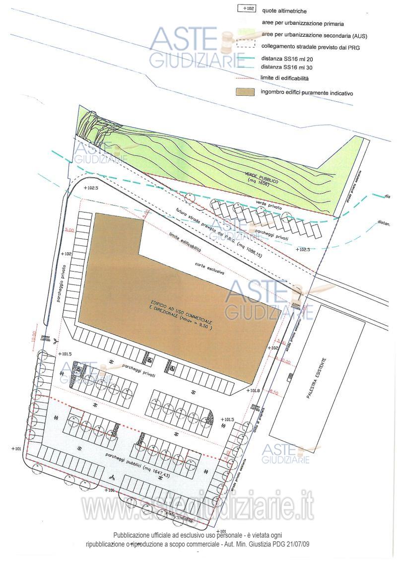
Quota del 31,30% di aree cortilizie condominiali con destinazione a parcheggio privato di uso pubblico e a viabilità interna.

Indirizzo
Via Marconi, 86, Falconara Marittima (AN)


Codice asta
4247677


Lotto
5


Numero beni
1


Genere
Immobili


Categoria
Altra categoria


Valore di stima
-


Terreno

Quota del 31,30% di aree cortilizie condominiali con destinazione a parcheggio privato di uso pubblico e a viabilità interna.

Indirizzo
Via Marconi, 86, Falconara Marittima (AN)


Piano
-


Disponibilità
LIBERO


Vani
-


Bagni
-


Metri quadri
2803,00


Certificazione energetica
-


Data udienza
10/06/2026 ore 10:00


Tipo di vendita
Senza incanto


Modalità di vendita
Asincrona telematica


Luogo
N.A. -


Luogo presentazione offerte
-


Termine presentazione offerte
09/06/2026 ore 12:00


Prezzo base
€ 5.904,90


Offerta minima
€ 4.428,67


Rialzo minimo in caso di gara
€ 1.000,00


Deposito cauzionale
10% del prezzo offerto


Deposito in conto spese
-


Tribunale
Ancona

Tipo di procedura
Fallimentare (nuovo rito)

Ruolo
38/2019

Giudice
Filippello Giuliana

Recapiti
-

Email
-

Soggetto specializzato alla vendita
Aste giudiziarie inlinea s.p.a. 
(Procede alle operazioni di vendita)
(Gestisce la visita del bene)

Recapiti
-

Curatore
Catana vallemani Camillo

Recapiti
-

Email
-

Curatore
Bortoluzzi Paolo

Recapiti
-

Email
-

-

Scheda COD. 4247677 - Pubblicata dal 31/03/2026

La presente scheda di vendita riporta integralmente informazioni e documenti pervenuti ufficialmente dal Ministero e dal professionista incaricato.


Pubblicazione autorizzata dall’Autorità competente, è vietata ogni ripubblicazione o riproduzione anche parziale


Ti interessa questa vendita?

Documentazione

Visualizza su mappa

Mappa geografica del bene

Storico delle vendite

Data venditaPrezzo base
19/07/2022€ 12.500,00
23/11/2022€ 10.000,00
14/06/2023€ 9.000,00
08/05/2024€ 8.100,00
23/10/2024€ 7.290,00
09/07/2025€ 6.561,00
10/06/2026€ 5.904,90

Punti di interesse

Fonte dati

Nel raggio di {{range}}Km

Loading...
  • {{ getIcon(poi.type) }} {{ poi.localized }}: {{poi.count}}
  • {{ getIcon(poi.type) }} {{ poi.localized }}: {{poi.count}}
Dati non disponibili