Astegiudiziarie.it è parte di Rete Aste Network

Accedi o registrati

Non sei ancora registrato?

Oppure

Accedi

giudiziariagiudiziariaTribunale di BARIPROCEDURE CONCORSUALIFALLIMENTARE (NUOVO RITO)612010CuratoreAngelaBarbuto falsefalseGiudice paolaCesaronifalsefalseSoggetto specializzato alla venditaAste giudiziarie inlinea spaMNTGLC63E08E625Hvisite@astegiudiziarie.ittruetrue2345412LOTTO UNICOIMMOBILIALTRA CATEGORIAVia Molfetta, 52BitontoBariPugliaItaliaDiritti di proprietà su lotto di terreno edificatorio in zona P.I.P.3030440ALTRA CATEGORIALOTTO EDIFICABILEVia Molfetta, 52BitontoBariPugliaItaliaDiritti di proprietà su lotto di terreno edificatorio in zona P.I.P. individuato al n° 52 per un estensione complessiva di mq 1.016.1.0162026-01-21T11:00:00SENZA INCANTOASINCRONA TELEMATICAN.A.28.966,0921.724,572.060,002026-01-20T12:00:00gestore delle venditehttp://www.astetelematiche.ithttp://www.astetelematiche.itsito pubblicitahttps://www.astegiudiziarie.ithttps://www.astegiudiziarie.it2025-10-31

Lotto edificabile

Via Molfetta, 52, Bitonto (BA)

€ 28.966,09

Offerta minima € 21.724,57


Lotto edificabile

Via Molfetta, 52, Bitonto (BA)

€ 28.966,09

Offerta minima € 21.724,57


Codice A4317811

Lotto Lotto unico

Data udienza 21/01/2026 ore 11:00

Termine presentazione offerte 20/01/2026 ore 12:00

Ti interessa questa vendita?

Visualizza su mappa

Mappa geografica del bene

Punti di interesse

Fonte dati

Nel raggio di {{range}}Km

Loading...
  • {{ getIcon(poi.type) }} {{ poi.localized }}: {{poi.count}}
  • {{ getIcon(poi.type) }} {{ poi.localized }}: {{poi.count}}
Dati non disponibili

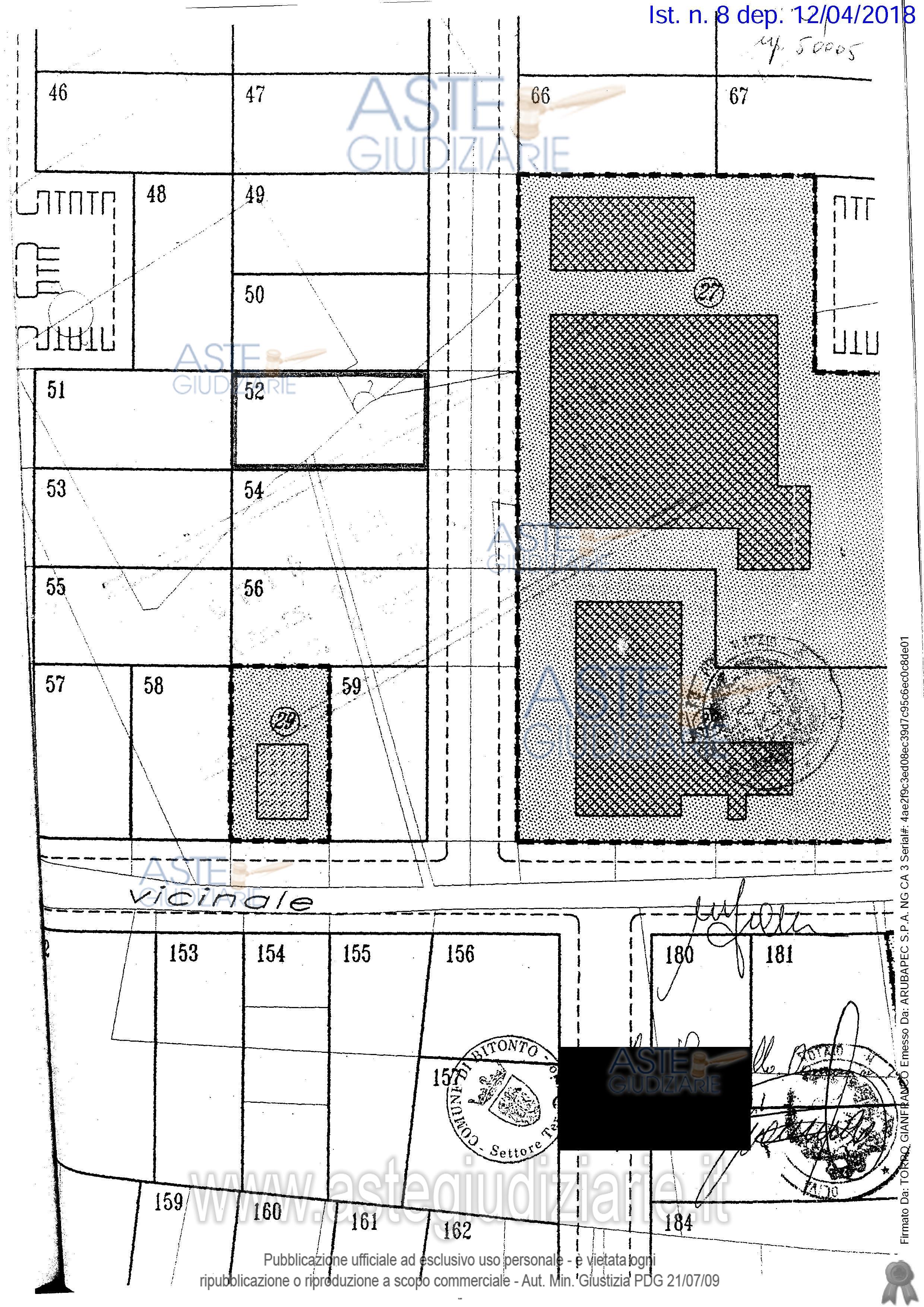
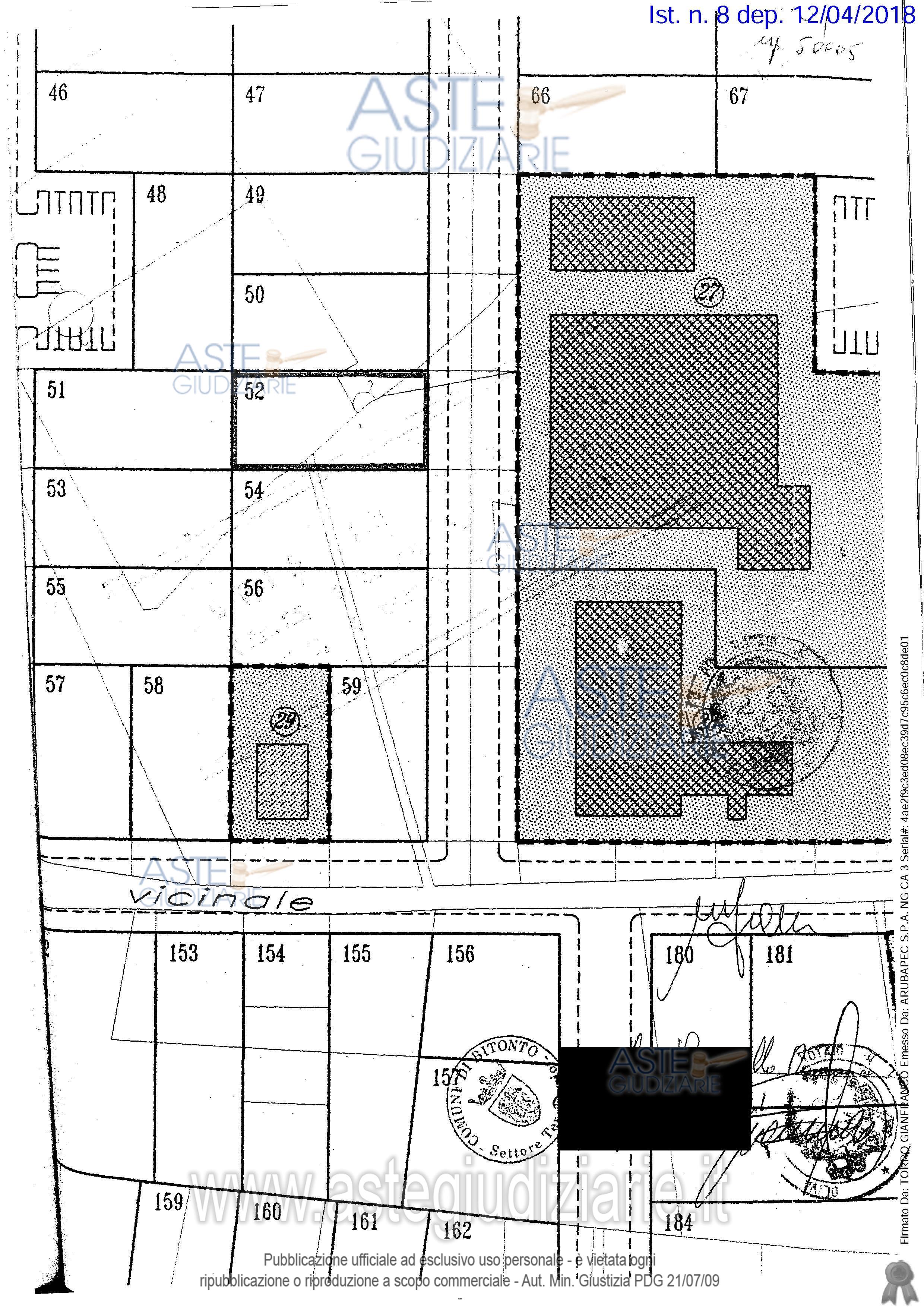
Diritti di proprietà su lotto di terreno edificatorio in zona P.I.P. individuato al n.52 per un’estensione complessiva di mq 1.016.

Indirizzo
Via Molfetta, 52, Bitonto (BA)


Codice asta
4317811


Lotto
Lotto unico


Numero beni
1


Genere
Immobili


Categoria
Altra categoria


Valore di stima
-


Lotto edificabile

Diritti di proprietà su lotto di terreno edificatorio in zona P.I.P. individuato al n° 52 per un estensione complessiva di mq 1.016.

Indirizzo
Via Molfetta, 52, Bitonto (BA)


Piano
-


Disponibilità
-


Vani
-


Bagni
-


Metri quadri
1016,00


Certificazione energetica
-


Data udienza
21/01/2026 ore 11:00


Tipo di vendita
Senza incanto


Modalità di vendita
Asincrona telematica


Luogo
N.A. -


Luogo presentazione offerte
-


Termine presentazione offerte
20/01/2026 ore 12:00


Prezzo base
€ 28.966,09


Offerta minima
€ 21.724,57


Rialzo minimo in caso di gara
€ 2.060,00


Deposito cauzionale
10% del prezzo offerto


Deposito in conto spese
-


Tribunale
Bari

Tipo di procedura
Fallimentare (nuovo rito)

Ruolo
61/2010

Giudice
Cesaroni  paola

Recapiti
-

Email
-

Soggetto specializzato alla vendita
Aste giudiziarie inlinea spa 
(Procede alle operazioni di vendita)
(Gestisce la visita del bene)

Recapiti
-

Professionista delegato
Barbuto Angela

Recapiti
Tel. 080 5739678

Email
-

Curatore
Barbuto  Angela

Recapiti
-

Email
-

Scheda COD. 4317811 - Pubblicata dal 31/10/2025

La presente scheda di vendita riporta integralmente informazioni e documenti pervenuti ufficialmente dal Ministero e dal professionista incaricato.


Pubblicazione autorizzata dall’Autorità competente, è vietata ogni ripubblicazione o riproduzione anche parziale


Ti interessa questa vendita?

Visualizza su mappa

Mappa geografica del bene

Storico delle vendite

Data venditaPrezzo base
26/02/2025€ 68.660,36
28/05/2025€ 51.495,27
17/09/2025€ 38.621,45
21/01/2026€ 28.966,09

Punti di interesse

Fonte dati

Nel raggio di {{range}}Km

Loading...
  • {{ getIcon(poi.type) }} {{ poi.localized }}: {{poi.count}}
  • {{ getIcon(poi.type) }} {{ poi.localized }}: {{poi.count}}
Dati non disponibili