Astegiudiziarie.it è parte di Rete Aste Network

Accedi o registrati

Non sei ancora registrato?

Oppure

Accedi

Terreno

CONTRADA CANNATELLA, Castronovo di Sicilia (PA)

€ 20.402,72

Offerta minima € 15.302,04


Codice A4322775

Lotto Lotto unico

Data udienza 11/06/2026 ore 10:00

Termine presentazione offerte 10/06/2026 ore 17:00

Terreno

CONTRADA CANNATELLA, Castronovo di Sicilia (PA)

€ 20.402,72

Offerta minima € 15.302,04


Codice A4322775

Lotto Lotto unico

Data udienza 11/06/2026 ore 10:00

Termine presentazione offerte 10/06/2026 ore 17:00

Ti interessa questa vendita?

Documentazione

Visualizza su mappa

Mappa geografica del bene

Punti di interesse

Fonte dati

Nel raggio di {{range}}Km

Loading...
  • {{ getIcon(poi.type) }} {{ poi.localized }}: {{poi.count}}
  • {{ getIcon(poi.type) }} {{ poi.localized }}: {{poi.count}}
Dati non disponibili

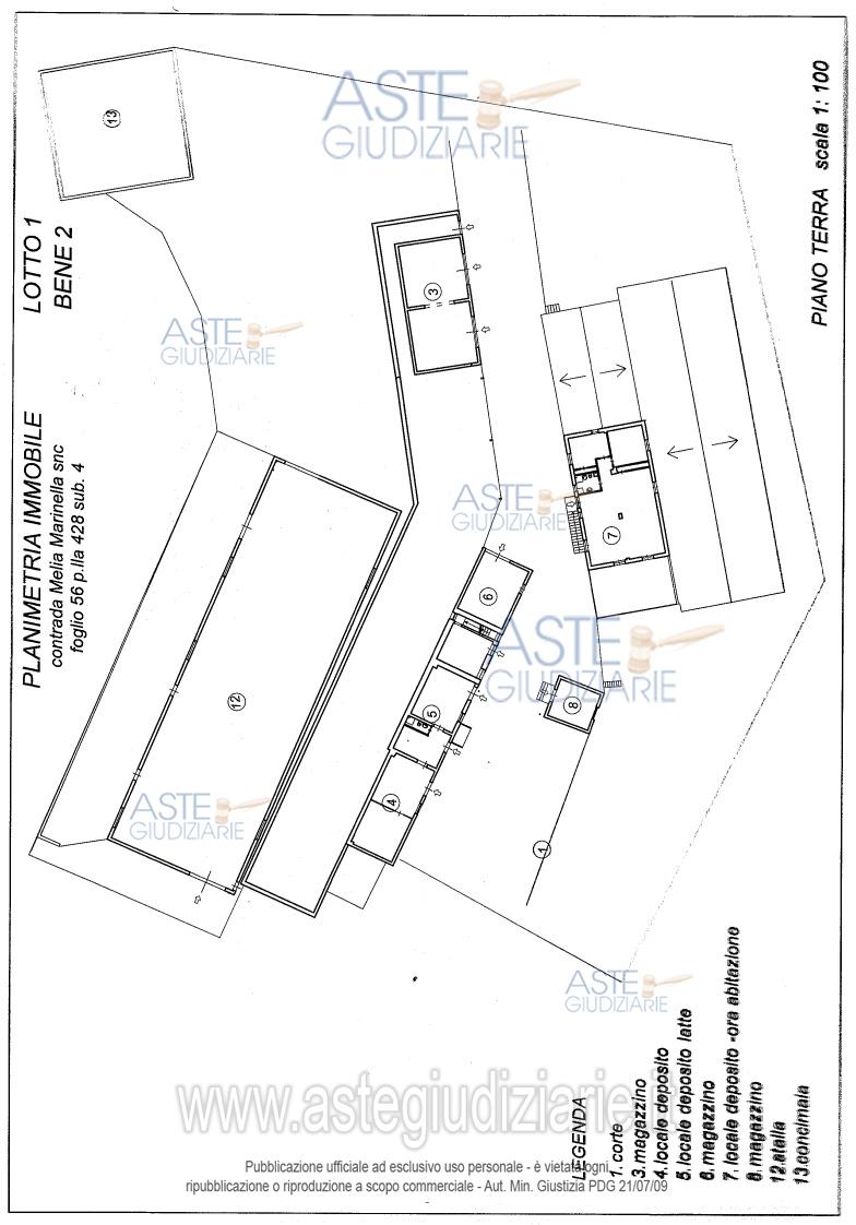
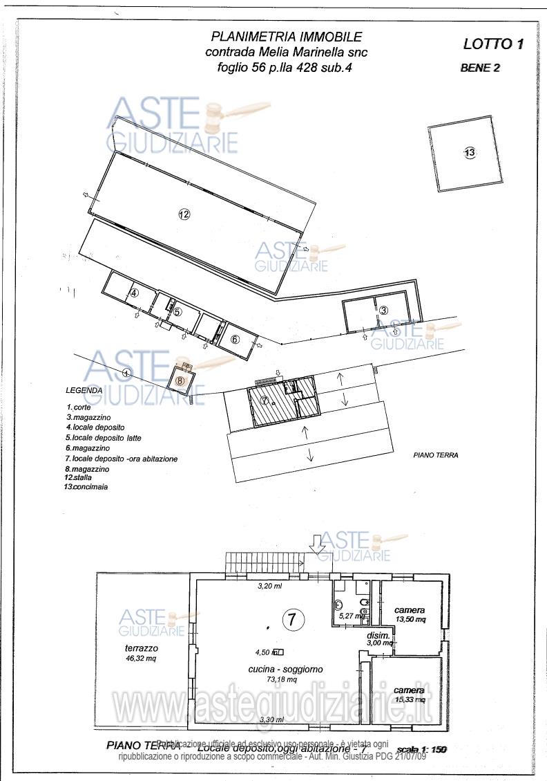
Il LOTTO 2 è formato dal BENE 5 costituito da Terreno ubicato a Castronovo di Sicilia ( Pa ), contrada Cannatella, censito al N.C.T. del Comune di Castronovo di Sicilia al foglio 56, p.lla 94, classe colturale catastale di tipo SEMINATIVO, così come allo stato attuale, ha una forma trapezoidale ed è parzialmente recintato, superficie 40.750,00 mq, reddito dominicale € 168,36, reddito agrario € 63,14.Si fa rinvio alla Perizia di Stima per eventuali oneri e pesi e per la regolarità edilizia/urbanistica.

Indirizzo
CONTRADA CANNATELLA, Castronovo di Sicilia (PA)


Codice asta
4322775


Lotto
Lotto unico


Numero beni
1


Genere
Immobili


Categoria
Altra categoria


Valore di stima
-


Terreno

Il LOTTO 2 è formato dal BENE 5 costituito da Terreno ubicato a Castronovo di Sicilia ( Pa ), contrada Cannatella, censito al N.C.T. del Comune di Castronovo di Sicilia al foglio 56, p.lla 94, classe colturale catastale di tipo SEMINATIVO, così come allo stato attuale, ha una forma trapezoidale ed è parzialmente recintato, superficie 40.750,00 mq, reddito dominicale € 168,36, reddito agrario € 63,14. Si fa espresso rinvio alla Perizia di Stima per ciò che concerne l'esistenza di eventuali oneri e pesi a qualsiasi titolo gravanti, nonché in ordine alla regolarità edilizia / urbanistica.

Indirizzo
CONTRADA CANNATELLA, Castronovo di Sicilia (PA)


Piano
-


Disponibilità
OCCUPATO


Vani
-


Bagni
-


Metri quadri
-


Certificazione energetica
-


Dati catastali

Foglio:56, Particella:94


Data udienza
11/06/2026 ore 10:00


Tipo di vendita
Senza incanto


Modalità di vendita
Sincrona telematica


Luogo
N.A. -


Luogo presentazione offerte
-


Termine presentazione offerte
10/06/2026 ore 17:00


Prezzo base
€ 20.402,72


Offerta minima
€ 15.302,04


Rialzo minimo in caso di gara
€ 1.500,00


Deposito cauzionale
-


Deposito in conto spese
-


Tribunale
Termini Imerese

Tipo di procedura
Espropriazione immobiliare (cartabia)

Ruolo
75/2023

Giudice
Balsano 

Recapiti
-

Email
-

Delegato alla vendita
Centineo Luisa
(Procede alle operazioni di vendita)
(Gestisce la visita del bene)

Recapiti
Cell. 3280241353

Scheda COD. 4322775 - Pubblicata dal 09/04/2026

La presente scheda di vendita riporta integralmente informazioni e documenti pervenuti ufficialmente dal Ministero e dal professionista incaricato.


Pubblicazione autorizzata dall’Autorità competente, è vietata ogni ripubblicazione o riproduzione anche parziale


Ti interessa questa vendita?

Documentazione

Visualizza su mappa

Mappa geografica del bene

Storico delle vendite

Data venditaPrezzo base
02/05/2025€ 32.004,28
23/12/2025€ 27.203,63
11/06/2026€ 20.402,72

Punti di interesse

Fonte dati

Nel raggio di {{range}}Km

Loading...
  • {{ getIcon(poi.type) }} {{ poi.localized }}: {{poi.count}}
  • {{ getIcon(poi.type) }} {{ poi.localized }}: {{poi.count}}
Dati non disponibili