Astegiudiziarie.it è parte di Rete Aste Network

Accedi o registrati

Non sei ancora registrato?

Oppure

Accedi

Negozio

Via Leopardi, Cecina (LI)

€ 227.286,00

Offerta minima -


Codice A4302580

Lotto 411

Data vendita 27/05/2026 ore 14:00

Termine presentazione offerte -

Negozio

Via Leopardi, Cecina (LI)

€ 227.286,00

Offerta minima -


Codice A4302580

Lotto 411

Data Vendita 27/05/2026 ore 14:00

Termine presentazione offerte -

Ti interessa questa vendita?

Documentazione

Visualizza su mappa

Mappa geografica del bene

Punti di interesse

Fonte dati

Nel raggio di {{range}}Km

Loading...
  • {{ getIcon(poi.type) }} {{ poi.localized }}: {{poi.count}}
  • {{ getIcon(poi.type) }} {{ poi.localized }}: {{poi.count}}
Dati non disponibili

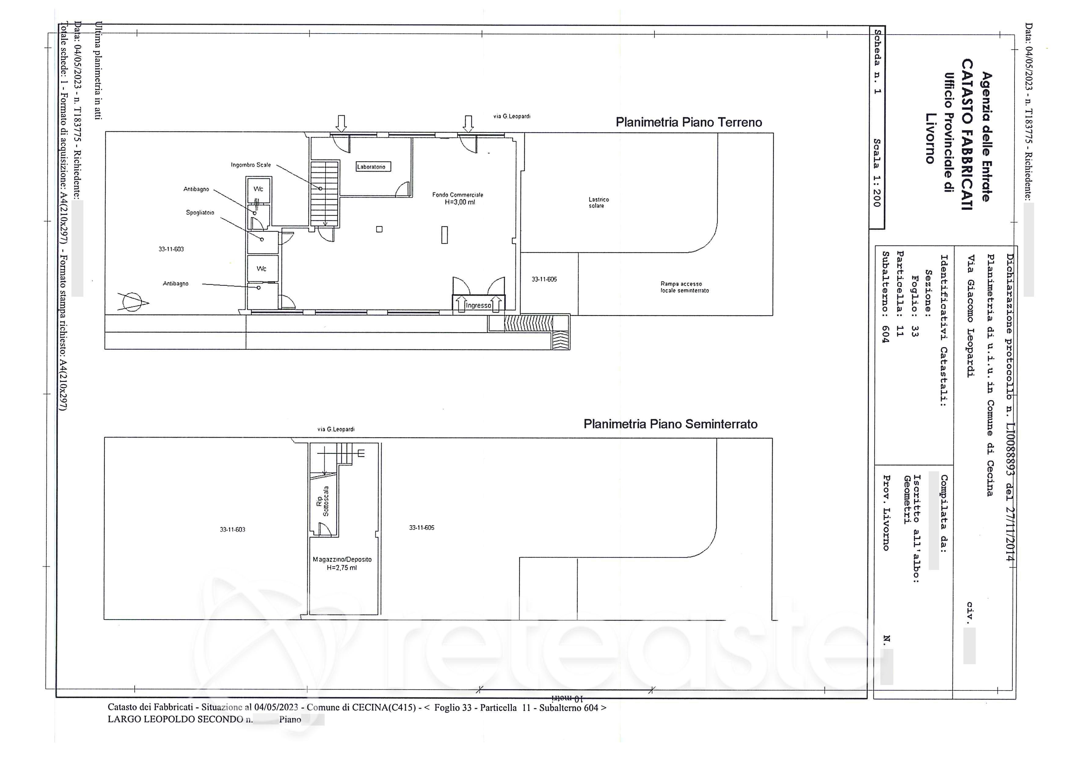
Fondo sviluppato su due livelli di mq. 181 (piano terreno e piano seminterrato) e composto da un locale adibito alla ristorazione, un locale laboratorio/confezionamento 6 prodotti e da un blocco servizi igienici e spogliatoio al piano terra, ampio magazzino al piano seminterrato. Le pavimentazioni sono in ceramica ad entrambi i piani. I rivestimenti dei servizi igienici sono in ceramica. Le porte interne sono in laminato plastico. Il locale è dotato di controsoffitto a pannelli removibili con illuminazione integrata.

Indirizzo
Via Leopardi, Cecina (LI)


Codice asta
4302580


Lotto
411


Numero beni
1


Genere
Immobili


Categoria
Immobile commerciale


Valore di stima
-


Negozio

Fondo sviluppato su due livelli di mq. 181 (piano terreno e piano seminterrato) e composto da un locale adibito alla ristorazione, un locale laboratorio/confezionamento 6 prodotti e da un blocco servizi igienici e spogliatoio al piano terra, ampio magazzino al piano seminterrato. Le pavimentazioni sono in ceramica ad entrambi i piani. I rivestimenti dei servizi igienici sono in ceramica. Le porte interne sono in laminato plastico. Il locale è dotato di controsoffitto a pannelli removibili con illuminazione integrata.

Indirizzo
Via Leopardi, Cecina (LI)


Piano
-


Disponibilità
LIBERO


Vani
-


Bagni
-


Metri quadri
181,00


Certificazione energetica
-


Data vendita
27/05/2026 ore 14:00


Tipo di vendita
Invito a manifestare interesse


Modalità di vendita
Presso il venditore


Luogo
-


Luogo presentazione offerte
-


Termine presentazione offerte
-


Prezzo base
€ 227.286,00


Offerta minima
-


Rialzo minimo in caso di gara
-


Deposito cauzionale
-


Deposito in conto spese
-


Tribunale
Livorno

Tipo di procedura
Ricorso per omologazione piano di ristrutturazione

Ruolo
1/2024

Soggetto specializzato alla vendita
Rete aste real estate 
(Procede alle operazioni di vendita)

Recapiti
-

Email
-

Scheda COD. 4302580 - Pubblicata dal 15/04/2026

La presente scheda di vendita riporta integralmente informazioni e documenti pervenuti ufficialmente dal Ministero e dal professionista incaricato.


Pubblicazione autorizzata dall’Autorità competente, è vietata ogni ripubblicazione o riproduzione anche parziale


Ti interessa questa vendita?

Documentazione

Visualizza su mappa

Mappa geografica del bene

Storico delle vendite

Data venditaPrezzo base
25/06/2024€ 280.600,00
01/10/2024€ 280.600,00
09/12/2024€ 280.600,00
11/02/2025€ 252.540,00
06/05/2025€ 252.540,00
23/07/2025€ 252.540,00
01/10/2025€ 252.540,00
25/11/2025€ 252.540,00
27/05/2026€ 227.286,00

Punti di interesse

Fonte dati

Nel raggio di {{range}}Km

Loading...
  • {{ getIcon(poi.type) }} {{ poi.localized }}: {{poi.count}}
  • {{ getIcon(poi.type) }} {{ poi.localized }}: {{poi.count}}
Dati non disponibili