Astegiudiziarie.it è parte di Rete Aste Network

Accedi o registrati

Non sei ancora registrato?

Oppure

Accedi

Castello, immobile di pregio artistico e storico, terreno

Via Domenico Giuli, 1-3, Crespina Lorenzana (PI)

€ 95.250,00

Offerta minima € 71.500,00


Codice A2789740

Lotto 1

Data udienza 23/06/2026 ore 12:00

Termine presentazione offerte 22/06/2026 ore 12:00

Castello, immobile di pregio artistico e storico, terreno

Via Domenico Giuli, 1-3, Crespina Lorenzana (PI)

€ 95.250,00

Offerta minima € 71.500,00


Codice A2789740

Lotto 1

Data udienza 23/06/2026 ore 12:00

Termine presentazione offerte 22/06/2026 ore 12:00

Ti interessa questa vendita?

Documentazione

Visualizza su mappa

Mappa geografica del bene

Punti di interesse

Fonte dati

Nel raggio di {{range}}Km

Loading...
  • {{ getIcon(poi.type) }} {{ poi.localized }}: {{poi.count}}
  • {{ getIcon(poi.type) }} {{ poi.localized }}: {{poi.count}}
Dati non disponibili

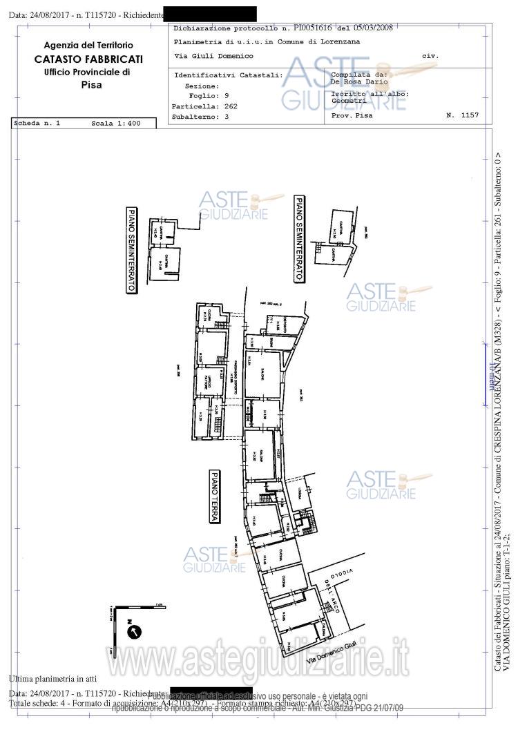
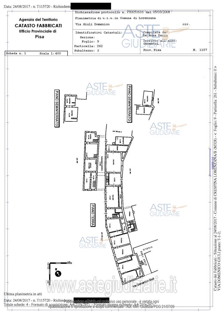
LOTTO A - Compendio immobiliare denominato Villa Giuli formato da più corpi di fabbrica sviluppati su parti interrate e seminterrate e più piani fuori terra, oltre a pertinenze scoperte e terreni annessi.

Indirizzo
Via Domenico Giuli, 1-3, Crespina Lorenzana (PI)


Codice asta
2789740


Lotto
1


Numero beni
3


Genere
Immobili


Categoria
Immobile residenziale


Valore di stima
-


Castello, immobile di pregio artistico e storico

LOTTO A - Compendio immobiliare denominato Villa Giuli in stato di abbandono, ubicato in centro storico, formato da più corpi di fabbrica sviluppati su parti interrate e seminterrate e più piani fuori terra, oltre a pertinenze scoperte.

Indirizzo
Via Domenico Giuli, 1-3, Crespina Lorenzana (PI)


Piano
-


Disponibilità
-


Vani
81,00


Bagni
-


Metri quadri
3200,00


Certificazione energetica
-


Terreno

LOTTO A - Terreni annessi.

Indirizzo
Via Domenico Giuli, 1-3, Crespina Lorenzana (PI)


Piano
-


Disponibilità
-


Vani
-


Bagni
-


Metri quadri
28272,00


Certificazione energetica
-


Castello, immobile di pregio artistico e storico

LOTTO A - Compendio immobiliare denominato Villa Giuli in stato di abbandono, ubicato in centro storico, formato da più corpi di fabbrica sviluppati su parti interrate e seminterrate e più piani fuori terra, oltre a pertinenze scoperte.

Indirizzo
Via Domenico Giuli, 1-3, Crespina Lorenzana (PI)


Piano
-


Disponibilità
-


Vani
81,00


Bagni
-


Metri quadri
3200,00


Certificazione energetica
-


Data udienza
23/06/2026 ore 12:00


Tipo di vendita
Senza incanto


Modalità di vendita
Asincrona telematica


Luogo
N.A. -


Luogo presentazione offerte
-


Termine presentazione offerte
22/06/2026 ore 12:00


Prezzo base
€ 95.250,00


Offerta minima
€ 71.500,00


Rialzo minimo in caso di gara
€ 2.500,00


Deposito cauzionale
14.300,00


Deposito in conto spese
-


Tribunale
Pistoia

Tipo di procedura
Fallimentare (nuovo rito)

Ruolo
32/2017

Curatore
Petrocchi Elisa
(Procede alle operazioni di vendita)

Recapiti
-

Email
-

Custode giudiziario
Petrocchi Elisa
(Gestisce la visita del bene)

Recapiti
Tel. 0572477856

Scheda COD. 2789740 - Pubblicata dal 02/03/2026

La presente scheda di vendita riporta integralmente informazioni e documenti pervenuti ufficialmente dal Ministero e dal professionista incaricato.

Pubblicazione notarizzata su Blockchain


Pubblicazione autorizzata dall’Autorità competente, è vietata ogni ripubblicazione o riproduzione anche parziale


Ti interessa questa vendita?

Documentazione

Visualizza su mappa

Mappa geografica del bene

Storico delle vendite

Data venditaPrezzo base
20/06/2019€ 695.000,00
18/01/2022€ 640.000,00
14/06/2022€ 534.000,00
29/11/2022€ 400.000,00
30/05/2023€ 300.000,00
23/01/2024€ 225.000,00
08/10/2024€ 169.000,00
25/03/2025€ 127.000,00
16/09/2025€ 95.250,00
23/06/2026€ 95.250,00

Punti di interesse

Fonte dati

Nel raggio di {{range}}Km

Loading...
  • {{ getIcon(poi.type) }} {{ poi.localized }}: {{poi.count}}
  • {{ getIcon(poi.type) }} {{ poi.localized }}: {{poi.count}}
Dati non disponibili