Astegiudiziarie.it è parte di Rete Aste Network

Accedi o registrati

Non sei ancora registrato?

Oppure

Accedi

Negozio

Via Cavour, 53, 67059 Trasacco AQ, Italia, Trasacco (AQ)

€ 85.000,00

Offerta minima € 63.750,00


Codice A4310439

Lotto Lotto unico

Data udienza 04/06/2026 ore 12:00

Termine presentazione offerte 03/06/2026 ore 12:00

Negozio

Via Cavour, 53, 67059 Trasacco AQ, Italia, Trasacco (AQ)

€ 85.000,00

Offerta minima € 63.750,00


Codice A4310439

Lotto Lotto unico

Data udienza 04/06/2026 ore 12:00

Termine presentazione offerte 03/06/2026 ore 12:00

Ti interessa questa vendita?

Documentazione

Visualizza su mappa

Mappa geografica del bene

Punti di interesse

Fonte dati

Nel raggio di {{range}}Km

Loading...
  • {{ getIcon(poi.type) }} {{ poi.localized }}: {{poi.count}}
  • {{ getIcon(poi.type) }} {{ poi.localized }}: {{poi.count}}
Dati non disponibili

Negozio

Indirizzo
Via Cavour, 53, 67059 Trasacco AQ, Italia, Trasacco (AQ)


Codice asta
4310439


Lotto
Lotto unico


Numero beni
1


Genere
Immobili


Categoria
Immobile commerciale


Valore di stima
-


Negozio

Negozio

Indirizzo
Via Cavour, 53, 67059 Trasacco AQ, Italia, Trasacco (AQ)


Piano
-


Disponibilità
OCCUPATO


Vani
8,00


Bagni
-


Metri quadri
607,00


Certificazione energetica
-


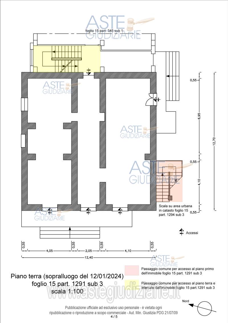
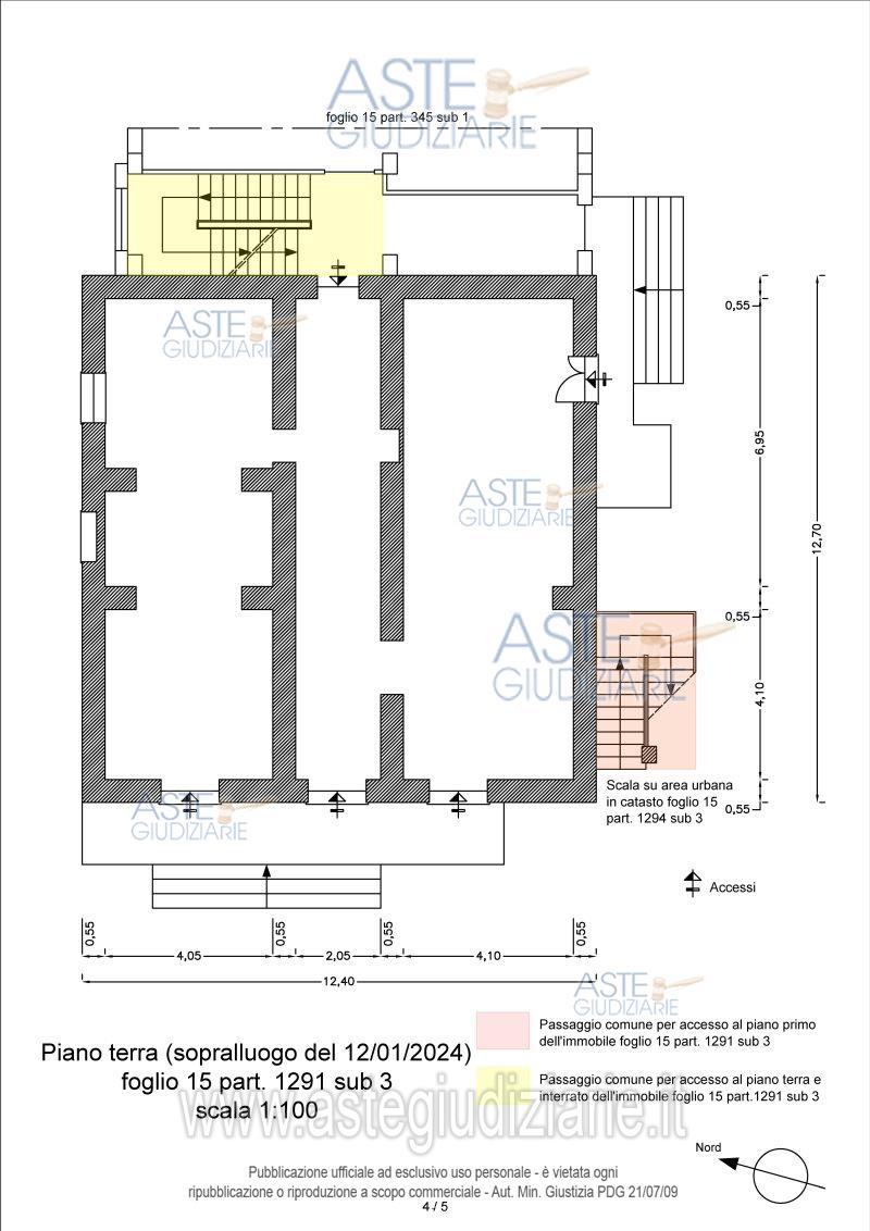
Dati catastali

Foglio:15, Particella:1291, Sub particella:3
Foglio:15, Particella:1294, Sub particella:1
Foglio:15, Particella:1294, Sub particella:2
Foglio:15, Particella:1294, Sub particella:3


Data udienza
04/06/2026 ore 12:00


Tipo di vendita
Senza incanto


Modalità di vendita
Asincrona telematica


Luogo
N.A. -


Luogo presentazione offerte
-


Termine presentazione offerte
03/06/2026 ore 12:00


Prezzo base
€ 85.000,00


Offerta minima
€ 63.750,00


Rialzo minimo in caso di gara
€ 3.000,00


Deposito cauzionale
almeno il 10% del prezzo offerto


Deposito in conto spese
-


Tribunale
Avezzano

Tipo di procedura
Espropriazione immobiliare (cartabia)

Ruolo
47/2023

Giudice
Gatto Gabriele

Recapiti
-

Email
-

Delegato alla vendita
Paolini Filippo
(Procede alle operazioni di vendita)

Recapiti
Tel. 086321387

Email
f.paolini@studiolegalepaolini....

Custode giudiziario
Paolini Filippo
(Gestisce la visita del bene)

Recapiti
Tel. 086321387

Scheda COD. 4310439 - Pubblicata dal 03/04/2026

La presente scheda di vendita riporta integralmente informazioni e documenti pervenuti ufficialmente dal Ministero e dal professionista incaricato.


Pubblicazione autorizzata dall’Autorità competente, è vietata ogni ripubblicazione o riproduzione anche parziale


Ti interessa questa vendita?

Documentazione

Visualizza su mappa

Mappa geografica del bene

Storico delle vendite

Data venditaPrezzo base
31/10/2024€ 167.672,32
19/02/2025€ 125.754,24
29/07/2025€ 94.315,68
04/06/2026€ 85.000,00

Punti di interesse

Fonte dati

Nel raggio di {{range}}Km

Loading...
  • {{ getIcon(poi.type) }} {{ poi.localized }}: {{poi.count}}
  • {{ getIcon(poi.type) }} {{ poi.localized }}: {{poi.count}}
Dati non disponibili