Astegiudiziarie.it è parte di Rete Aste Network

Accedi o registrati

Non sei ancora registrato?

Oppure

Accedi

giudiziariagiudiziariaTribunale di ROMAESECUZIONI CIVILI IMMOBILIARIESECUZIONE IMMOBILIARE POST LEGGE 803022020CustodeIvg di roma srlFranco procissiPRCFNC50L27A241Tpvp@visiteivgroma.it0689569801falsetrueGiudiceFedericaD'ambrosiofalsefalseDelegato alla venditaAntonioTigani savaTGNNTN79M05C352Aantoniots@studiotiganisava.it0637517000truefalse2399464LOTTO UNICOIMMOBILIIMMOBILE COMMERCIALECirconvallazione Orientale, 4536, 00173 Roma RM, Italia00173RomaRomaLazioItaliaQuota pari a 1/1 del diritto di proprietà su fabbricato cielo terra sito in Roma – Circonvallazione Orientale 4536 costituito da due piani fuori terra oltre lastrico e due terreni perimetrali quasi interamente edificati. 3096645IMMOBILE COMMERCIALENEGOZIOCirconvallazione Orientale, 4536, 00173 Roma RM, Italia00173RomaRomaLazioItaliaQuota pari a 1/1 del diritto di proprietà su fabbricato cielo terra sito in Roma – Circonvallazione Orientale 4536, costituito da due piani fuori terra oltre lastrico e due terreni perimetrali quasi interamente edificati, il compendio immobiliare, risulta così costituito: - Bene 1 posto al piano strada, con accesso principale dal civico 4534 e funzionalmente collegata ai piani sovrastanti e di ulteriore consistenza adibita ad abitazione sul versante destro con accesso autonomo e sprovvisto di civico, composta da soggiorno con angolo cottura e bagno (in planimetria catastale denominato ufficio).Identificato al catasto Fabbricati - Fg. 978, Part. 192, Sub. 501, (già sub 2), Zc. 6, Categoria C1.- Bene n. 2 posto al piano primo, composto da tre ambienti comunicanti e due balconi verandati, oltre all'accesso, delimitato con porta, all'ulteriore rampa al rustico della scala che conduce al lastrico di copertura, a tale interno si accede sia internamente dal bene n.1, mediante vano scala (non è presente ascensore).Identificato al catasto Fabbricati - Fg. 978, Part. 192, Sub. 3, Zc. 6, Categoria A4.- Bene n. 3, lastrico solare posto a copertura del fabbricato già descritto per i beni n°1 e n°2.Il corpo scala interno, che tra piano primo e secondo si presenta al rustico.Identificato al catasto Fabbricati - Fg. 978, Part. 192, Sub. 4, Zc. 6, Categoria F/5- terreno 1, area sita al piano terra del compendio e quasi interamente edificata, che si sviluppa perimetralmente al fabbricato cielo-terra sino alle contigue sedi stradali. Le costruzioni su detto terreno sono del tutto sprovviste di titolo edilizio e/o di domanda di condono e come tali non sanabili.Identificato al catasto Terreni - Fg. 978, Part. 202, Qualità AREA FAB DM- terreno 2, sito lungo il prospetto principale del manufatto, identifica un’ulteriore porzione di area scoperta antistante il compendio, e nello specifico la banchina direttamente adiacente all’antistante carreggiata.Identificato al catasto Terreni - Fg. 978, Part. 1443, Qualità AREA FAB DMLa complessiva consistenza del fabbricato cielo/terra è pari a mq. 420,40.L’intero fabbricato è stato edificato in assenza di licenza o concessione edilizia, risultano essere state presentate, con riferimento al sub 501, una prima domande di sanatoria, identificata con prot. 86/57781/sot. 1 e 2 (tuttora in istruttoria, in attesa di documentazione dal 19/9/2023), una seconda istanza, identificata con prot. 0/88222/sot 0 (in proposta di reiezione validata dal 21/2/2023) ed infine un’ultima domanda prot. 0/557583/sot 0 (in attesa di istruttoria): ad oggi, pertanto, non risulta rilasciata alcuna concessione in sanatoria, la cui valutazione finale è demandata all’U.C.E., in caso di rigetto delle istanze succitate ne discenderebbe la parziale e/o totale abusività, non sanabile, del compendio. Con riferimento al sub 3 risulta essere stata presentata domanda di sanatoria prot. 86/57781 - sot. 2 (allegato n° 06), tuttora in fase di istruttoria. L’attuale destinazione commerciale della maggior parte del cespite è differente da quella residenziale oggetto di domanda di sanatoria.Il Compendio immobiliare posto in vendita ha subito, in data 29.06.2025, un evento incendiario che ha interessato principalmente i beni 1 e due provocando ingenti danni i cui esiti sono dettagliatamente descritti nella perizia estimativa in atti.978192501 (già sub 2)978192397819249792029781443LIBER4202026-06-04T11:00:00SENZA INCANTOASINCRONA TELEMATICAN.A.130.000,0097.500,005.000,002026-06-03T23:59:00sito pubblicitahttps://www.astegiudiziarie.ithttps://www.astegiudiziarie.itgestore delle venditehttp://www.astetelematiche.ithttp://www.astetelematiche.itsito pubblicitahttps://www.fallcoaste.ithttps://www.fallcoaste.itsito pubblicitahttps://www.asteannunci.ithttps://www.asteannunci.it2026-02-26

Negozio

Circonvallazione Orientale, 4536, 00173 Roma RM, Italia, Roma (RM)

€ 130.000,00

Offerta minima € 97.500,00


Codice A4326935

Lotto Lotto unico

Data udienza 04/06/2026 ore 11:00

Termine presentazione offerte 03/06/2026 ore 23:59

Negozio

Circonvallazione Orientale, 4536, 00173 Roma RM, Italia, Roma (RM)

€ 130.000,00

Offerta minima € 97.500,00


Codice A4326935

Lotto Lotto unico

Data udienza 04/06/2026 ore 11:00

Termine presentazione offerte 03/06/2026 ore 23:59

Ti interessa questa vendita?

Documentazione

Visualizza su mappa

Mappa geografica del bene

Punti di interesse

Fonte dati

Nel raggio di {{range}}Km

Loading...
  • {{ getIcon(poi.type) }} {{ poi.localized }}: {{poi.count}}
  • {{ getIcon(poi.type) }} {{ poi.localized }}: {{poi.count}}
Dati non disponibili

Quota pari a 1/1 del diritto di proprietà su fabbricato cielo terra sito in Roma – Circonvallazione Orientale 4536 costituito da due piani fuori terra oltre lastrico e due terreni perimetrali quasi interamente edificati.

Indirizzo
Circonvallazione Orientale, 4536, 00173 Roma RM, Italia, Roma (RM)


Codice asta
4326935


Lotto
Lotto unico


Numero beni
1


Genere
Immobili


Categoria
Immobile commerciale


Valore di stima
-


Negozio

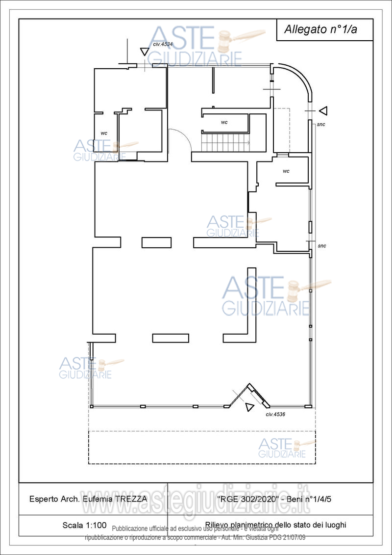
Quota pari a 1/1 del diritto di proprietà su fabbricato cielo terra sito in Roma – Circonvallazione Orientale 4536, costituito da due piani fuori terra oltre lastrico e due terreni perimetrali quasi interamente edificati, il compendio immobiliare, risulta così costituito: - Bene 1 posto al piano strada, con accesso principale dal civico 4534 e funzionalmente collegata ai piani sovrastanti e di ulteriore consistenza adibita ad abitazione sul versante destro con accesso autonomo e sprovvisto di civico, composta da soggiorno con angolo cottura e bagno (in planimetria catastale denominato ufficio).Identificato al catasto Fabbricati - Fg. 978, Part. 192, Sub. 501, (già sub 2), Zc. 6, Categoria C1.- Bene n. 2 posto al piano primo, composto da tre ambienti comunicanti e due balconi verandati, oltre all'accesso, delimitato con porta, all'ulteriore rampa al rustico della scala che conduce al lastrico di copertura, a tale interno si accede sia internamente dal bene n.1, mediante vano scala (non è presente ascensore).Identificato al catasto Fabbricati - Fg. 978, Part. 192, Sub. 3, Zc. 6, Categoria A4.- Bene n. 3, lastrico solare posto a copertura del fabbricato già descritto per i beni n°1 e n°2.Il corpo scala interno, che tra piano primo e secondo si presenta al rustico.Identificato al catasto Fabbricati - Fg. 978, Part. 192, Sub. 4, Zc. 6, Categoria F/5- terreno 1, area sita al piano terra del compendio e quasi interamente edificata, che si sviluppa perimetralmente al fabbricato cielo-terra sino alle contigue sedi stradali. Le costruzioni su detto terreno sono del tutto sprovviste di titolo edilizio e/o di domanda di condono e come tali non sanabili.Identificato al catasto Terreni - Fg. 978, Part. 202, Qualità AREA FAB DM- terreno 2, sito lungo il prospetto principale del manufatto, identifica un’ulteriore porzione di area scoperta antistante il compendio, e nello specifico la banchina direttamente adiacente all’antistante carreggiata.Identificato al catasto Terreni - Fg. 978, Part. 1443, Qualità AREA FAB DMLa complessiva consistenza del fabbricato cielo/terra è pari a mq. 420,40.L’intero fabbricato è stato edificato in assenza di licenza o concessione edilizia, risultano essere state presentate, con riferimento al sub 501, una prima domande di sanatoria, identificata con prot. 86/57781/sot. 1 e 2 (tuttora in istruttoria, in attesa di documentazione dal 19/9/2023), una seconda istanza, identificata con prot. 0/88222/sot 0 (in proposta di reiezione validata dal 21/2/2023) ed infine un’ultima domanda prot. 0/557583/sot 0 (in attesa di istruttoria): ad oggi, pertanto, non risulta rilasciata alcuna concessione in sanatoria, la cui valutazione finale è demandata all’U.C.E., in caso di rigetto delle istanze succitate ne discenderebbe la parziale e/o totale abusività, non sanabile, del compendio. Con riferimento al sub 3 risulta essere stata presentata domanda di sanatoria prot. 86/57781 - sot. 2 (allegato n° 06), tuttora in fase di istruttoria. L’attuale destinazione commerciale della maggior parte del cespite è differente da quella residenziale oggetto di domanda di sanatoria.Il Compendio immobiliare posto in vendita ha subito, in data 29.06.2025, un evento incendiario che ha interessato principalmente i beni 1 e due provocando ingenti danni i cui esiti sono dettagliatamente descritti nella perizia estimativa in atti.

Indirizzo
Circonvallazione Orientale, 4536, 00173 Roma RM, Italia, Roma (RM)


Piano
t-1


Disponibilità
LIBERO


Vani
1,00


Bagni
1


Metri quadri
420,00


Certificazione energetica
-


Dati catastali

Foglio:978, Particella:192, Subalterno:501 (già sub 2)
Foglio:978, Particella:192, Subalterno:3
Foglio:978, Particella:192, Subalterno:4
Foglio:979, Particella:202
Foglio:978, Particella:1443


Data udienza
04/06/2026 ore 11:00


Tipo di vendita
Senza incanto


Modalità di vendita
Asincrona telematica


Luogo
N.A. -


Luogo presentazione offerte
-


Termine presentazione offerte
03/06/2026 ore 23:59


Prezzo base
€ 130.000,00


Offerta minima
€ 97.500,00


Rialzo minimo in caso di gara
€ 5.000,00


Deposito cauzionale
-


Deposito in conto spese
-


Tribunale
Roma

Tipo di procedura
Esecuzione immobiliare post legge 80

Ruolo
302/2020

Giudice
D'ambrosio Federica

Recapiti
-

Email
-

Delegato alla vendita
Tigani sava Antonio
(Procede alle operazioni di vendita)

Recapiti
-

Email
-

Custode giudiziario
Ivg di roma srl 
(Gestisce la visita del bene)

Recapiti
Tel. 0689569801

Scheda COD. 4326935 - Pubblicata dal 24/03/2026

La presente scheda di vendita riporta integralmente informazioni e documenti pervenuti ufficialmente dal Ministero e dal professionista incaricato.

Pubblicazione notarizzata su Blockchain


Pubblicazione autorizzata dall’Autorità competente, è vietata ogni ripubblicazione o riproduzione anche parziale


Ti interessa questa vendita?

Documentazione

Visualizza su mappa

Mappa geografica del bene

Punti di interesse

Fonte dati

Nel raggio di {{range}}Km

Loading...
  • {{ getIcon(poi.type) }} {{ poi.localized }}: {{poi.count}}
  • {{ getIcon(poi.type) }} {{ poi.localized }}: {{poi.count}}
Dati non disponibili