Astegiudiziarie.it è parte di Rete Aste Network

Accedi o registrati

Non sei ancora registrato?

Oppure

Accedi

Negozio

Via Filippo Villa, 17, 92020 Racalmuto AG, Italia, Racalmuto (AG)

€ 9.495,00

Offerta minima € 7.121,25


Codice A4198849

Lotto 005

Data udienza 02/07/2026 ore 16:00

Termine presentazione offerte 01/07/2026 ore 12:00

Negozio

Via Filippo Villa, 17, 92020 Racalmuto AG, Italia, Racalmuto (AG)

€ 9.495,00

Offerta minima € 7.121,25


Codice A4198849

Lotto 005

Data udienza 02/07/2026 ore 16:00

Termine presentazione offerte 01/07/2026 ore 12:00

Ti interessa questa vendita?

Documentazione

Visualizza su mappa

Mappa geografica del bene

Punti di interesse

Fonte dati

Nel raggio di {{range}}Km

Loading...
  • {{ getIcon(poi.type) }} {{ poi.localized }}: {{poi.count}}
  • {{ getIcon(poi.type) }} {{ poi.localized }}: {{poi.count}}
Dati non disponibili

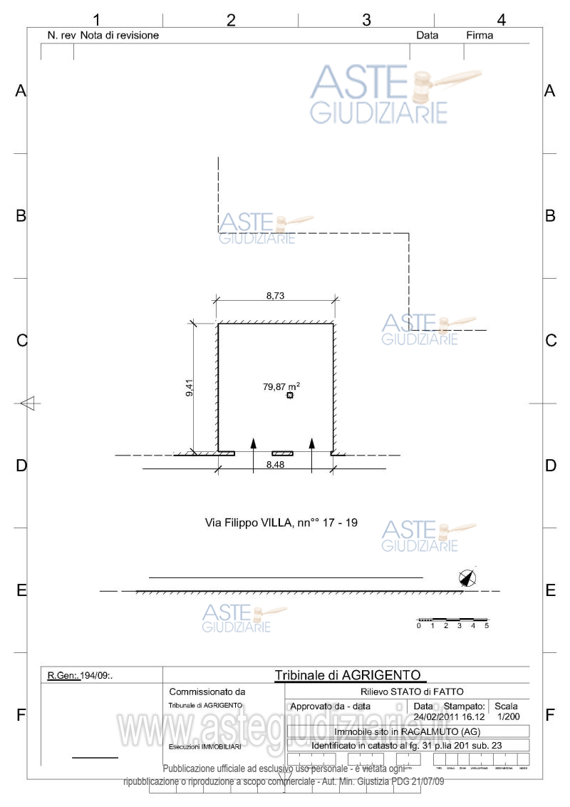
Lotto 5: Piena proprietà per la quota di 1000/1000 di immobile ad uso “negozio” sito in Racalmuto Via Filippo Villa n. 17, piano terra, identificato in N.C.E.U. al foglio 31 particella 201 sub 23. Occupato.

Indirizzo
Via Filippo Villa, 17, 92020 Racalmuto AG, Italia, Racalmuto (AG)


Codice asta
4198849


Lotto
005


Numero beni
1


Genere
Immobili


Categoria
Immobile commerciale


Valore di stima
-


Negozio

Lotto 5: Piena proprietà per la quota di 1000/1000 di immobile ad uso “negozio” sito in Racalmuto Via Filippo Villa n. 17, piano terra, identificato in N.C.E.U. al foglio 31 particella 201 sub 23. Occupato.

Indirizzo
Via Filippo Villa, 17, 92020 Racalmuto AG, Italia, Racalmuto (AG)


Piano
-


Disponibilità
-


Vani
-


Bagni
-


Metri quadri
84,00


Certificazione energetica
-


Data udienza
02/07/2026 ore 16:00


Tipo di vendita
Senza incanto


Modalità di vendita
Sincrona mista


Luogo
Via Abramo Lincoln, 94, 92029 Ravanusa AG, Italia - Ravanusa 92029


Luogo presentazione offerte
-


Termine presentazione offerte
01/07/2026 ore 12:00


Prezzo base
€ 9.495,00


Offerta minima
€ 7.121,25


Rialzo minimo in caso di gara
€ 500,00


Deposito cauzionale
-


Deposito in conto spese
-


Tribunale
Agrigento

Tipo di procedura
Esecuzione immobiliare post legge 80

Ruolo
194/2009

Giudice
Pipitone Vitalba

Recapiti
-

Email
-

Delegato alla vendita
Orlando Calogero
(Procede alle operazioni di vendita)
(Gestisce la visita del bene)

Recapiti
Tel.

Scheda COD. 4198849 - Pubblicata dal 09/03/2026

La presente scheda di vendita riporta integralmente informazioni e documenti pervenuti ufficialmente dal Ministero e dal professionista incaricato.

Pubblicazione notarizzata su Blockchain


Pubblicazione autorizzata dall’Autorità competente, è vietata ogni ripubblicazione o riproduzione anche parziale


Ti interessa questa vendita?

Documentazione

Visualizza su mappa

Mappa geografica del bene

Storico delle vendite

Data venditaPrezzo base
27/04/2021€ 50.000,00
27/04/2022€ 37.500,00
07/09/2022€ 28.125,00
20/12/2022€ 21.100,00
18/07/2023€ 12.660,00
03/12/2025€ 12.660,00
02/07/2026€ 9.495,00

Punti di interesse

Fonte dati

Nel raggio di {{range}}Km

Loading...
  • {{ getIcon(poi.type) }} {{ poi.localized }}: {{poi.count}}
  • {{ getIcon(poi.type) }} {{ poi.localized }}: {{poi.count}}
Dati non disponibili