Astegiudiziarie.it è parte di Rete Aste Network

Accedi o registrati

Non sei ancora registrato?

Oppure

Accedi

Negozio

Via Monaco, 09045 Quartu Sant'Elena CA, Italia, Quartu Sant'Elena (CA)

€ 195.300,00

Offerta minima € 146.475,00


Codice A4349612

Lotto 6

Data udienza 24/06/2026 ore 16:00

Termine presentazione offerte 23/06/2026 ore 16:00

Negozio

Via Monaco, 09045 Quartu Sant'Elena CA, Italia, Quartu Sant'Elena (CA)

€ 195.300,00

Offerta minima € 146.475,00


Codice A4349612

Lotto 6

Data udienza 24/06/2026 ore 16:00

Termine presentazione offerte 23/06/2026 ore 16:00

Ti interessa questa vendita?

Documentazione

Visualizza su mappa

Mappa geografica del bene

Punti di interesse

Fonte dati

Nel raggio di {{range}}Km

Loading...
  • {{ getIcon(poi.type) }} {{ poi.localized }}: {{poi.count}}
  • {{ getIcon(poi.type) }} {{ poi.localized }}: {{poi.count}}
Dati non disponibili

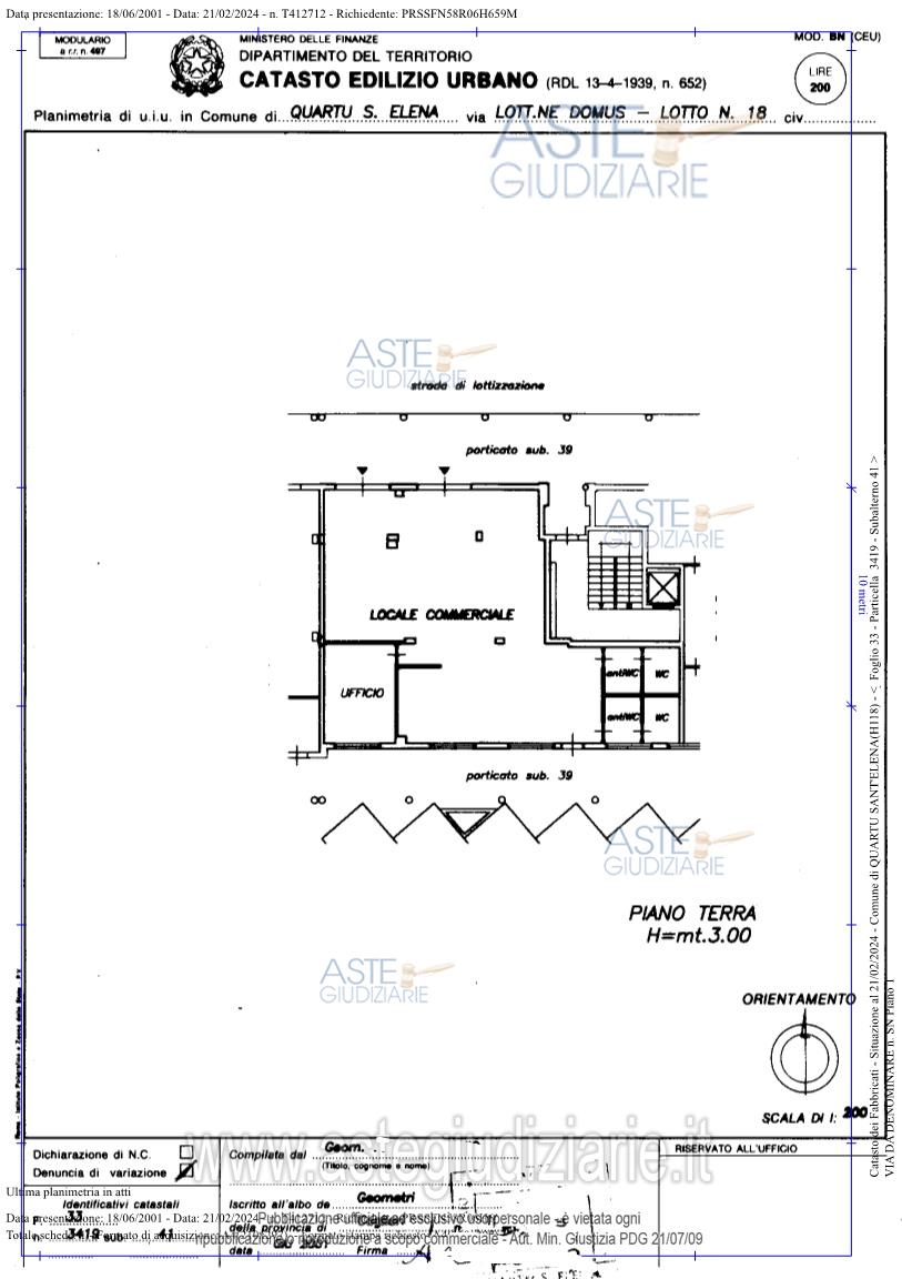
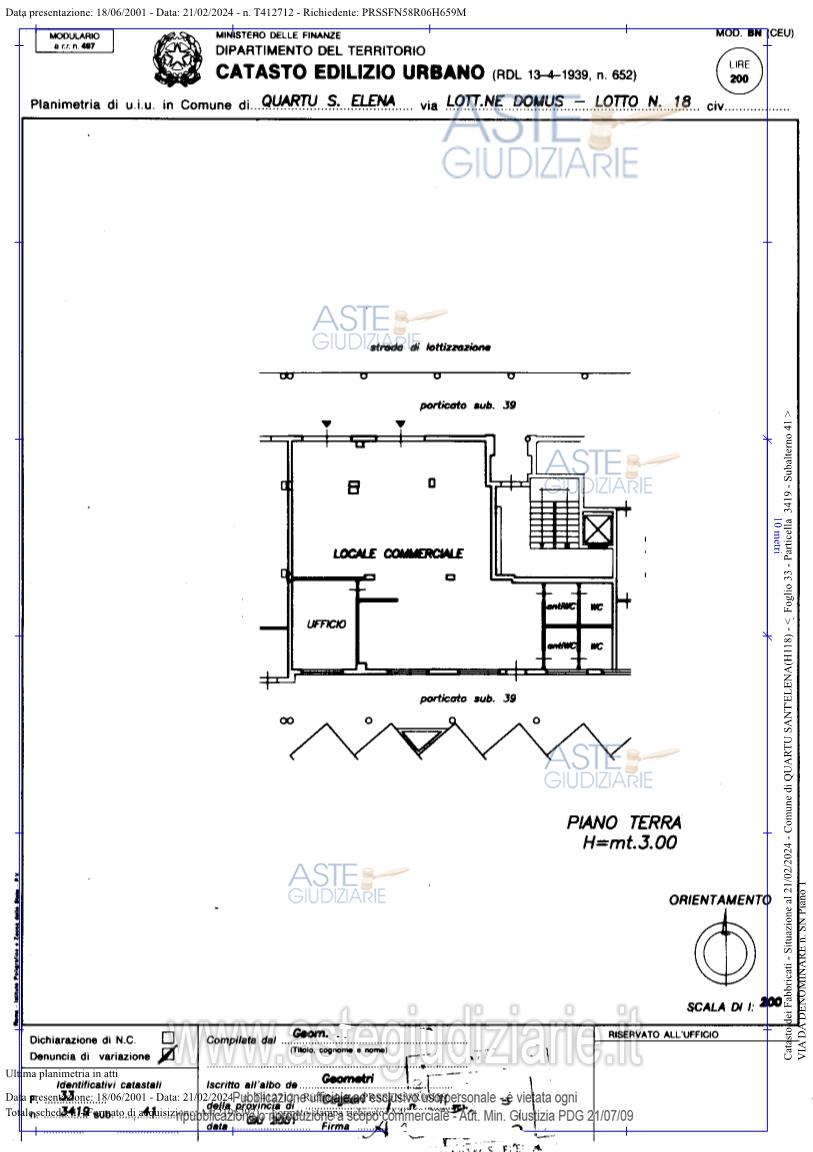
LOTTO 6 – quota pari a 1/1 del diritto di proprietà su Locale commerciale sito in Comune di QUARTUSANT’ELENA, via Monaco s.n., LOTTIZZAZIONE DOMUS, distinto al NCEU F. 33 part. 3419 sub. 41cat. C/1 cl. 7 piano T, consistenza mq. 139, superficie catastale mq. 138, R.C. 3.819,10, composto da vano di ingresso, due ambienti adibiti ad ufficio, disimpegno, zona lavorazione – magazzino, spogliatoio con servizio igienico e anti bagno, Occupato fino all’aggiudicazione del bene, presenti difformità sanabili.

Indirizzo
Via Monaco, 09045 Quartu Sant'Elena CA, Italia, Quartu Sant'Elena (CA)


Codice asta
4349612


Lotto
6


Numero beni
1


Genere
Immobili


Categoria
Immobile commerciale


Valore di stima
-


Negozio

LOTTO 6 – quota pari a 1/1 del diritto di proprietà su Locale commerciale sito in Comune di QUARTUSANT’ELENA, via Monaco s.n., LOTTIZZAZIONE DOMUS, distinto al NCEU F. 33 part. 3419 sub. 41cat. C/1 cl. 7 piano T, consistenza mq. 139, superficie catastale mq. 138, R.C. 3.819,10, composto da vano di ingresso, due ambienti adibiti ad ufficio, disimpegno, zona lavorazione – magazzino, spogliatoio con servizio igienico e anti bagno, Occupato fino all’aggiudicazione del bene, presenti difformità sanabili. Prezzo bas eeuro 195.300,00.

Indirizzo
Via Monaco, 09045 Quartu Sant'Elena CA, Italia, Quartu Sant'Elena (CA)


Piano
-


Disponibilità
-


Vani
3,00


Bagni
2


Metri quadri
138,00


Certificazione energetica
-


Dati catastali

Foglio:33, Particella:3419, Subalterno:41


Data udienza
24/06/2026 ore 16:00


Tipo di vendita
Senza incanto


Modalità di vendita
Asincrona telematica


Luogo
-


Luogo presentazione offerte
-


Termine presentazione offerte
23/06/2026 ore 16:00


Prezzo base
€ 195.300,00


Offerta minima
€ 146.475,00


Rialzo minimo in caso di gara
€ 5.000,00


Deposito cauzionale
20000


Deposito in conto spese
-


Tribunale
Cagliari

Tipo di procedura
Esecuzione immobiliare post legge 80

Ruolo
15/2018

Delegato alla vendita
Loddo Elena
(Procede alle operazioni di vendita)

Recapiti
Tel. 0707967825

Email
studioelenaloddo@gmail.com

Custode giudiziario
Ivg sardegna srl 
(Gestisce la visita del bene)

Recapiti
Tel. 0702299036

Scheda COD. 4349612 - Pubblicata dal 14/04/2026

La presente scheda di vendita riporta integralmente informazioni e documenti pervenuti ufficialmente dal Ministero e dal professionista incaricato.

Pubblicazione notarizzata su Blockchain


Pubblicazione autorizzata dall’Autorità competente, è vietata ogni ripubblicazione o riproduzione anche parziale


Ti interessa questa vendita?

Documentazione

Visualizza su mappa

Mappa geografica del bene

Punti di interesse

Fonte dati

Nel raggio di {{range}}Km

Loading...
  • {{ getIcon(poi.type) }} {{ poi.localized }}: {{poi.count}}
  • {{ getIcon(poi.type) }} {{ poi.localized }}: {{poi.count}}
Dati non disponibili