Astegiudiziarie.it è parte di Rete Aste Network

Accedi o registrati

Non sei ancora registrato?

Oppure

Accedi

Negozi, botteghe

Via Alessandro La Marmora, 83/A e 83/B, Palermo (PA)

€ 358.700,00

Offerta minima € 269.025,00


Codice A222126

Lotto 2

Data udienza 13/02/2026 ore 09:30

Termine presentazione offerte 12/02/2026 ore 13:00

Negozi, botteghe

Via Alessandro La Marmora, 83/A e 83/B, Palermo (PA)

€ 358.700,00

Offerta minima € 269.025,00


Codice A222126

Lotto 2

Data udienza 13/02/2026 ore 09:30

Termine presentazione offerte 12/02/2026 ore 13:00

Ti interessa questa vendita?

Documentazione

Visualizza su mappa

Mappa geografica del bene

Punti di interesse

Fonte dati

Nel raggio di {{range}}Km

Loading...
  • {{ getIcon(poi.type) }} {{ poi.localized }}: {{poi.count}}
  • {{ getIcon(poi.type) }} {{ poi.localized }}: {{poi.count}}
Dati non disponibili

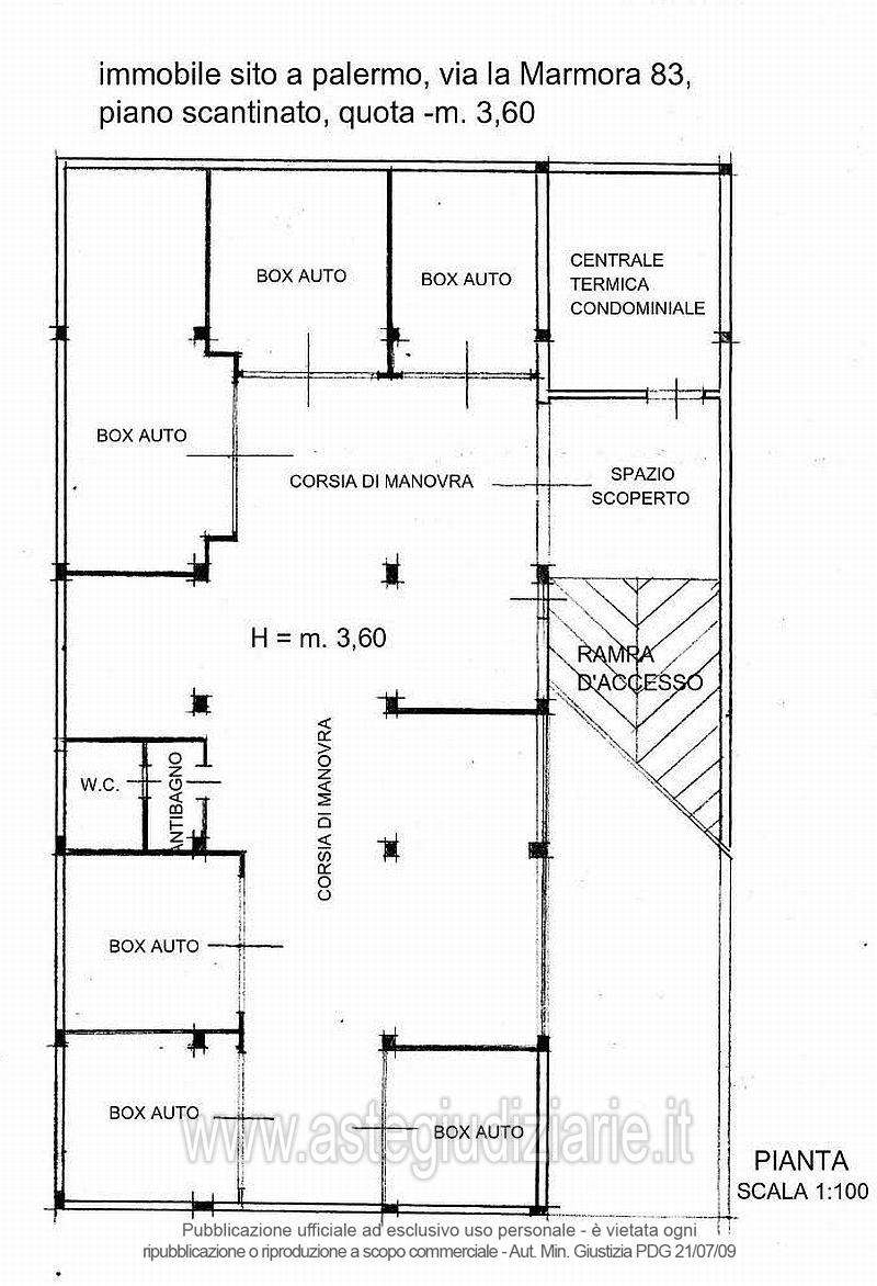
Piena proprietà di un locale sito nel Comune di Palermo, Via Alessandro La Marmora n. 83/a e n. 83/b, piano terra, identificato in Catasto Fabbricati del detto Comune al foglio n. 31, particella 355 sub 7, zona censuaria 3, categoria C/1, classe 6, consistenza 216 mq., superficie totale 224 mq., rendita € 5.901,24. Via Alessandro La Marmora n. 83/A-83/B, piano T.

Indirizzo
Via Alessandro La Marmora, 83/A e 83/B, Palermo (PA)


Codice asta
222126


Lotto
2


Numero beni
1


Genere
Immobili


Categoria
Immobile commerciale


Valore di stima
-


Negozi, botteghe

Piena proprietà di un locale sito nel Comune di Palermo, Via Alessandro La Marmora n. 83/a e n. 83/b, piano terra, identificato in Catasto Fabbricati del detto Comune al foglio n. 31, particella 355 sub 7, zona censuaria 3, categoria C/1, classe 6, consistenza 216 mq., superficie totale 224 mq., rendita € 5.901,24. Via Alessandro La Marmora n. 83/A-83/B, piano T. Confinante via Alessandro La Marmora, androne condominiale, scivolo di accesso ad immobile proprietà aliena.

Indirizzo
Via Alessandro La Marmora, 83/A e 83/B, Palermo (PA)


Piano
T


Disponibilità
OCCST


Vani
-


Bagni
-


Metri quadri
224,00


Certificazione energetica
-


Dati catastali

Foglio:31, Particella:355, Subalterno:7


Data udienza
13/02/2026 ore 09:30


Tipo di vendita
Senza incanto


Modalità di vendita
Sincrona mista


Luogo
c/o la sala aste del gestore telematico Aste Giudiziarie in Via Noto n. 34 - Palermo 90141


Luogo presentazione offerte
-


Termine presentazione offerte
12/02/2026 ore 13:00


Prezzo base
€ 358.700,00


Offerta minima
€ 269.025,00


Rialzo minimo in caso di gara
€ 10.000,00


Deposito cauzionale
10% del prezzo offerto


Deposito in conto spese
-


Tribunale
Palermo

Tipo di procedura
Esecuzione immobiliare post legge 80

Ruolo
454/2006

Giudice
Giuffrida Grazia

Recapiti
-

Email
-

Delegato alla vendita
Vajana Marina
(Procede alle operazioni di vendita)
(Gestisce la visita del bene)

Recapiti
Tel. 091300764

Scheda COD. 222126 - Pubblicata dal 23/12/2025

La presente scheda di vendita riporta integralmente informazioni e documenti pervenuti ufficialmente dal Ministero e dal professionista incaricato.


Pubblicazione autorizzata dall’Autorità competente, è vietata ogni ripubblicazione o riproduzione anche parziale


Ti interessa questa vendita?

Documentazione

Visualizza su mappa

Mappa geografica del bene

Storico delle vendite

Data venditaPrezzo base
14/05/2013€ 515.151,95
11/06/2013€ 515.151,95
29/10/2013€ 386.363,96
12/11/2013€ 386.363,96
13/02/2026€ 358.700,00

Punti di interesse

Fonte dati

Nel raggio di {{range}}Km

Loading...
  • {{ getIcon(poi.type) }} {{ poi.localized }}: {{poi.count}}
  • {{ getIcon(poi.type) }} {{ poi.localized }}: {{poi.count}}
Dati non disponibili