Astegiudiziarie.it è parte di Rete Aste Network

Accedi o registrati

Non sei ancora registrato?

Oppure

Accedi

Negozio

Viale Venezia Giulia 54, Cormons (GO)

€ 30.896,00

Offerta minima € 23.172,00


Codice A4347812

Lotto 1

Data udienza 19/05/2026 ore 11:00

Termine presentazione offerte 15/05/2026 ore 12:00

Negozio

Viale Venezia Giulia 54, Cormons (GO)

€ 30.896,00

Offerta minima € 23.172,00


Codice A4347812

Lotto 1

Data udienza 19/05/2026 ore 11:00

Termine presentazione offerte 15/05/2026 ore 12:00

Ti interessa questa vendita?

Documentazione

Visualizza su mappa

Mappa geografica del bene

Punti di interesse

Fonte dati

Nel raggio di {{range}}Km

Loading...
  • {{ getIcon(poi.type) }} {{ poi.localized }}: {{poi.count}}
  • {{ getIcon(poi.type) }} {{ poi.localized }}: {{poi.count}}
Dati non disponibili

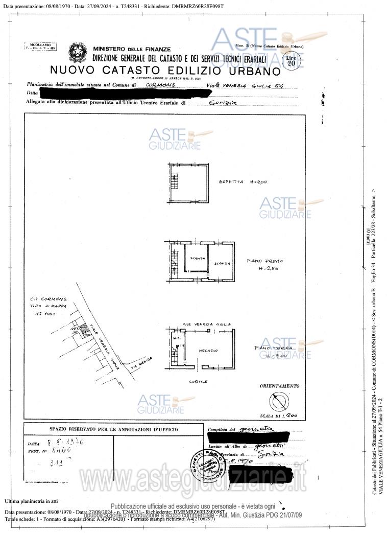
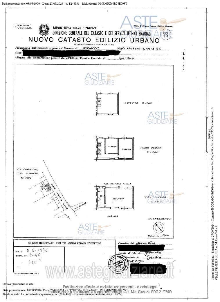
Negozio della superficie commerciale di 150,28 mq per la quota di 1/1 di piena proprietà e terreno residenziale della superficie commerciale di 96,00 mq per la quota di 1/4 p.i.(cortile in comproprietà). L’immobile risulta composto al piano terra da negozio, wc e corridoio, al primo piano da vano scala e n.2 stanze e da soffitta al secondo piano. Per quanto riguarda la corte di pertinenza ai fabbricati, la particella risulta in comproprietà con soggetti terzi e la quota del lotto 1 è pari a 1/4 del totale.

Indirizzo
Viale Venezia Giulia 54, Cormons (GO)


Codice asta
4347812


Lotto
1


Numero beni
1


Genere
Immobili


Categoria
Immobile commerciale


Valore di stima
-


Negozio

Negozio della superficie commerciale di 150,28 mq per la quota di 1/1 di piena proprietà e terreno residenziale della superficie commerciale di 96,00 mq per la quota di 1/4 p.i. (cortile in comproprietà). L’immobile risulta composto al piano terra da negozio, wc e corridoio, al primo piano da vano scala e n. 2 stanze e da soffitta al secondo piano. Per quanto riguarda la corte di pertinenza ai fabbricati, la particella risulta in comproprietà con soggetti terzi e la quota del lotto 1 è pari a 1/4 del totale.Il lotto è meglio descritto nella relazione di stima a firma dell’esperto Geom. Maurizio Di Martino dd. 17.11.2024 - alla quale si fa integrale ed espresso rinvio anche per tutto ciò che concerne l’esistenza di eventuali vincoli, oneri e pesi a qualsiasi titolo gravanti sui beni - che deve essere consultata dall’offerente prima della presentazione dell’offerta di acquisto assieme all’avviso di vendita integrale ed alle condizioni generali delle vendite immobiliari delegate.

Indirizzo
Viale Venezia Giulia 54, Cormons (GO)


Piano
-


Disponibilità
-


Vani
-


Bagni
-


Metri quadri
246,00


Certificazione energetica
-


Data udienza
19/05/2026 ore 11:00


Tipo di vendita
Senza incanto


Modalità di vendita
Sincrona mista


Luogo
Sala Aste Tribunale di Gorizia piano 1 stanza 37 via Nazario Sauro n.1 - Gorizia 34170


Luogo presentazione offerte
-


Termine presentazione offerte
15/05/2026 ore 12:00


Prezzo base
€ 30.896,00


Offerta minima
€ 23.172,00


Rialzo minimo in caso di gara
€ 500,00


Deposito cauzionale
10% del prezzo offerto


Deposito in conto spese
-


Tribunale
Gorizia

Tipo di procedura
Espropriazione immobiliare (cartabia)

Ruolo
53/2024

Giudice
Zingaro Valeria

Recapiti
-

Email
-

Delegato alla vendita
Trombetta Michaela
(Procede alle operazioni di vendita)
(Gestisce la visita del bene)

Recapiti
Cell. 3473676036
Tel.

Custode giudiziario
Trombetta Michaela

Recapiti
-

Email
-

Scheda COD. 4347812 - Pubblicata dal 26/03/2026

La presente scheda di vendita riporta integralmente informazioni e documenti pervenuti ufficialmente dal Ministero e dal professionista incaricato.


Pubblicazione autorizzata dall’Autorità competente, è vietata ogni ripubblicazione o riproduzione anche parziale


Ti interessa questa vendita?

Documentazione

Visualizza su mappa

Mappa geografica del bene

Punti di interesse

Fonte dati

Nel raggio di {{range}}Km

Loading...
  • {{ getIcon(poi.type) }} {{ poi.localized }}: {{poi.count}}
  • {{ getIcon(poi.type) }} {{ poi.localized }}: {{poi.count}}
Dati non disponibili