Accedi o registrati
Oppure
Accedi
VIA 2 SETTEMBRE 316, Cerreto Guidi (FI)
Offerta minima € 130.800,00
Codice A4333163
Lotto Lotto unico
Data udienza 18/12/2025 ore 11:00
Termine presentazione offerte 11/12/2025 ore 11:00
VIA 2 SETTEMBRE 316, Cerreto Guidi (FI)
Offerta minima € 130.800,00
Codice A4333163
Lotto Lotto unico
Data udienza 18/12/2025 ore 11:00
Termine presentazione offerte 11/12/2025 ore 11:00
                Nel raggio di {{range}}Km
                
                
            
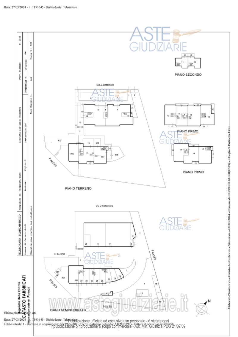
Fondo Commerciale di mq 188 libero composto da ampio vano vendita con 3 vetrine sulla via principale, tre ripostigli, un bagno
                                Indirizzo
                                
                                    VIA 2 SETTEMBRE 316,
                                Cerreto Guidi (FI)
                            
                                Codice asta
                                
                                4333163
                            
                                Lotto
                                
                                Lotto unico
                            
                                Numero beni
                                
                                1
                            
                                Genere
                                
                                Immobili
                            
                                Categoria
                                
                                Immobile commerciale
                            
                                    Valore di stima
                                
                                -
                            
Negozio
Fondo Commerciale di mq 188 libero composto da ampio vano vendita con 3 vetrine sulla via principale, tre ripostigli, un bagno
                    Indirizzo
                    
                        VIA 2 SETTEMBRE 316,
                    Cerreto Guidi (FI)
                    
                    
                    
                    
                    
                
                    Piano
                    
                    -
                
                    Disponibilità
                    
                        LIBERO
                
                    Vani
                    
                        -
                
                    Bagni
                    
                    -
                
                    Metri quadri
                    
                        188,00
                
                    Certificazione energetica
                    
                    -
                
                                
Data udienza                                
                                
                                18/12/2025 ore 11:00
                            
                                Tipo di vendita
                                
                                Senza incanto
                            
                                Modalità di vendita
                                
                                    Sincrona telematica
                            
                                Luogo
                                
                                N.A.
                                - 
                                
                                
                                
                                
                                
                            
                                Luogo presentazione offerte
                                
                                -
                            
                                Termine presentazione offerte
                                
                                11/12/2025 ore 11:00
                            
                                    Prezzo base
                                
                                € 174.400,00
                            
                                Offerta minima
                                
                                € 130.800,00
                            
                                Rialzo minimo in caso di gara
                                
                                € 6.000,00
                            
                                Deposito cauzionale
                                
                                10% del prezzo offerto
                            
                                Deposito in conto spese
                                
                                -
                            
                                Tribunale
                                
Firenze                            
                                Tipo di procedura
                                
Liquidazione giudiziale(cci)                            
                                Ruolo
                                
                                123/2023
                            
                                    Commissario giudiziale
                                    
                                    Borghini Daiana
                                        
(Procede alle operazioni di vendita)
                                                                            
(Gestisce la visita del bene)
                                
                                    Recapiti
                                    
                                    Tel. 0554221030
                                
Scheda COD. 4333163 - Pubblicata dal 22/10/2025
La presente scheda di vendita riporta integralmente informazioni e documenti pervenuti ufficialmente dal Ministero e dal professionista incaricato.
Pubblicazione autorizzata dall’Autorità competente, è vietata ogni ripubblicazione o riproduzione anche parziale
| Data vendita | Prezzo base | 
| 14/10/2025 | € 218.000,00 | 
| 18/12/2025 | € 174.400,00 | 
                Nel raggio di {{range}}Km