Astegiudiziarie.it è parte di Rete Aste Network

Accedi o registrati

Non sei ancora registrato?

Oppure

Accedi

Magazzino

Corso Europa, 93017 San Cataldo CL, Italia, San Cataldo (CL)

€ 2.953,00

Offerta minima € 2.215,00


Codice A4318420

Lotto 2

Data udienza 04/06/2026 ore 16:30

Termine presentazione offerte 03/06/2026 ore 12:00

Magazzino

Corso Europa, 93017 San Cataldo CL, Italia, San Cataldo (CL)

€ 2.953,00

Offerta minima € 2.215,00


Codice A4318420

Lotto 2

Data udienza 04/06/2026 ore 16:30

Termine presentazione offerte 03/06/2026 ore 12:00

Ti interessa questa vendita?

Documentazione

Visualizza su mappa

Mappa geografica del bene

Punti di interesse

Fonte dati

Nel raggio di {{range}}Km

Loading...
  • {{ getIcon(poi.type) }} {{ poi.localized }}: {{poi.count}}
  • {{ getIcon(poi.type) }} {{ poi.localized }}: {{poi.count}}
Dati non disponibili

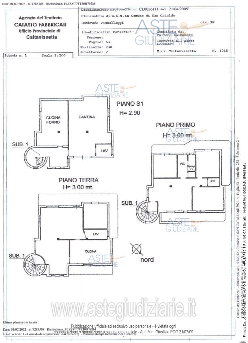
Magazzino sito in San Cataldo, Corso Europa, piano S1, categoria C/2, mq.78, censito al N.C.E.U. di detto comune al foglio 75, particella 57 sub 6,rendita catastale euro 177,25.

Indirizzo
Corso Europa, 93017 San Cataldo CL, Italia, San Cataldo (CL)


Codice asta
4318420


Lotto
2


Numero beni
1


Genere
Immobili


Categoria
Immobile commerciale


Valore di stima
-


Magazzino

Magazzino sito in San Cataldo, Corso Europa, piano S1, categoria C/2, mq.78, censito al N.C.E.U. di detto comune al foglio 75, particella 57 sub 6,rendita catastale euro 177,25.

Indirizzo
Corso Europa, 93017 San Cataldo CL, Italia, San Cataldo (CL)


Piano
-


Disponibilità
-


Vani
-


Bagni
-


Metri quadri
78,00


Certificazione energetica
-


Data udienza
04/06/2026 ore 16:30


Tipo di vendita
Senza incanto


Modalità di vendita
Sincrona mista


Luogo
Viale della Regione n. 21 - Caltanissetta 93100


Luogo presentazione offerte
-


Termine presentazione offerte
03/06/2026 ore 12:00


Prezzo base
€ 2.953,00


Offerta minima
€ 2.215,00


Rialzo minimo in caso di gara
€ 500,00


Deposito cauzionale
10% del prezzo offerto


Deposito in conto spese
-


Tribunale
Caltanissetta

Tipo di procedura
Esecuzione immobiliare post legge 80

Ruolo
11/2020

Delegato alla vendita
Toscano Vincenzo
(Procede alle operazioni di vendita)

Recapiti
-

Email
-

Custode giudiziario
Toscano Vincenzo
(Gestisce la visita del bene)

Recapiti
Cell. 3339943751
Tel. 0934563102

Scheda COD. 4318420 - Pubblicata dal 30/03/2026

La presente scheda di vendita riporta integralmente informazioni e documenti pervenuti ufficialmente dal Ministero e dal professionista incaricato.

Pubblicazione notarizzata su Blockchain


Pubblicazione autorizzata dall’Autorità competente, è vietata ogni ripubblicazione o riproduzione anche parziale


Ti interessa questa vendita?

Documentazione

Visualizza su mappa

Mappa geografica del bene

Storico delle vendite

Data venditaPrezzo base
14/03/2025€ 14.000,00
04/07/2025€ 10.500,00
30/12/2025€ 7.875,00
13/03/2026€ 5.906,00
04/06/2026€ 2.953,00

Punti di interesse

Fonte dati

Nel raggio di {{range}}Km

Loading...
  • {{ getIcon(poi.type) }} {{ poi.localized }}: {{poi.count}}
  • {{ getIcon(poi.type) }} {{ poi.localized }}: {{poi.count}}
Dati non disponibili