Astegiudiziarie.it è parte di Rete Aste Network

Accedi o registrati

Non sei ancora registrato?

Oppure

Accedi

Magazzino

VIA LATINA IV KM CIV.131/A, Colleferro (RM)

€ 30.256,35

Offerta minima € 22.692,26


Codice A348477

Lotto Lotto unico

Data udienza 26/02/2026 ore 15:00

Termine presentazione offerte 25/02/2026 ore 23:59

Magazzino

VIA LATINA IV KM CIV.131/A, Colleferro (RM)

€ 30.256,35

Offerta minima € 22.692,26


Codice A348477

Lotto Lotto unico

Data udienza 26/02/2026 ore 15:00

Termine presentazione offerte 25/02/2026 ore 23:59

Ti interessa questa vendita?

Documentazione

Visualizza su mappa

Mappa geografica del bene

Punti di interesse

Fonte dati

Nel raggio di {{range}}Km

Loading...
  • {{ getIcon(poi.type) }} {{ poi.localized }}: {{poi.count}}
  • {{ getIcon(poi.type) }} {{ poi.localized }}: {{poi.count}}
Dati non disponibili

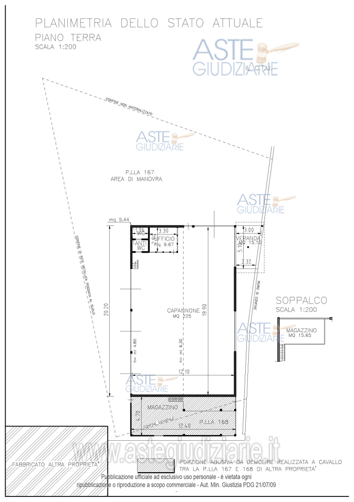
CAPANNONE C/2 ADIBITO A MAGAZZINO E LOCALE DEPOSITO, STRUTTURA PREFABBRICATA IN FERRO E CEMENTO PIANO TERRA, CON ANNESSA CORTE GRAFFATA, CAPANNO, UFFICIO SERVIZI IGIENICI, MAGAZZINO SOPPALCATO, COMPLESSIVI MQ. 255,76

Indirizzo
VIA LATINA IV KM CIV.131/A, Colleferro (RM)


Codice asta
348477


Lotto
Lotto unico


Numero beni
1


Genere
Immobili


Categoria
Immobile commerciale


Valore di stima
-


Magazzino

Capannone C/2 adibito a magazzino e locali di deposito in Colleferro, via Latina IV Km civ. 131/a precedentemente utilizzato come autolavaggio, consistente in: Struttura prefabbricata in ferro e cemento piano terra, con annessa corte graffata, comprendente capannone, ufficio, servizi igienici, magazzino soppalcato, per un totale di sup. calpestabile mq 255,76 e area circostante esterna, compresa veranda, di mq 419. Veranda, ufficio, wc, anti wc e magazzino soppalcato interno sono abusivi ma sanabili ex art. 46 c 5, DPR 380/2001 e ex art. 40 6° c. L 47/85. Il locale è distinto in catasto alla sezione COL, Foglio 2, p.lla 167, sub. 501, cat. C/2 cl.2, consistenza 248 mq catastali, rendita catastale € 486,71. Dall'area di pertinenza del capannone si accede ad un magazzino prefabbricato in aderenza al capannone totalmente abusivo e costruito a cavallo fra la p.lla 167 (pignorata) e la p.lla 168 intestata ad altro soggetto ed esclusa dal pignoramento. Opera non sanabile. Buono stato manutentivo. Classe energetica G.

Indirizzo
Via Latina IV KM N. 131, 00034 Colleferro RM, Italia, Colleferro (RM)


Piano
TERRA


Disponibilità
OCCUPATO


Vani
-


Bagni
-


Metri quadri
419,00


Certificazione energetica
-


Dati catastali

Foglio:2, Sezione:COL, Particella:167, Sub particella:501


Data udienza
26/02/2026 ore 15:00


Tipo di vendita
Senza incanto


Modalità di vendita
Asincrona telematica


Luogo
-


Luogo presentazione offerte
-


Termine presentazione offerte
25/02/2026 ore 23:59


Prezzo base
€ 30.256,35


Offerta minima
€ 22.692,26


Rialzo minimo in caso di gara
€ 2.000,00


Deposito cauzionale
20% del prezzo offerto


Deposito in conto spese
-


Tribunale
Velletri

Tipo di procedura
Esecuzione immobiliare post legge 80

Ruolo
492/2014

Giudice
Di serafino Anna luisa

Recapiti
-

Email
-

Delegato alla vendita
Segnalini Daniela
(Procede alle operazioni di vendita)
(Gestisce la visita del bene)

Recapiti
Tel. 0693020074

Scheda COD. 348477 - Pubblicata dal 23/12/2025

La presente scheda di vendita riporta integralmente informazioni e documenti pervenuti ufficialmente dal Ministero e dal professionista incaricato.


Pubblicazione autorizzata dall’Autorità competente, è vietata ogni ripubblicazione o riproduzione anche parziale


Ti interessa questa vendita?

Documentazione

Visualizza su mappa

Mappa geografica del bene

Storico delle vendite

Data venditaPrezzo base
08/07/2019€ 170.000,00
15/11/2019€ 127.500,00
11/09/2020€ 95.625,00
25/06/2021€ 71.718,75
17/12/2021€ 53.789,06
10/06/2022€ 53.789,06
15/12/2022€ 40.341,79
29/06/2023€ 30.256,35
21/03/2024€ 30.256,35
12/06/2025€ 30.256,35
26/02/2026€ 30.256,35

Punti di interesse

Fonte dati

Nel raggio di {{range}}Km

Loading...
  • {{ getIcon(poi.type) }} {{ poi.localized }}: {{poi.count}}
  • {{ getIcon(poi.type) }} {{ poi.localized }}: {{poi.count}}
Dati non disponibili