Astegiudiziarie.it è parte di Rete Aste Network

Accedi o registrati

Non sei ancora registrato?

Oppure

Accedi

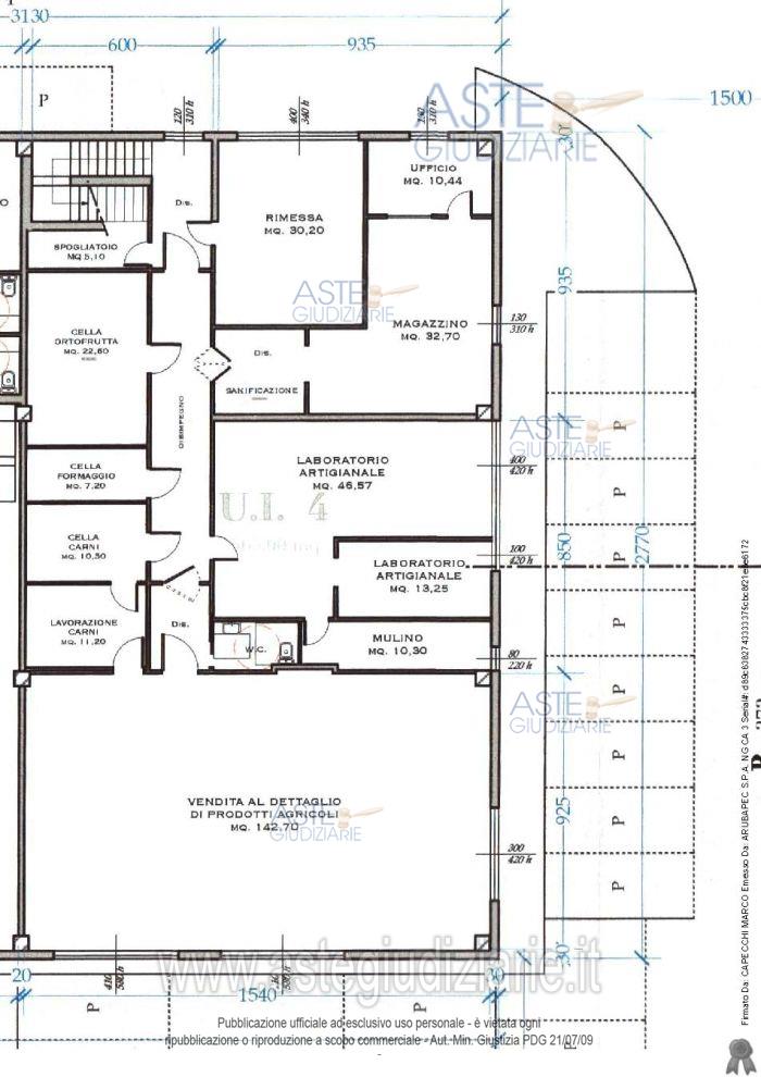
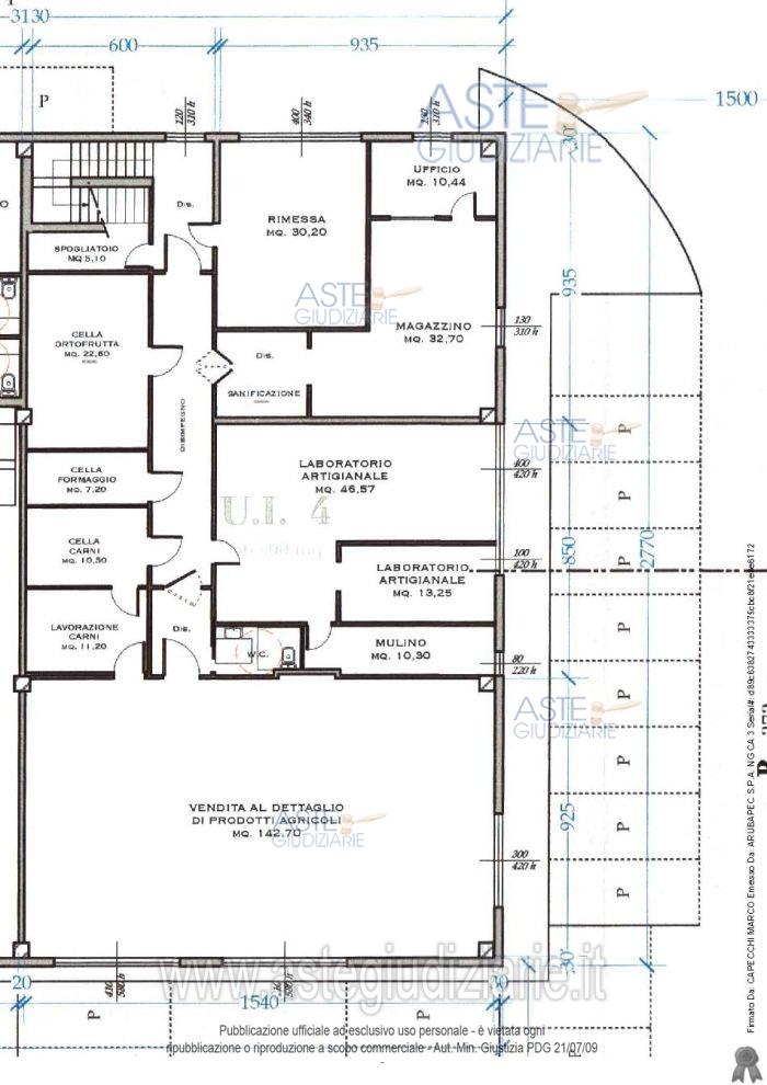
giudiziariagiudiziariaTribunale di PISTOIAESECUZIONI CIVILI IMMOBILIARIESPROPRIAZIONE IMMOBILIARE (CARTABIA)1172025Delegato alla venditaMariannaPugliesePGLMNN76A64G713YtruefalseCustodeIsvegDBRPTR69R27D612Hprenota.pt@isveg.itfalsetrue24106701IMMOBILIIMMOBILE COMMERCIALELocalità i Martiri, Via Vecchia Fiorentina, Pistoia PT, ItaliaQuarrataPistoiaToscanaItaliaPiena proprietà di fabbricato artigianale di mq 707,503110484IMMOBILE COMMERCIALELABORATORIO ARTIGIANOLocalità i Martiri, Via Vecchia Fiorentina, Pistoia PT, ItaliaQuarrataPistoiaToscanaItaliaPiena proprietà di capannone a destinazione artigianale a pianta rettangolare, libero sui lati est, nord e ovest, con resede esclusivo perimetrale parzialmente pavimentato e recintato, composto da piano terra e piano primo (quest'ultimo occupante solo una porzione dell'intera superficie coperta). Il piano terra, avente più accessi, si compone di ampio locale ad uso vendita, locali ad uso laboratori, magazzini, accessori e un bagno. Il piano primo, al quale si accede tramite scala interna, si compone di un'ampia sala conferenze, sala riunioni, servizi igienici anche per portatori di handicap, ripostigli e altri vani accessori.Il tutto per un superficie di circa mq. 707,50.2026-07-03T10:00:00SENZA INCANTOASINCRONA TELEMATICAN.A.564.000,00423.000,0011.000,002026-07-02T12:00:00gestore delle venditehttp://www.astetelematiche.ithttp://www.astetelematiche.itsito pubblicitahttps://www.astegiudiziarie.ithttps://www.astegiudiziarie.it2026-03-19

Laboratorio artigiano

Località i Martiri, Via Vecchia Fiorentina, Pistoia PT, Italia, Quarrata (PT)

€ 564.000,00

Offerta minima € 423.000,00


Codice A4347099

Lotto 1

Data udienza 03/07/2026 ore 10:00

Termine presentazione offerte 02/07/2026 ore 12:00

Laboratorio artigiano

Località i Martiri, Via Vecchia Fiorentina, Pistoia PT, Italia, Quarrata (PT)

€ 564.000,00

Offerta minima € 423.000,00


Codice A4347099

Lotto 1

Data udienza 03/07/2026 ore 10:00

Termine presentazione offerte 02/07/2026 ore 12:00

Ti interessa questa vendita?

Documentazione

Visualizza su mappa

Mappa geografica del bene

Punti di interesse

Fonte dati

Nel raggio di {{range}}Km

Loading...
  • {{ getIcon(poi.type) }} {{ poi.localized }}: {{poi.count}}
  • {{ getIcon(poi.type) }} {{ poi.localized }}: {{poi.count}}
Dati non disponibili

Piena proprietà di fabbricato artigianale di mq 707,50

Indirizzo
Località i Martiri, Via Vecchia Fiorentina, Pistoia PT, Italia, Quarrata (PT)


Codice asta
4347099


Lotto
1


Numero beni
1


Genere
Immobili


Categoria
Immobile commerciale


Valore di stima
€ 564.000,00


Laboratorio artigiano

Piena proprietà di capannone a destinazione artigianale a pianta rettangolare, libero sui lati est, nord e ovest, con resede esclusivo perimetrale parzialmente pavimentato e recintato, composto da piano terra e piano primo (quest'ultimo occupante solo una porzione dell'intera superficie coperta). Il piano terra, avente più accessi, si compone di ampio locale ad uso vendita, locali ad uso laboratori, magazzini, accessori e un bagno. Il piano primo, al quale si accede tramite scala interna, si compone di un'ampia sala conferenze, sala riunioni, servizi igienici anche per portatori di handicap, ripostigli e altri vani accessori.Il tutto per un superficie di circa mq. 707,50.

Indirizzo
Località i Martiri, Via Vecchia Fiorentina, Pistoia PT, Italia, Quarrata (PT)


Piano
-


Disponibilità
-


Vani
-


Bagni
-


Metri quadri
707,50


Certificazione energetica
-


Data udienza
03/07/2026 ore 10:00


Tipo di vendita
Senza incanto


Modalità di vendita
Asincrona telematica


Luogo
N.A. -


Luogo presentazione offerte
-


Termine presentazione offerte
02/07/2026 ore 12:00


Prezzo base
€ 564.000,00


Offerta minima
€ 423.000,00


Rialzo minimo in caso di gara
€ 11.000,00


Deposito cauzionale
10% del prezzo offerto.


Deposito in conto spese
-


Tribunale
Pistoia

Tipo di procedura
Espropriazione immobiliare (cartabia)

Ruolo
117/2025

Giudice
Garofalo Sergio

Recapiti
-

Email
-

Delegato alla vendita
Pugliese Marianna
(Procede alle operazioni di vendita)

Recapiti
-

Email
-

Custode giudiziario
Isveg 
(Gestisce la visita del bene)

Recapiti
-

Scheda COD. 4347099 - Pubblicata dal 19/03/2026

La presente scheda di vendita riporta integralmente informazioni e documenti pervenuti ufficialmente dal Ministero e dal professionista incaricato.


Pubblicazione autorizzata dall’Autorità competente, è vietata ogni ripubblicazione o riproduzione anche parziale


Ti interessa questa vendita?

Documentazione

Visualizza su mappa

Mappa geografica del bene

Punti di interesse

Fonte dati

Nel raggio di {{range}}Km

Loading...
  • {{ getIcon(poi.type) }} {{ poi.localized }}: {{poi.count}}
  • {{ getIcon(poi.type) }} {{ poi.localized }}: {{poi.count}}
Dati non disponibili