Astegiudiziarie.it è parte di Rete Aste Network

Accedi o registrati

Non sei ancora registrato?

Oppure

Accedi

Stalle, scuderie, rimesse, autorimesse

Località Malfondo, 06049 Spoleto PG, Italia, Spoleto (PG)

€ 399.000,00

Offerta minima € 299.250,00


Codice A4326881

Lotto Lotto unico

Data udienza 11/06/2026 ore 10:00

Termine presentazione offerte 10/06/2026 ore 12:00

Stalle, scuderie, rimesse, autorimesse

Località Malfondo, 06049 Spoleto PG, Italia, Spoleto (PG)

€ 399.000,00

Offerta minima € 299.250,00


Codice A4326881

Lotto Lotto unico

Data udienza 11/06/2026 ore 10:00

Termine presentazione offerte 10/06/2026 ore 12:00

Ti interessa questa vendita?

Documentazione

Visualizza su mappa

Mappa geografica del bene

Punti di interesse

Fonte dati

Nel raggio di {{range}}Km

Loading...
  • {{ getIcon(poi.type) }} {{ poi.localized }}: {{poi.count}}
  • {{ getIcon(poi.type) }} {{ poi.localized }}: {{poi.count}}
Dati non disponibili

SPOLETO (PG) LOC. MALFONDO

Indirizzo
Località Malfondo, 06049 Spoleto PG, Italia, Spoleto (PG)


Codice asta
4326881


Lotto
Lotto unico


Numero beni
1


Genere
Immobili


Categoria
Altra categoria


Valore di stima
-


Stalle, scuderie, rimesse, autorimesse

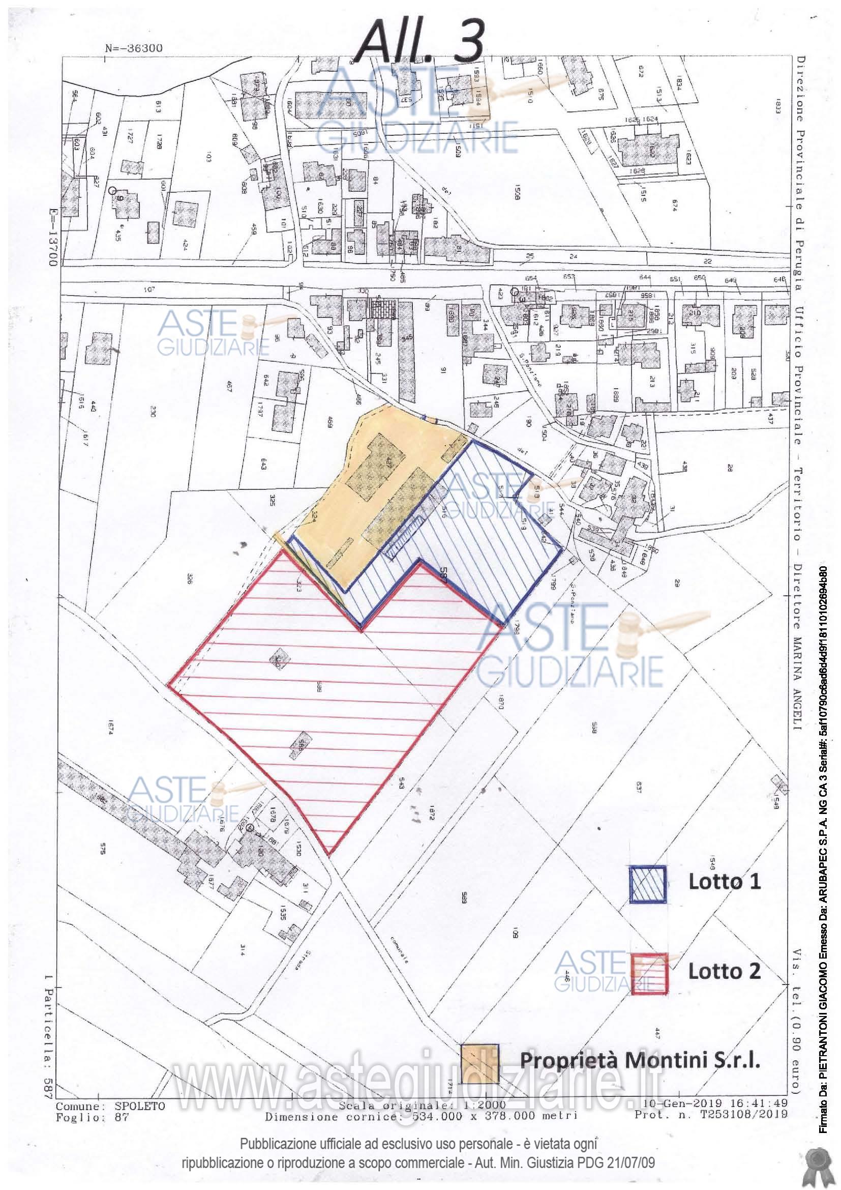
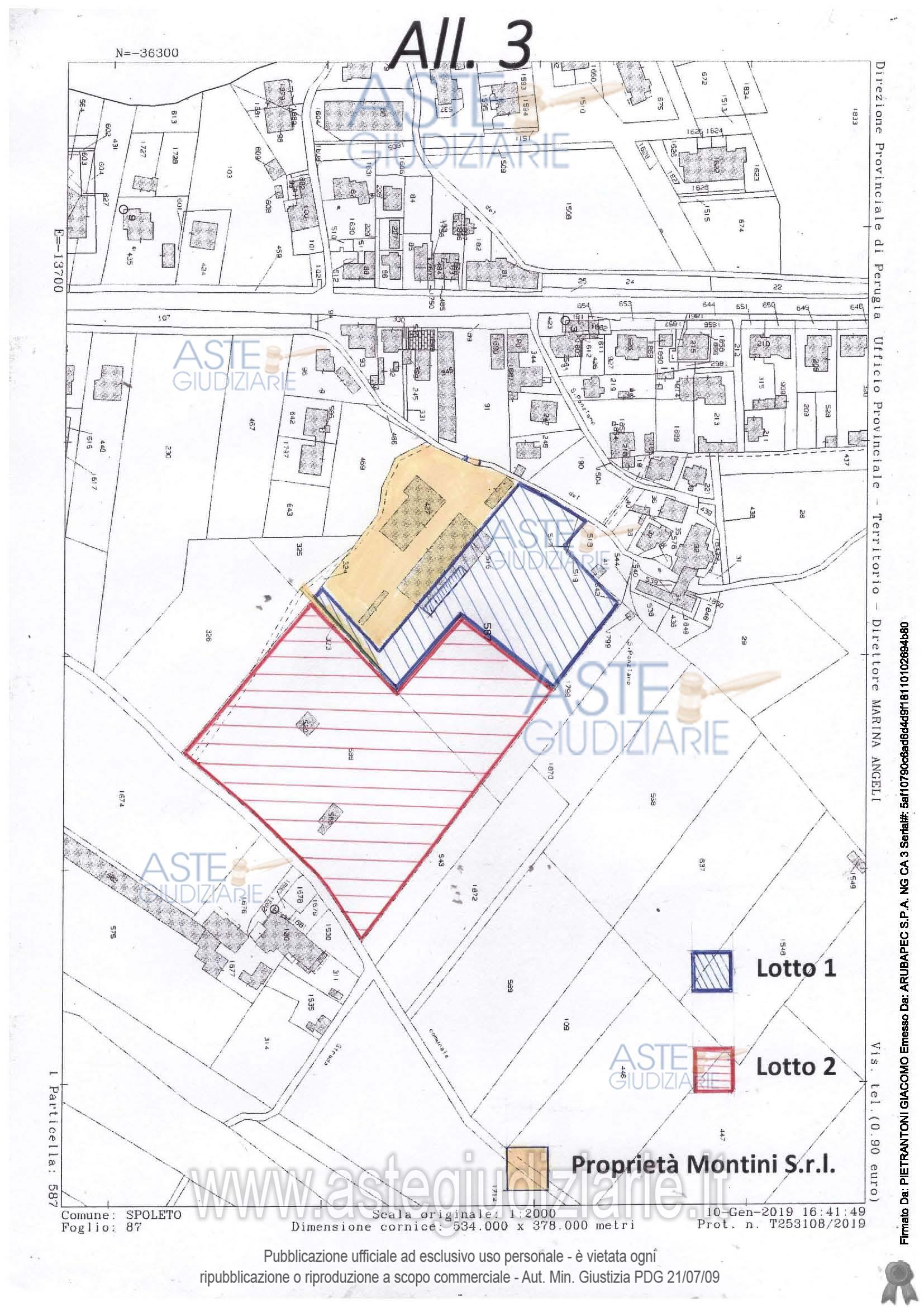
Diritti di piena proprietà su unità immobiliare sita nel Comune di Spoleto (PG) Loc. Malfondo, identificata al C.F. del Comune di Spoleto e precisamente al:-Foglio 87, particella 516, categoria C/6, classe 3, consistenza 239 mq, RC € 406,71 (porzione di fabbricato destinato ad uffici e magazzino);- Foglio 87, particella 520, categoria C/2, classe 3, consistenza 52 mq, RC € 96,68 (fabbricato);- Foglio 87, particella 588, categoria C/2, classe 3, consistenza 59 mq, RC € 109,70 (fabbricato); Diritti di piena proprietà su unità immobiliare siti nel Comune nel comune di Spoleto (PG) Loc. Malfondo, identificata al C.T. del Comune di Spoleto e precisamente al:-Foglio 87, particella 518, Area Rurale, superficie di are 00.35 senza reddito (Terreno);-Foglio 87, particella 519, Area Rurale, superficie di are 00.10 senza reddito (Terreno);-Foglio 87, particella 587, Seminativo, classe 1, superficie di are 83.87, RD. €60,64/ RA. €47,65 (Appezzamento di Terreno);- Foglio 87, particella 589, Seminativo, classe 2, superficie di ha 1.06.44, RD. €60,47/ RA. €54,97 (Ampio Appezzamento di Terreno);Si precisa come l’accesso al lotto unico in questione sia sussistente dalla strada Spoleto-Protte, mentre allo stato non vi è servitù di passaggio accertata, dichiarata o trascritta in relazione all’accesso al complesso dalla strada provinciale Tuderte.Stato possesso: Nella relazione integrativa del CTU del 12.12.2023 viene riportato che il fabbricato identificato con la particella n. 516 Fg 87 nonché i terreni identificati con le particelle 587, 518 e 519 del Fg. 87, sono utilizzati in forza di contratto di locazione commerciale stipulato in data 30.09.2013 e registrato in data 31.10.2013 per la durata di anni 6 con rinnovo tacito per altri anni 6. Dagli atti è tuttavia possibile evincere come la stipula e la registrazione del predetto contratto di locazione sia successiva alla trascrizione del pignoramento.PROFESSIONISTA DELEGATO: AVV. JACOPO CAPPELLETTI (Tel. 0743 49247).GIUDICE ESECUZIONE: DOTT. ALBERTO CAPPELLINI.CUSTODE GIUDIZIARIO: ISTITUTO VENDITE GIUDIZIARIE PERUGIA (075 5913525 – 0743 45107).

Indirizzo
Località Malfondo, 06049 Spoleto PG, Italia, Spoleto (PG)


Piano
-


Disponibilità
-


Vani
-


Bagni
-


Metri quadri
350,00


Certificazione energetica
-


Dati catastali

Foglio:87, Sezione:CF, Particella:516
Foglio:87, Sezione:CF, Particella:520
Foglio:87, Sezione:CF, Particella:588
Foglio:87, Sezione:CF, Particella:518
Foglio:87, Sezione:CF, Particella:519
Foglio:87, Sezione:CT, Particella:587
Foglio:87, Sezione:CT, Particella:589


Data udienza
11/06/2026 ore 10:00


Tipo di vendita
Senza incanto


Modalità di vendita
Sincrona mista


Luogo
Via XXV Aprile, 52, 06049 Spoleto PG, Italia - Spoleto 06049


Luogo presentazione offerte
-


Termine presentazione offerte
10/06/2026 ore 12:00


Prezzo base
€ 399.000,00


Offerta minima
€ 299.250,00


Rialzo minimo in caso di gara
€ 3.900,00


Deposito cauzionale
10% del prezzo offerto


Deposito in conto spese
-


Tribunale
Spoleto

Tipo di procedura
Contenzioso civile

Ruolo
81/2017

Giudice
Cappellini Alberto

Recapiti
-

Email
-

Delegato alla vendita
Cappelletti Jacopo
(Procede alle operazioni di vendita)

Recapiti
Tel. 074349247

Email
avv.jacopocappelletti@gmail.co...

Custode giudiziario
Perugia Ivg
(Gestisce la visita del bene)

Recapiti
Tel. 0755913525

Scheda COD. 4326881 - Pubblicata dal 09/04/2026

La presente scheda di vendita riporta integralmente informazioni e documenti pervenuti ufficialmente dal Ministero e dal professionista incaricato.

Pubblicazione notarizzata su Blockchain


Pubblicazione autorizzata dall’Autorità competente, è vietata ogni ripubblicazione o riproduzione anche parziale


Ti interessa questa vendita?

Documentazione

Visualizza su mappa

Mappa geografica del bene

Storico delle vendite

Data venditaPrezzo base
18/07/2025€ 760.000,00
06/11/2025€ 570.000,00
03/03/2026€ 470.000,00
11/06/2026€ 399.000,00

Punti di interesse

Fonte dati

Nel raggio di {{range}}Km

Loading...
  • {{ getIcon(poi.type) }} {{ poi.localized }}: {{poi.count}}
  • {{ getIcon(poi.type) }} {{ poi.localized }}: {{poi.count}}
Dati non disponibili