Astegiudiziarie.it è parte di Rete Aste Network

Accedi o registrati

Non sei ancora registrato?

Oppure

Accedi

giudiziariagiudiziariaTribunale di TERNIPROCEDURE CONCORSUALILIQUIDAZIONE CONTROLLATA (CCI)12026GiudiceClaudiaTordo capriolifalsefalseLiquidatore giudizialeTommasoOnorifalsefalseSoggetto specializzato alla venditaAste giudiziarie inlinea spaMNTGLC63E08E625Hvendite@astegiudiziarie.ittruetrue24189461IMMOBILIIMMOBILE COMMERCIALEStrada di Fiaiola n. 3GNarniTerniUmbriaItaliaGarage posto al piano seminterrato di fabbricato condominiale. Il bene è costituito da un’autorimessa facente parte di un edificio residenziale edificato tra il 2002 e il 2006, composto da più unità abitative e garage. L’unità è collocata al piano interrato, accessibile tramite corsia comune, ed è dotata di porta basculante metallica. Internamente si presenta con pavimentazione in battuto di cemento, pareti in cemento armato e blocchi in cls e impianto elettrico a vista. La superficie è pari a circa 29 mq.3120008IMMOBILE COMMERCIALEGARAGE O AUTORIMESSAStrada di Fiaiola n. 3GNarniTerniUmbriaItaliaGarage posto al piano seminterrato di fabbricato condominiale. Il bene è costituito da un’autorimessa inserita all’interno di un edificio residenziale edificato tra il 2002 e il 2006, composto da più unità abitative e garage. L’unità è collocata al piano interrato, accessibile tramite corsia comune, ed è dotata di porta basculante metallica. Internamente si presenta con pavimentazione in battuto di cemento, pareti in cemento armato e blocchi in cls e impianto elettrico a vista. La superficie commerciale è pari a circa 29 mq, con consistenza catastale di 25 mq. 251.02026-06-11T11:00:00SENZA INCANTOASINCRONA TELEMATICAN.A.14.900,0011.175,00500,002026-06-10T12:00:00gestore delle venditehttp://www.astetelematiche.ithttp://www.astetelematiche.itsito pubblicitahttps://www.astegiudiziarie.ithttps://www.astegiudiziarie.it2026-04-08

Garage o autorimessa

Strada di Fiaiola n. 3G, Narni (TR)

€ 14.900,00

Offerta minima € 11.175,00


Codice A4349252

Lotto 1

Data udienza 11/06/2026 ore 11:00

Termine presentazione offerte 10/06/2026 ore 12:00

Garage o autorimessa

Strada di Fiaiola n. 3G, Narni (TR)

€ 14.900,00

Offerta minima € 11.175,00


Codice A4349252

Lotto 1

Data udienza 11/06/2026 ore 11:00

Termine presentazione offerte 10/06/2026 ore 12:00

Ti interessa questa vendita?

Documentazione

Visualizza su mappa

Mappa geografica del bene

Punti di interesse

Fonte dati

Nel raggio di {{range}}Km

Loading...
  • {{ getIcon(poi.type) }} {{ poi.localized }}: {{poi.count}}
  • {{ getIcon(poi.type) }} {{ poi.localized }}: {{poi.count}}
Dati non disponibili

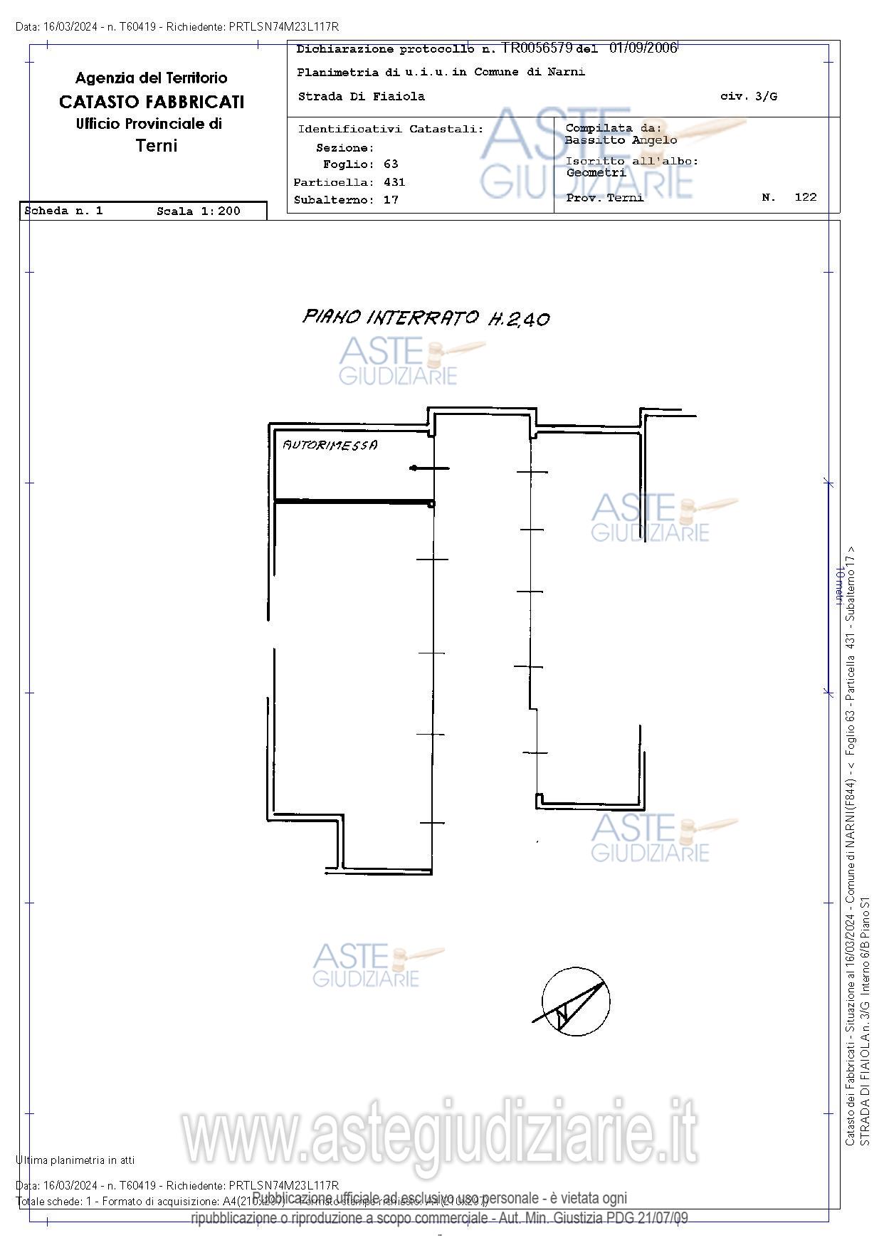
Garage posto al piano seminterrato di fabbricato condominiale. Il bene è costituito da un’autorimessa facente parte di un edificio residenziale edificato tra il 2002 e il 2006, composto da più unità abitative e garage. L’unità è collocata al piano interrato, accessibile tramite corsia comune, ed è dotata di porta basculante metallica. Internamente si presenta con pavimentazione in battuto di cemento, pareti in cemento armato e blocchi in cls e impianto elettrico a vista. La superficie è pari a circa 29 mq.

Indirizzo
Strada di Fiaiola n. 3G, Narni (TR)


Codice asta
4349252


Lotto
1


Numero beni
1


Genere
Immobili


Categoria
Immobile commerciale


Valore di stima
-


Garage o autorimessa

Garage posto al piano seminterrato di fabbricato condominiale. Il bene è costituito da un’autorimessa inserita all’interno di un edificio residenziale edificato tra il 2002 e il 2006, composto da più unità abitative e garage. L’unità è collocata al piano interrato, accessibile tramite corsia comune, ed è dotata di porta basculante metallica. Internamente si presenta con pavimentazione in battuto di cemento, pareti in cemento armato e blocchi in cls e impianto elettrico a vista. La superficie commerciale è pari a circa 29 mq, con consistenza catastale di 25 mq.

Indirizzo
Strada di Fiaiola n. 3G, Narni (TR)


Piano
-


Disponibilità
-


Vani
10,00


Bagni
-


Metri quadri
25,00


Certificazione energetica
-


Data udienza
11/06/2026 ore 11:00


Tipo di vendita
Senza incanto


Modalità di vendita
Asincrona telematica


Luogo
N.A. -


Luogo presentazione offerte
-


Termine presentazione offerte
10/06/2026 ore 12:00


Prezzo base
€ 14.900,00


Offerta minima
€ 11.175,00


Rialzo minimo in caso di gara
€ 500,00


Deposito cauzionale
10% del prezzo offerto


Deposito in conto spese
-


Tribunale
Terni

Tipo di procedura
Liquidazione controllata(cci)

Ruolo
1/2026

Giudice
Tordo caprioli Claudia

Recapiti
-

Email
-

Professionista delegato
Onori Tommaso

Recapiti
Tel. 3289038596

Email
-

Soggetto specializzato alla vendita
Aste giudiziarie inlinea spa 
(Procede alle operazioni di vendita)
(Gestisce la visita del bene)

Recapiti
-

Liquidatore giudiziale
Onori Tommaso

Recapiti
-

Email
-

Scheda COD. 4349252 - Pubblicata dal 08/04/2026

La presente scheda di vendita riporta integralmente informazioni e documenti pervenuti ufficialmente dal Ministero e dal professionista incaricato.


Pubblicazione autorizzata dall’Autorità competente, è vietata ogni ripubblicazione o riproduzione anche parziale


Ti interessa questa vendita?

Documentazione

Visualizza su mappa

Mappa geografica del bene

Punti di interesse

Fonte dati

Nel raggio di {{range}}Km

Loading...
  • {{ getIcon(poi.type) }} {{ poi.localized }}: {{poi.count}}
  • {{ getIcon(poi.type) }} {{ poi.localized }}: {{poi.count}}
Dati non disponibili